FLEXIBEL
FINANZIEREN

Kreditbedarf
Eigenmittel
%
Jahre
Zins | Laufzeit
mtl. Rate
ländleimmo.at / Kaufobjekt / Wohnung / Gartenwohnung / Vorarlberg / Dornbirn / Dornbirn / Exklusive 4-Zimmer-Gartenwohnung in Dornbirn | Erstbezug 2028 | Hochwertige Ausstattung

Exklusive 4-Zimmer-Gartenwohnung in Dornbirn | Erstbezug 2028 | Hochwertige Ausstattung

images icon

4 Zimmer

Grundriss

images icon

96,20 m²

Wohnfläche

€ 749.000

Marcel Erhart

Unique87 GmbH

Preise

Kaufpreis € 749.000
Preis (Auto-)Stellplatz € 27.000
Erklärung Kosten zzgl. Grunderwerbssteuer: 3,5% zzgl. Grundbucheintragung: 1,1% zzgl. Nebenkosten: 1,2 % Vertrags- und Treuhandkosten

Objekt Informationen

Wohnfläche 96,20 m²
Zimmer 4
Nebenräume 1
Etage Erdgeschoss
Bautyp Neubau/Erstbezug
Baujahr 2026
Bauweise
  • Massiv
Objektart Wohnung
Objekttyp Gartenwohnung
Badezimmer 1
Terrasse 11,52 m²
Garten 40,91 m²
Keller 8,31 m²
Heizung
  • Solar
  • Fernwärme
  • Fußbodenheizung
Verfügbar ab 2028
Heizwärmebedarf (HWB) 23,7 kwh/m²a
Klasse Heizwärmebedarf (Klasse HWB) A
Gesamtenergieeffizienz-Faktor (fGEE) 0,63 kwh/m²a
Klasse Gesamtenergieeffizienz-Faktor (Klasse fGEE) A+
Externe ID C02
Parkplatz
  • (Tief-)Garage

Ausstattung:

  • icon Boden: Fliesen, Parkett
  • icon Bad mit: Dusche
  • icon Ausrichtung Balkon: Süden, Westen

Empfohlene Services unserer Partner

Objekt Beschreibung

Exklusive 4-Zimmer-Gartenwohnung in Dornbirn | Erstbezug 2028 | Hochwertige Ausstattung & Garten

Adresse: Rautenweg | Haus C | Whg. 02

Geschoss: Erdgeschoss

Wohnfläche: ca. 96,20 m²

Gartenfläche: ca. 40,91 m²

Terrasse: ca. 11,52 m²

Kaufpreis: € 749.000,00

Bezugsfertig: Mitte 2028

Zimmer: 4

Bäder: 1

Tiefgaragenstellplatz: optional

Status: Neubau – Erstbezug

Ihr neues Zuhause in Dornbirn – geräumig, naturnah und hochwertig

Willkommen in Ihrer neuen Gartenwohnung im beliebten Dornbirner Rautenweg! Diese exklusive 4-Zimmer-Wohnung im Erdgeschoss eines modernen Neubaus überzeugt durch großzügige Raumaufteilung, hochwertige Ausstattung und einen privaten Garten – perfekt für Familien, Paare mit Platzbedarf oder Wohnen und Arbeiten unter einem Dach.

Mit ca. 96,20 m² Wohnfläche, einer großzügigen Terrasse und einem eigenen Garten bietet Wohnung C02 ein durchdachtes Wohnkonzept für anspruchsvolle Käufer:innen.

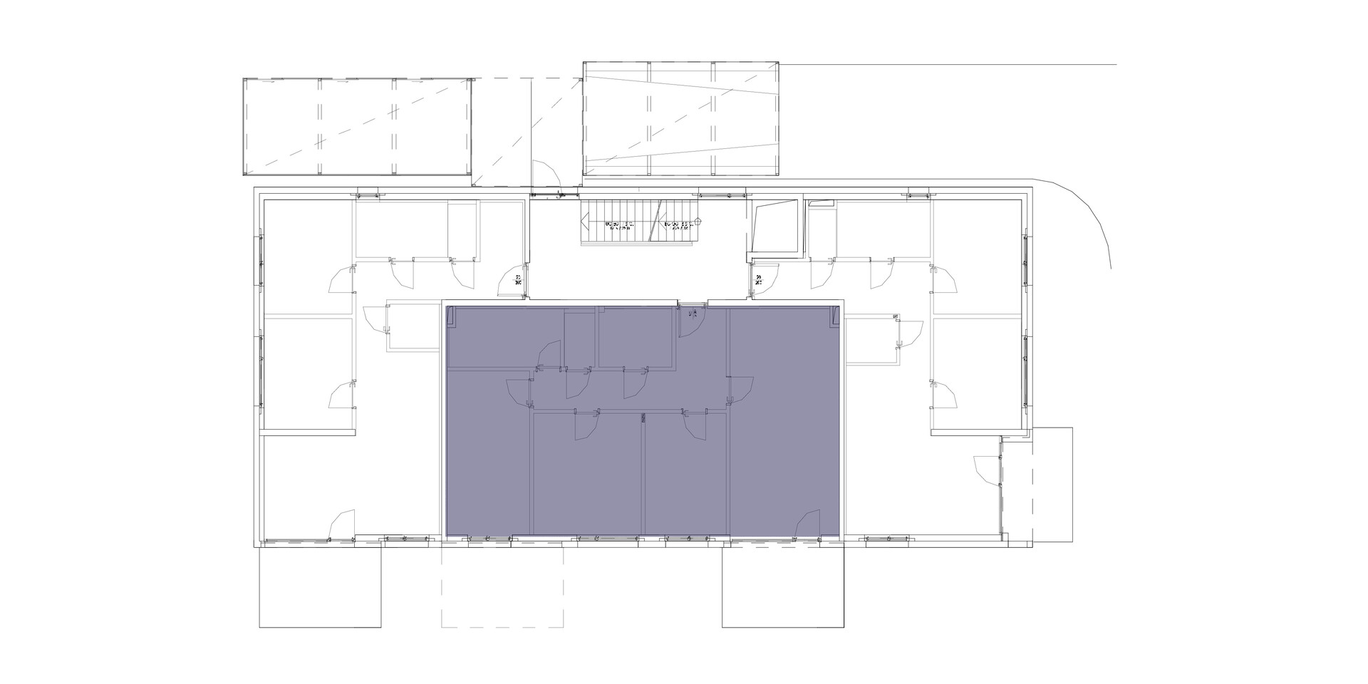
Raumaufteilung im Detail

  1. Kochen/Wohnen/Essen: 28,10 m² – offen, hell & großzügig
  2. Schlafzimmer (Eltern): 15,43 m²
  3. Schlafzimmer (Kind 1): 14,78 m²
  4. Schlafzimmer (Kind 2 / Büro): 11,12 m²
  5. Badezimmer: 7,47 m² – mit Fenster & Badewanne
  6. Separates WC: 1,96 m²
  7. Abstellraum: 4,82 m²
  8. Garderobe: 3,60 m²
  9. Flur: 8,92 m²
  10. Terrasse: 11,52 m²
  11. Garten: 40,91 m²
  12. Kellerabteil: 8,31 m²

Ausstattung auf hohem Niveau

  1. Massivbauweise mit exzellenter Wärmedämmung
  2. Luftwärmepumpe & Photovoltaikanlage – energieeffizient & nachhaltig
  3. Fußbodenheizung in allen Wohnräumen
  4. 3-fach verglaste Kunststoff-Alu-Fenster
  5. Elektrische Raffstores als Sonnenschutz
  6. Echtholz-Klebeparkett (Eiche oder Buche) in Wohnräumen
  7. Fliesenböden im Bad und WC (Wand voll verfliest)
  8. Tiefgarage e-mobility-ready – Ladeinfrastruktur vorbereitet
  9. Lift im Gebäude – barrierearmer Zugang
  10. Heizwärmebedarf: 23,7 kWh/m²a | Energieklasse A

Lage – Wohnen in Dornbirns grünem Westen

Die Wohnanlage befindet sich im ruhigen und gut angebundenen Stadtteil Rautenweg, einer der begehrtesten Wohnlagen in Dornbirn. Ideal für Familien und Berufstätige:

  1. Messepark Dornbirn fußläufig erreichbar
  2. Öffentliche Verkehrsmittel & Autobahnanschluss in unmittelbarer Nähe
  3. Kindergärten, Schulen, Apotheken, Ärzte und Nahversorger im direkten Umfeld
  4. Natur & Freizeit: Dornbirner Ache, Ried oder das Bödele laden zu Spaziergängen, Sport und Erholung ein
  5. Zentrum Dornbirn: Marktplatz, Cafés, Wochenmarkt & Kultur in wenigen Minuten


Haus C | Wohnung 02 ist eine moderne Gartenwohnung mit durchdachtem Grundriss, exklusiver Ausstattung und nachhaltiger Bauweise. Ein Zuhause zum Wohlfühlen, das höchste Wohnansprüche erfüllt und gleichzeitig eine zukunftssichere Investition darstellt.