FLEXIBEL
FINANZIEREN

Kreditbedarf
Eigenmittel
%
Jahre
Zins | Laufzeit
mtl. Rate
ländleimmo.at / Kaufobjekt / Wohnung / Gartenwohnung / Vorarlberg / Dornbirn / Dornbirn / Traumhafte Gartenwohnung in Dornbirn: Erstbezug mit Terrasse und modernem Komfort!

Traumhafte Gartenwohnung in Dornbirn: Erstbezug mit Terrasse und modernem Komfort!

images icon

3 Zimmer

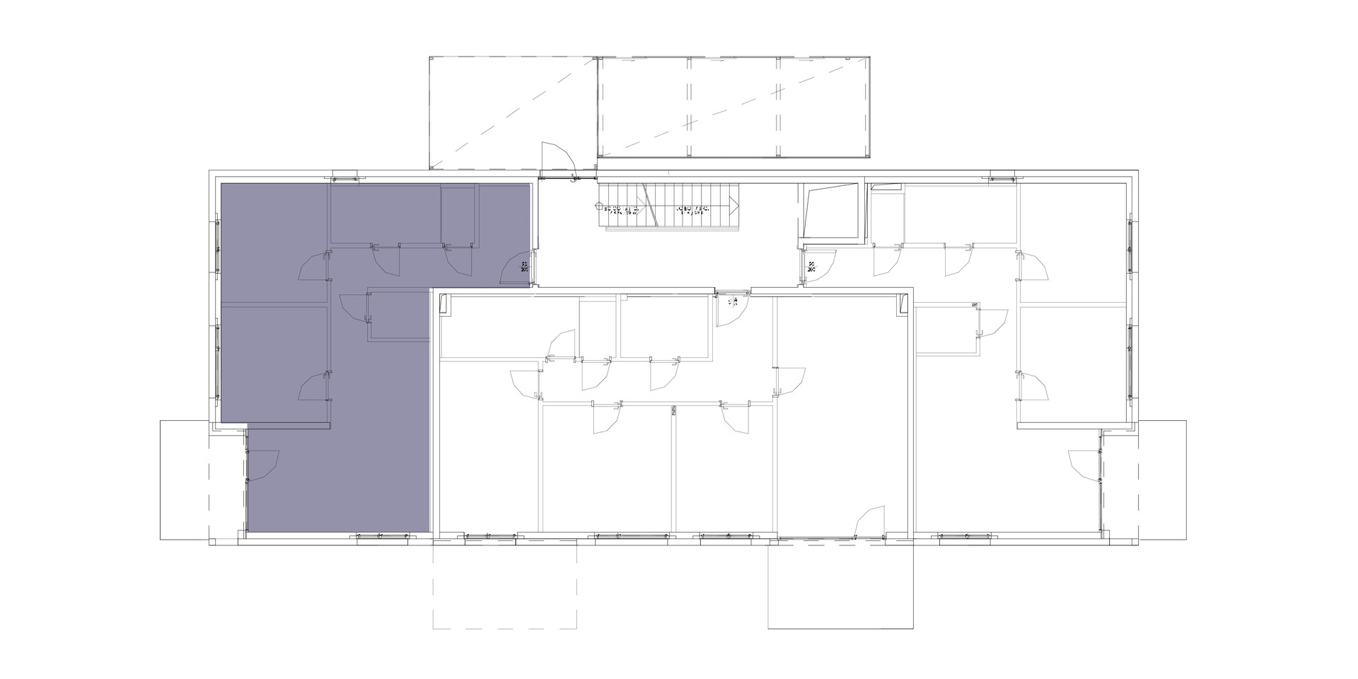
Grundriss

images icon

69,62 m²

Wohnfläche

€ 545.000

Johannes Breuss

Unique87 GmbH

Preise

Kaufpreis € 545.000
Preis (Auto-)Stellplatz € 25.000
Erklärung Kosten zzgl. Grunderwerbssteuer: 3,5% zzgl. Grundbucheintragung: 1,1% zzgl. Nebenkosten: 1,2 % Vertrags- und Treuhandkosten

Objekt Informationen

Wohnfläche 69,62 m²
Zimmer 3
Nebenräume 1
Etage Erdgeschoss
Bautyp Neubau/Erstbezug
Baujahr 2024
Bauweise
  • Massiv
Objektart Wohnung
Objekttyp Gartenwohnung
Badezimmer 1
Terrasse 8,66 m²
Garten 131,72 m²
Keller 7,17 m²
Heizung
  • Solar
  • Wärmepumpe
  • Fußbodenheizung
Verfügbar ab 2025
Heizwärmebedarf (HWB) 23,7 kwh/m²a
Klasse Heizwärmebedarf (Klasse HWB) A
Gesamtenergieeffizienz-Faktor (fGEE) 0,63 kwh/m²a
Klasse Gesamtenergieeffizienz-Faktor (Klasse fGEE) A+
Externe ID A01

Ausstattung:

  • icon Boden: Fliesen, Parkett
  • icon Bad mit: Dusche, Fenster
  • icon Ausrichtung Balkon: Süden, Westen

Empfohlene Services unserer Partner

Objekt Beschreibung

Exklusive Gartenwohnung im Erstbezug in Dornbirn – Ruhige Lage, moderne Ausstattung & traumhafter Garten!

Adresse: Rautenweg | Haus A | Whg. 01

Geschoss: Erdgeschoss

Wohnfläche: ca. 69,62 m²

Gartenfläche: ca. 131,72 m²

Kaufpreis: € 545.000,00

Bezugsfertig: Anfang 2027

Ihr neues Zuhause in Dornbirn – modern, naturnah und hochwertig

Willkommen in Ihrer neuen Wohlfühloase im Herzen von Dornbirn, Vorarlberg! Diese exklusive 3-Zimmer-Gartenwohnung im Erdgeschoss eines hochwertigen Neubaus bietet Ihnen ein ideales Zusammenspiel aus zeitgemäßem Wohnkomfort und naturnaher Lebensqualität.

Mit 69,62 m² Wohnfläche, einer großzügigen Terrasse (8,66 m²) und einem privaten Garten mit über 130 m² erfüllt diese Wohnung höchste Ansprüche – sei es als neues Zuhause für Paare, kleine Familien oder anspruchsvolle Singles mit Platzbedarf.

Raumaufteilung & Highlights

  1. Kochen/Wohnen/Essen: 26,85 m² – offen und lichtdurchflutet
  2. Schlafzimmer: 11,06 m²
  3. Kinder-/Arbeitszimmer: 11,43 m²
  4. Bad mit Fenster & Badewanne: 5,78 m²
  5. Separates WC, Abstellraum & Garderobe
  6. Terrasse: 8,66 m²
  7. Garten: 131,72 m²
  8. Kellerabteil: 7,17 m²
  9. Tiefgaragenstellplatz optional

Ausstattung der Extraklasse

Diese Wohnung wird schlüsselfertig im Erstbezug übergeben und überzeugt mit zahlreichen hochwertigen Ausstattungsmerkmalen:

  1. Massivbauweise mit exzellenter Wärmedämmung
  2. Luftwärmepumpe & Photovoltaikanlage für nachhaltiges Heizen
  3. Fußbodenheizung in allen Wohnräumen
  4. Moderne Kunststoff-Alu-Fenster mit 3-fach-Verglasung
  5. Elektrische Raffstores als Sonnenschutz
  6. Echtholz-Klebeparkett (Eiche oder Buche) in den Wohnräumen
  7. Fliesen in Bad und WC mit kompletter Wandverfliesung
  8. e-mobility-ready Tiefgarage mit vorbereiteter Ladeinfrastruktur
  9. Lift im Gebäude für barrierearmen Zugang

Energiekennzahl: 23,7 kWh/m²a (Klasse A)

Perfekte Lage – Urbanität trifft Natur

Die Wohnanlage liegt im begehrten Dornbirner Rautenweg mit idealer Anbindung:

  1. Messepark Dornbirn (fußläufig)
  2. Bushaltestelle & Autobahnanschluss Dornbirn-West in direkter Nähe
  3. Ärzte, Apotheken, Schulen, Kindergärten, Supermärkte im Umfeld
  4. Naherholung vor der Tür: Dornbirner Ache, Ried und Bödele laden zu Aktivitäten im Freien ein
  5. Kulturelles Zentrum Dornbirns mit Marktplatz, Wochenmarkt, Cafés und Restaurants nur wenige Minuten entfernt

Fazit – Ihre Chance auf ein besonderes Zuhause

Diese Neubau-Gartenwohnung vereint Komfort, Qualität und Lebensfreude auf höchstem Niveau. Die großzügige Gartenfläche, die moderne Technik und die nachhaltige Bauweise machen diese Immobilie zu einer sicheren Investition in Ihre Zukunft.