FLEXIBEL
FINANZIEREN

Kreditbedarf
Eigenmittel
%
Jahre
Zins | Laufzeit
mtl. Rate
ländleimmo.at / Kaufobjekt / Wohnung / Allgemein / Vorarlberg / Dornbirn / Dornbirn / Privatverkauf: 2-Zimmerwohnung inkl Tiefgaragenplatz

Privatverkauf: 2-Zimmerwohnung inkl Tiefgaragenplatz

images icon

2 Zimmer

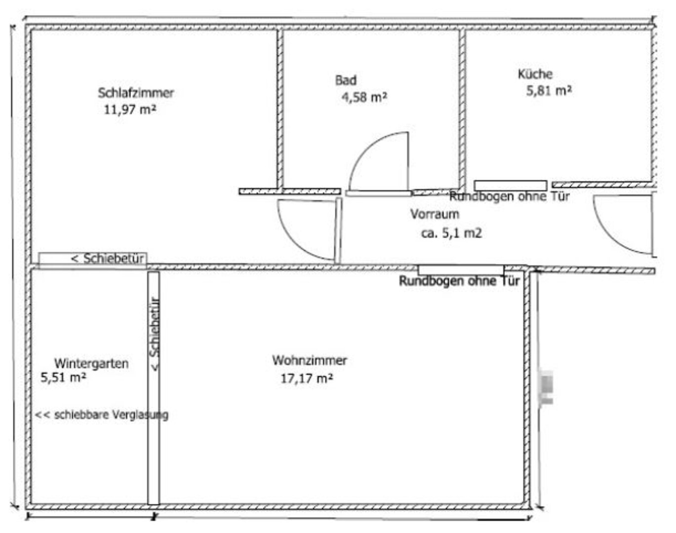
Grundriss

images icon

50,67 m²

Wohnfläche

€ 239.000

Privatanzeige

Preise

Kaufpreis € 239.000
Monatliche Kosten € 179
Erklärung Kosten Grunderwerbsteuer 3,5% Grundbucheintragungsgebühr 1,1% Vertragserrichtungskosten sowie Barauslagen

Objekt Informationen

Wohnfläche 50,67 m²
Zimmer 2
Anzahl Stockwerke 3
Etage 1. OG
Bautyp Gebraucht
Baujahr 1990
Bauweise
  • Massiv
Objektart Wohnung
Objekttyp Allgemein
Badezimmer 1
Loggia 5,51 m²
Keller 4,50 m²
Heizung
  • Gas
Verfügbar ab 01.08.2026
Heizwärmebedarf (HWB) 102,91 kwh/m²a
Klasse Heizwärmebedarf (Klasse HWB) D
Gesamtenergieeffizienz-Faktor (fGEE) 1,77 kwh/m²a
Klasse Gesamtenergieeffizienz-Faktor (Klasse fGEE) D
Parkplatz
  • (Tief-)Garage

Ausstattung:

  • icon Bad mit: Badewanne
  • icon Ausrichtung Balkon: Süden

Empfohlene Services unserer Partner

Objekt Beschreibung

Ich verkaufe aufgrund eines Wohnortwechsels meine schöne und gemütliche 2-Zimmerwohnung in Bestlage in Dornbirn. Ein Tiefgaragenplatz ist im Preis enthalten. Die Wohnanlage in Massivbauweise befindet sich in ruhiger und sonniger Lage (Sackgasse) und dennoch zentral. Sämtliche Einrichtungen des täglichen Bedarfs (Arzt, Bank, Apotheke, Bäckerei, Cafe, Post, Bushaltestelle, Lebensmittelgeschäfte, Schule, Kindergarten) erreichen Sie in nur wenigen Gehminuten.


Die Wohnanlage verfügt über ausreichend Besucherparkplätze (teils sogar überdacht), Zweiradabstellplatz, Fahrradraum, Allgemein-Abstellraum und Trockenraum.


Angehängte Dokumente