ländleimmo.at
/
Kaufobjekt
/
Wohnung
/
Allgemein
/
Vorarlberg
/
Bregenz
/ Bregenz
/
Wohnungspaket mit spannendem Preis in Bregenz, Achsiedlung zu verkaufen (alle Wohnungen vermietet)
Wohnungspaket mit spannendem Preis in Bregenz, Achsiedlung zu verkaufen (alle Wohnungen vermietet)
N/A
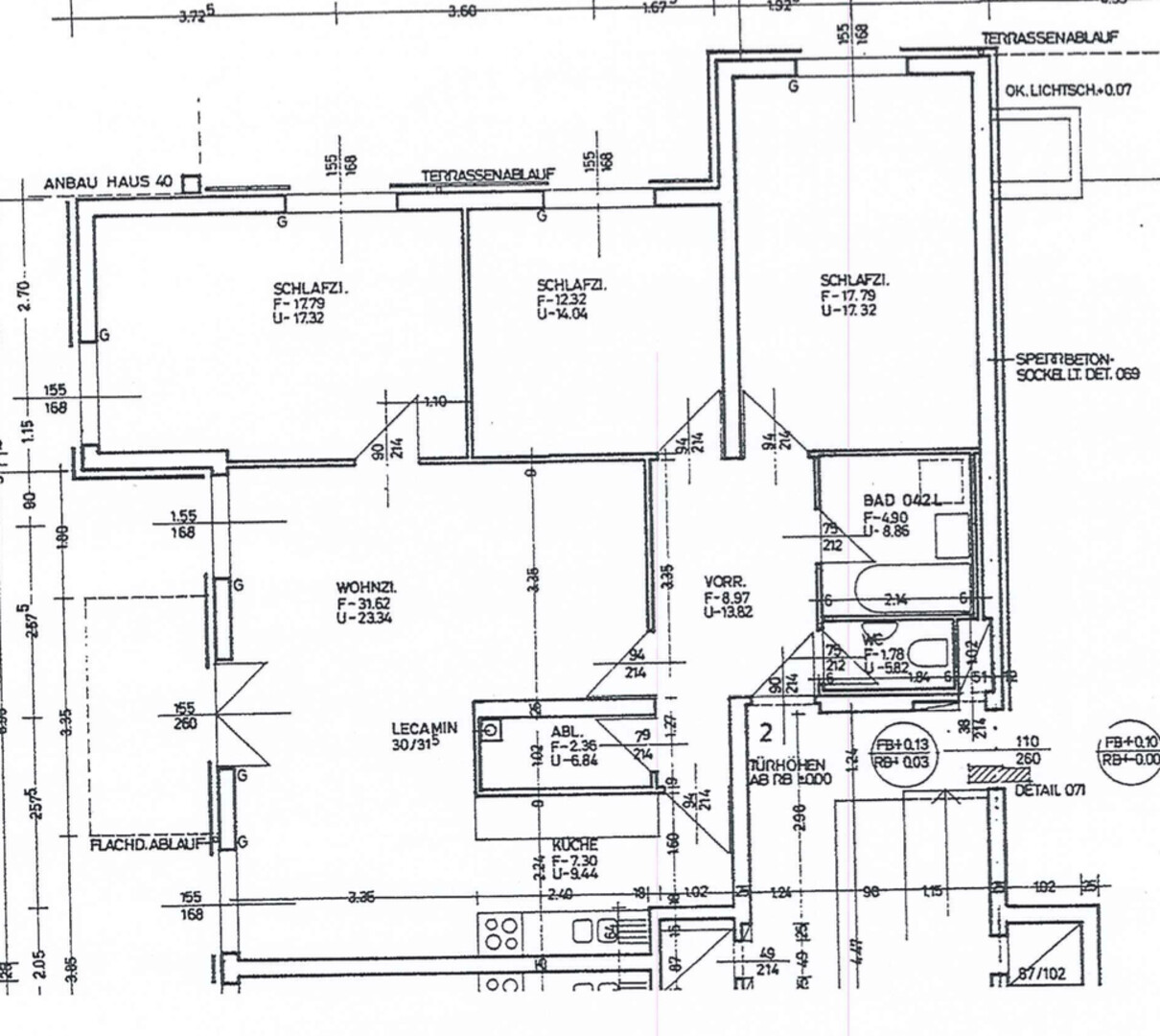
Grundriss
Preis auf Anfrage
Preise
Preis auf Anfrage
Objekt Informationen
Bautyp
Gebraucht
Baujahr
1982
Objektart
Wohnung
Objekttyp
Allgemein
Heizung
- Gas
- Zentralheizung
Verfügbar ab
sofort
Gesamtanzahl Stellplätze
5
Heizwärmebedarf (HWB)
58,00 kwh/m²a
Klasse Heizwärmebedarf (Klasse HWB)
C
Gesamtenergieeffizienz-Faktor (fGEE)
1,47 kwh/m²a
Klasse Gesamtenergieeffizienz-Faktor (Klasse fGEE)
C
Externe ID
Bodenseeimmo_563
Ausstattung:
-
Einbauküche
-
Boden: Parkett
-
Bad mit: Badewanne, Dusche
Empfohlene Services unserer Partner
Objekt Beschreibung
Wohnungspaket mit spannendem Preis in Bregenz, Achsiedlung zu verkaufen (alle Wohnungen vermietet)
Wir verkaufen ein Wohnungspaket von 3 - 5 Wohnungen in der Achsiedlungsstraße 69/71/79, 6900 Bregenz.
Alle wichtigen Einrichtungen des täglichen Bedarfs sind in Kürze zu Fuß oder mit öffentlichen Verkehrsmitteln zu erreichen.
Das Naherholungsgebiet Bodensee und die Bregenzer Ache befinden sich gerade einmal einen Steinwurf entfernt.
Auf folgende Punkte weisen wir ausdrücklich hin:
- Die Wohnung eignet sich primär zur Eigennutzung
- Bei Vermietung gelten die mietrechtlichen Bestimmungen des WGG (Wohnungsgemeinnützigkeitsgesetz)
- die Wohnung unterliegt bei Vermietung der Vollanwendung des MRG (Mietrechtsgesetz) und Teilen des WGG
- Der Reparaturfonds beträgt Stand 31.12.2024 EUR 29.253,18
- 2014 wurde laut vorigem Eigentümer die Heizung vollständig erneuert
- 2022 wurde die Fassade gereinigt und gestrichen sowie das Treppenhaus und der Kellergang neu gestrichen
- 2025 wird das Dach saniert - die diesbezüglichen, notwendigen Sondervorschreibungen werden vom Verkäufer getragen.
Haus 69
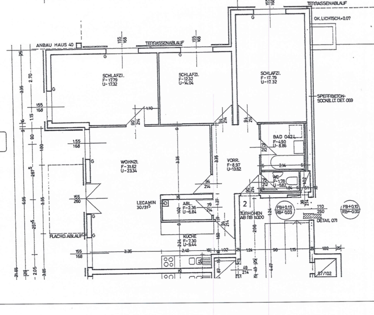
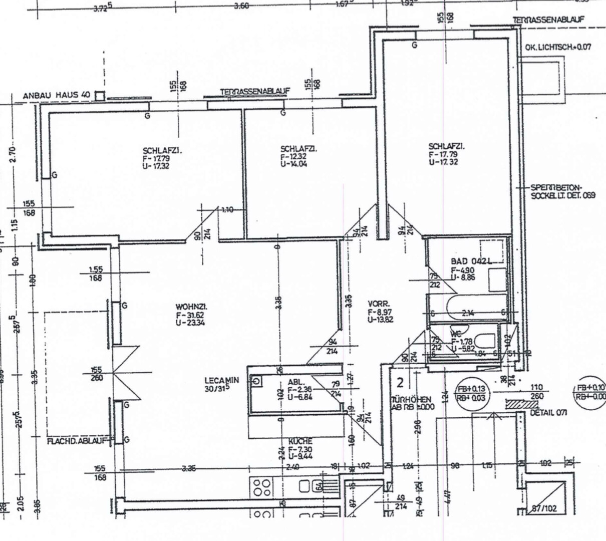
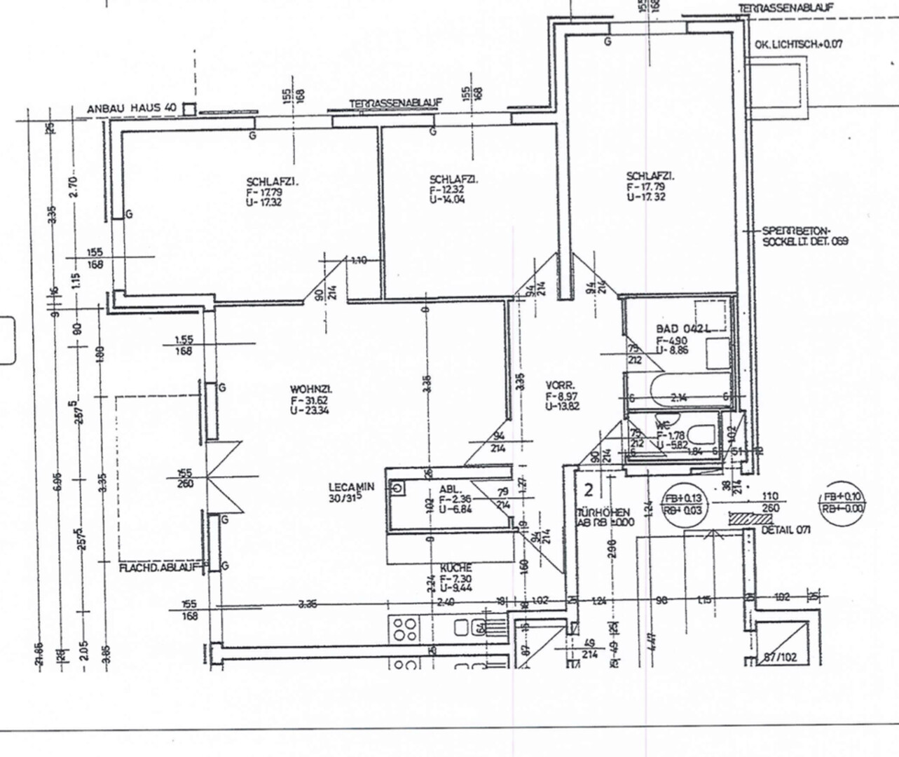
Top Nr. 02 - 92,64 m² unbefristet vermietet
Top Nr. 03 - 57,64 m². unbefristet vermietet
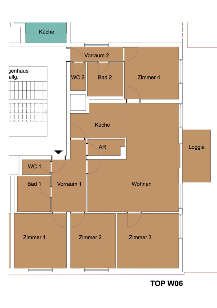
Top Nr. 06 - 120,15 m² befristet vermietet
Haus 71
Top Nr. 12 - 81,87 m² unbefristet vermietet
Haus 79
Top Nr. 02 - 104,83 m². unbefristet vermietet
Energieausweiswerte:
HWB: 58 kWh/m²a (C)
PEB: 193 kWh/m²a (B)
CO2: 37 kg/m²a (C)
fGEE: 1,47 (C)
Kaufpreis: EUR 2.900,00/m²
5 Tiefgaragenplätz: je EUR 18.000,00
Nebenkosten:
3,5% Grunderwerbssteuer
1,1% Grundbucheintragung
1,2% Anwaltskosten inkl. 20% USt
Alle Angaben nach bestem Wissen und Gewissen und stützen sich auf die vom Verkäufer zur Verfügung gestellten Informationen. Flächenangaben sind ca-Angaben.
Irrtum und Zwischenverkauf vorbehalten. Dieses Expose ist eine Vorinformation, als Rechtsgrundlage gilt alleine der abgeschlossene Kaufvertrag. §15 der Maklerverordnung gilt als vereinbart.
Wir verkaufen ein Wohnungspaket von 3 - 5 Wohnungen in der Achsiedlungsstraße 69/71/79, 6900 Bregenz.
Alle wichtigen Einrichtungen des täglichen Bedarfs sind in Kürze zu Fuß oder mit öffentlichen Verkehrsmitteln zu erreichen.
Das Naherholungsgebiet Bodensee und die Bregenzer Ache befinden sich gerade einmal einen Steinwurf entfernt.
Auf folgende Punkte weisen wir ausdrücklich hin:
- Die Wohnung eignet sich primär zur Eigennutzung
- Bei Vermietung gelten die mietrechtlichen Bestimmungen des WGG (Wohnungsgemeinnützigkeitsgesetz)
- die Wohnung unterliegt bei Vermietung der Vollanwendung des MRG (Mietrechtsgesetz) und Teilen des WGG
- Der Reparaturfonds beträgt Stand 31.12.2024 EUR 29.253,18
- 2014 wurde laut vorigem Eigentümer die Heizung vollständig erneuert
- 2022 wurde die Fassade gereinigt und gestrichen sowie das Treppenhaus und der Kellergang neu gestrichen
- 2025 wird das Dach saniert - die diesbezüglichen, notwendigen Sondervorschreibungen werden vom Verkäufer getragen.
Haus 69
Top Nr. 02 - 92,64 m² unbefristet vermietet
Top Nr. 03 - 57,64 m². unbefristet vermietet
Top Nr. 06 - 120,15 m² befristet vermietet
Haus 71
Top Nr. 12 - 81,87 m² unbefristet vermietet
Haus 79
Top Nr. 02 - 104,83 m². unbefristet vermietet
Energieausweiswerte:
HWB: 58 kWh/m²a (C)
PEB: 193 kWh/m²a (B)
CO2: 37 kg/m²a (C)
fGEE: 1,47 (C)
Kaufpreis: EUR 2.900,00/m²
5 Tiefgaragenplätz: je EUR 18.000,00
Nebenkosten:
3,5% Grunderwerbssteuer
1,1% Grundbucheintragung
1,2% Anwaltskosten inkl. 20% USt
Alle Angaben nach bestem Wissen und Gewissen und stützen sich auf die vom Verkäufer zur Verfügung gestellten Informationen. Flächenangaben sind ca-Angaben.
Irrtum und Zwischenverkauf vorbehalten. Dieses Expose ist eine Vorinformation, als Rechtsgrundlage gilt alleine der abgeschlossene Kaufvertrag. §15 der Maklerverordnung gilt als vereinbart.