ländleimmo.at
/
Mietobjekt
/
Wohnung
/
Allgemein
/
Vorarlberg
/
Bregenz
/ Bregenz
/
3-ZI-Wohnung im Zentrum von Bregenz zu vermieten!
3-ZI-Wohnung im Zentrum von Bregenz zu vermieten!
3 Zimmer
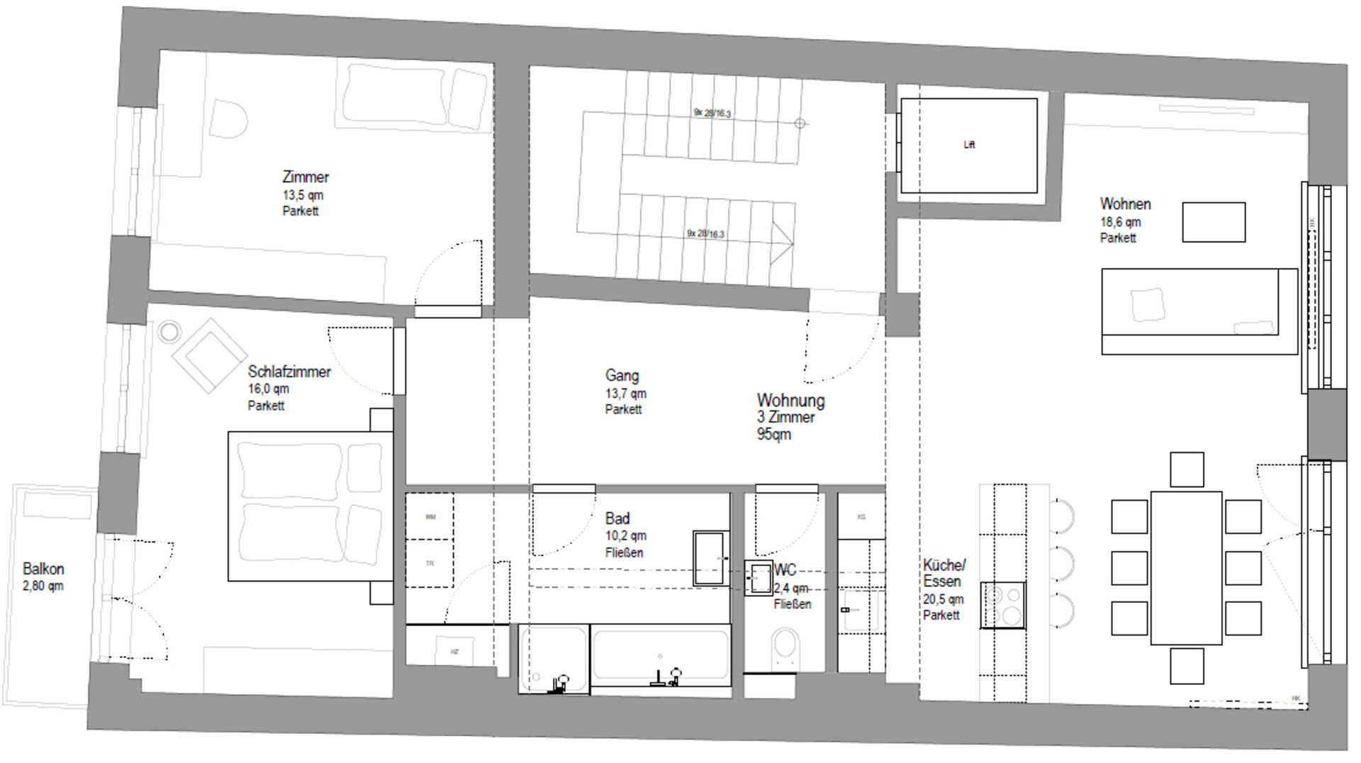
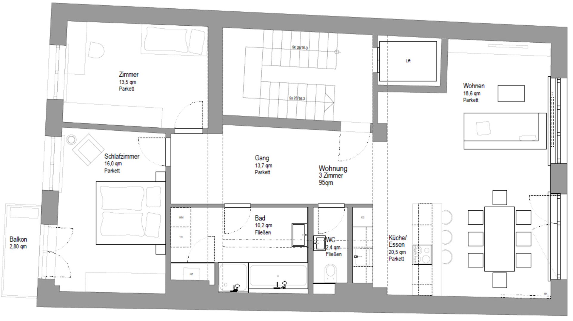
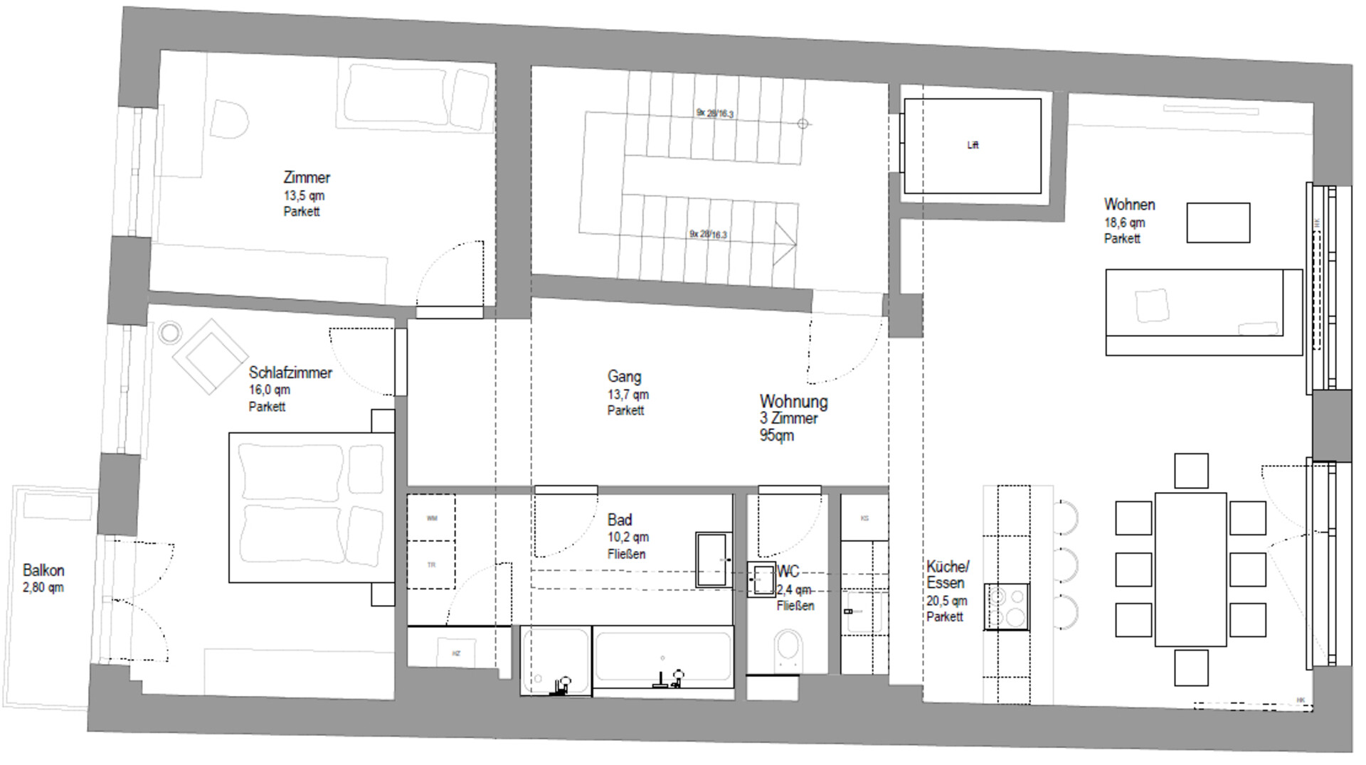
Grundriss
95,00 m²
Wohnfläche
€ 1.550
Preise
Gesamtbelastung
Miete + Betriebskosten + Heizkosten + Sonstige Kosten; inkl. MwSt.
€ 1.550
Netto-Kaltmiete
€ 1.188,19
Betriebskosten (exkl. Mwst)
€ 237
Mehrwertsteuer
Summe der MwSt. aller angegebener Preise
€ 124,81
Gesamtmiete (inkl. MwSt.)
Gesamtbelastung abzüglich Heizkosten BRUTTO
€ 1.313
Miete (exkl. MwSt.)
Miete ohne MwSt., Betriebskosten und Heizkosten
€ 1.188,19
Kaution
€ 4.700
Objekt Informationen
Wohnfläche
95,00 m²
Zimmer
3
Objektart
Wohnung
Objekttyp
Allgemein
Terrasse
2,80 m²
Verfügbar ab
sofort
Gesamtanzahl Stellplätze
1
Heizwärmebedarf (HWB)
89,00 kwh/m²a
Klasse Heizwärmebedarf (Klasse HWB)
C
Gesamtenergieeffizienz-Faktor (fGEE)
1,61 kwh/m²a
Klasse Gesamtenergieeffizienz-Faktor (Klasse fGEE)
C
Externe ID
2017-03628
Parkplatz
- Freiplatz (1)
Ausstattung:
-
Einbauküche
-
Bad mit: Badewanne, Dusche
Empfohlene Services unserer Partner
Objekt Beschreibung
Diese großzügige 3-Zimmer-Wohnung mit rund 95 m² Wohnfläche überzeugt durch eine durchdachte Raumaufteilung und helle, freundliche Räume.
Beim Betreten der Wohnung gelangt man in einen großzügigen Gang, der ausreichend Platz für eine Garderobe und Stauraum bietet. Von hier aus sind alle Räume zentral begehbar.
Das Badezimmer bietet eine Badewanne, eine Dusche, einen Waschtisch sowie einen Waschmaschinenanschluss. Das separate WC ist direkt nebenan.
Der großzügige Wohn- und Essbereich bildet das Herzstück der Wohnung.
Hier finden sowohl ein gemütliches Sofa als auch ein Esstisch problemlos den geeigneten Platz – perfekt für entspannte Stunden oder gesellige Abende.
Die beiden Zimmer bieten ausreichend Platz für ein Doppelbett und einen großen Kleiderschrank und können individuell genutzt werden.
Der Wohnung zugehörig ist weiters ein kleiner Balkon mit ca. 2,80 m² sowie ein Kellerabteil.
Ihr Auto können Sie sicher und bequem auf dem Parkplatz im Innenhof parken.
Lage:
Die Wohnanlage besticht besonders durch ihre zentrale Lage.
Egal ob Sie mit dem Auto oder den öffentlichen Verkehrsmitteln unterwegs sind, alle Einrichtungen des täglichen Bedarfs sind nur einen Steinwurf entfernt. Den Bahnhof erreichen Sie in nur wenigen Gehminuten. Bushaltestellen von wo aus Busse in alle Richtungen fahren befinden sich ebenfalls ganz in Ihrer Nähe. Erholung finden Sie am nahe gelegenen Bodensee, den Sie in nur wenigen Radminuten erreichen. Der Bregenzer Hausberg Pfänder ladet ebenfalls zum Wandern und Spazieren gehen ein. Von der Pfänderspitze aus haben Sie einen atemberaubenden Blick auf die komplette Bodenseeregion.