ländleimmo.at
/
Mietobjekt
/
Wohnung
/
Allgemein
/
Vorarlberg
/
Bregenz
/ Bregenz
/
"ohne Provision" gemütliche 2 Zimmer Wohnung in zentraler Lage
"ohne Provision" gemütliche 2 Zimmer Wohnung in zentraler Lage
2 Zimmer
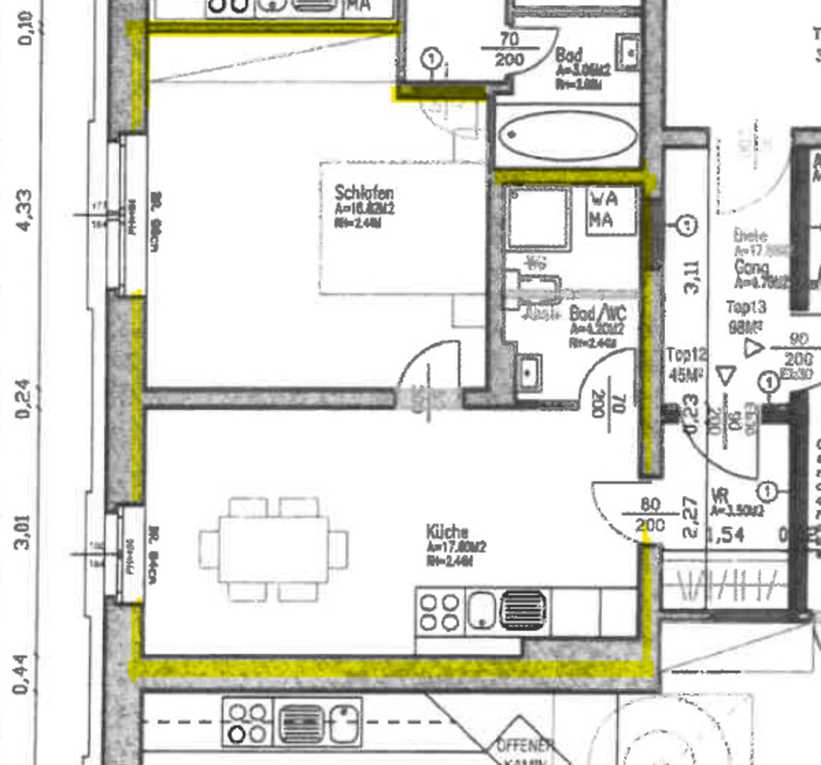
Grundriss
42,12 m²
Wohnfläche
€ 824,57
Preise
Gesamtbelastung
Miete + Betriebskosten + Heizkosten + Sonstige Kosten; inkl. MwSt.
€ 824,57
Betriebskosten (exkl. Mwst)
€ 147,6
Mehrwertsteuer
Summe der MwSt. aller angegebener Preise
€ 61,55
Gesamtmiete (inkl. MwSt.)
Gesamtbelastung abzüglich Heizkosten BRUTTO
€ 676,97
Miete (exkl. MwSt.)
Miete ohne MwSt., Betriebskosten und Heizkosten
€ 615,42
Objekt Informationen
Wohnfläche
42,12 m²
Zimmer
2
Etage
2. OG
Bauweise
- Massiv
Objektart
Wohnung
Objekttyp
Allgemein
Badezimmer
1
Keller
Vorhanden
Fahrradraum
Vorhanden
Heizung
- Gas
- Zentralheizung
Verfügbar ab
ab 01.08.2026 möglich
Befristung
nach Vereinbarung
Heizwärmebedarf (HWB)
117 kwh/m²a
Gesamtenergieeffizienz-Faktor (fGEE)
2,05 kwh/m²a
Ausstattung:
-
Einbauküche
-
Boden: Fliesen, Parkett
-
Bad mit: Dusche
Empfohlene Services unserer Partner
Objekt Beschreibung
Bregenz - Vorklostergasse
Diese schöne 2 Zimmer Wohnung in Bregenz unweit vom Bodenseeufer gelegen wird ab dem 01.08.2026 neu vermietet. Die Wohnung besticht durch die geräumige Aufteilung und die angenehme Lage. Überzeugen Sie sich selbst und fordern Sie unser Besichtigungsvideo an!
Aufteilung: Vorraum, Wohn/Esszimmer mit Küche, Schlafzimmer, Dusche/WC, Kellerabteil
Gegen Aufpreis kann ein Tiefgaragenplatz angemietet werden!
Kaution: 3 Bruttomonatsmieten (Bar oder Bankgarantie)