ländleimmo.at
/
Kaufobjekt
/
Investorenobjekte
/
Haus
/
Vorarlberg
/
Dornbirn
/ Lustenau
/
Gewerbeliegenschaft mit 2 Wohnungen in Lustenau, Rasis Bündt zu verkaufen!
Gewerbeliegenschaft mit 2 Wohnungen in Lustenau, Rasis Bündt zu verkaufen!
N/A
Grundriss
683,18 m²
Wohnfläche
€ 1.300.000
Preise
Kaufpreis
€ 1.300.000
Provision
3 % zzgl. 20% USt.
Objekt Informationen
Wohnfläche
683,18 m²
Grundstücksgröße
857,00 m²
Baujahr
1982
Objektart
Investorenobjekte
Objekttyp
Haus
Heizung
- Öl
Gesamtanzahl Stellplätze
2
Externe ID
REALBURO_Hagen5880
Parkplatz
- (Tief-)Garage (2)
- Freiplatz (2)
Empfohlene Services unserer Partner
Objekt Beschreibung
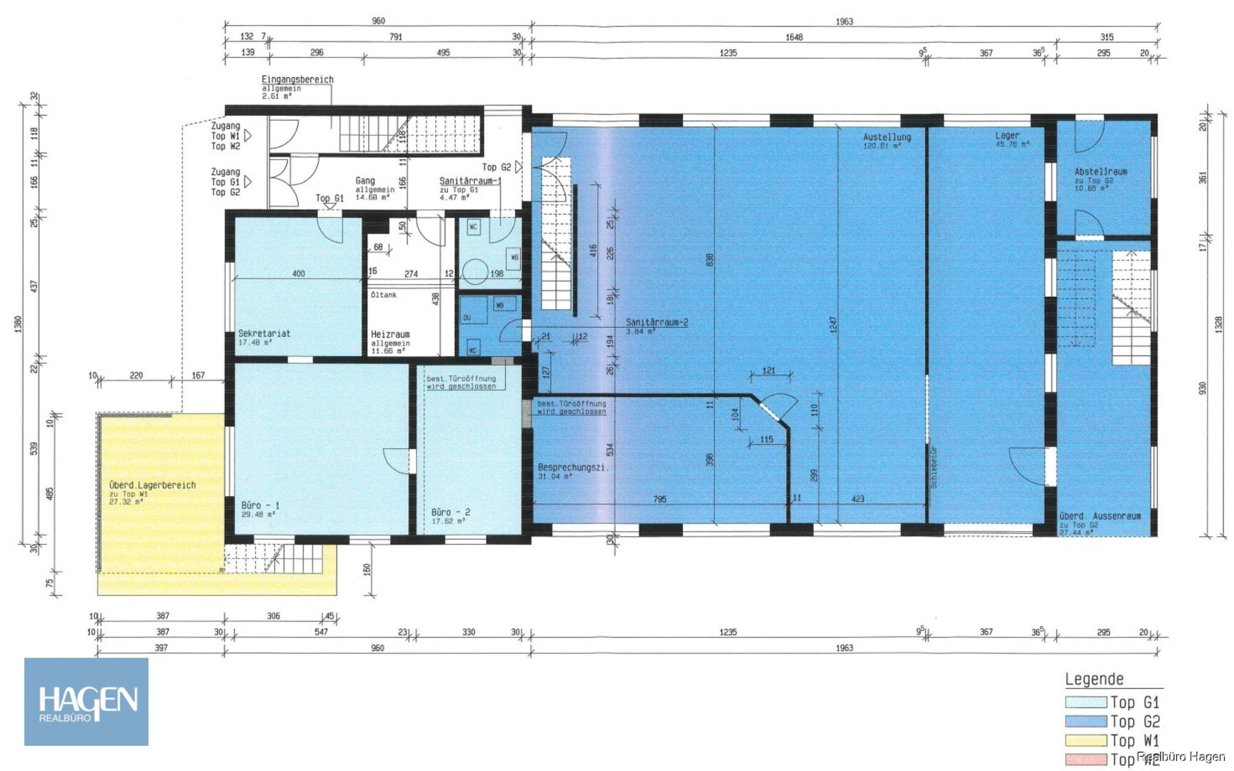
Wohn- und Geschäftshaus in Lustenau zu verkaufen!
Die Liegenschaft mit der Adresse Rasis Bündt 9b in Lustenau liegt am nordöstlichen Siedlungsrand der Marktgemeinde im Industriegebiet "Nord - Rasis Bündt".
Die Fläche ist als Betriebsgebiet (BB-I) gewidmet.
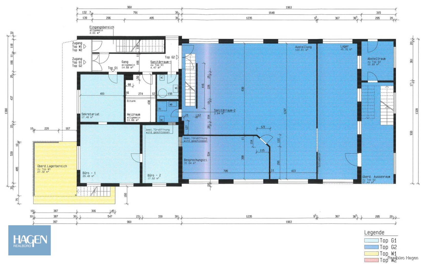
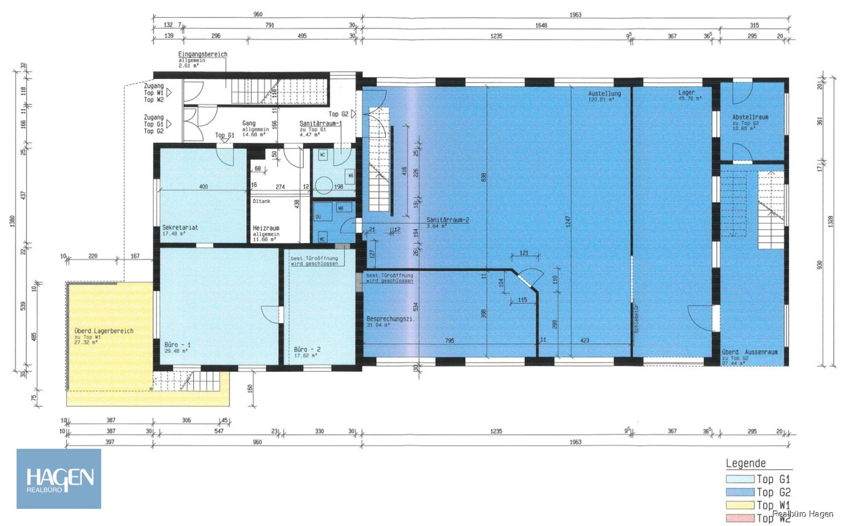
Das Wohn- und Geschäftshaus ist wie folgt aufgeteilt:
EG - Geschäftsfläche 1 (64,58 m²):
- Sekretariat
- Büro 1
- Büro 2
- Sanitärraum
EG - Geschäftsfläche 2 (201,25 m²):
- Ausstellungsraum
- Besprechungszimmer
- Sanitärraum
- Lager
- Abstellraum
- Überdachter Außenraum
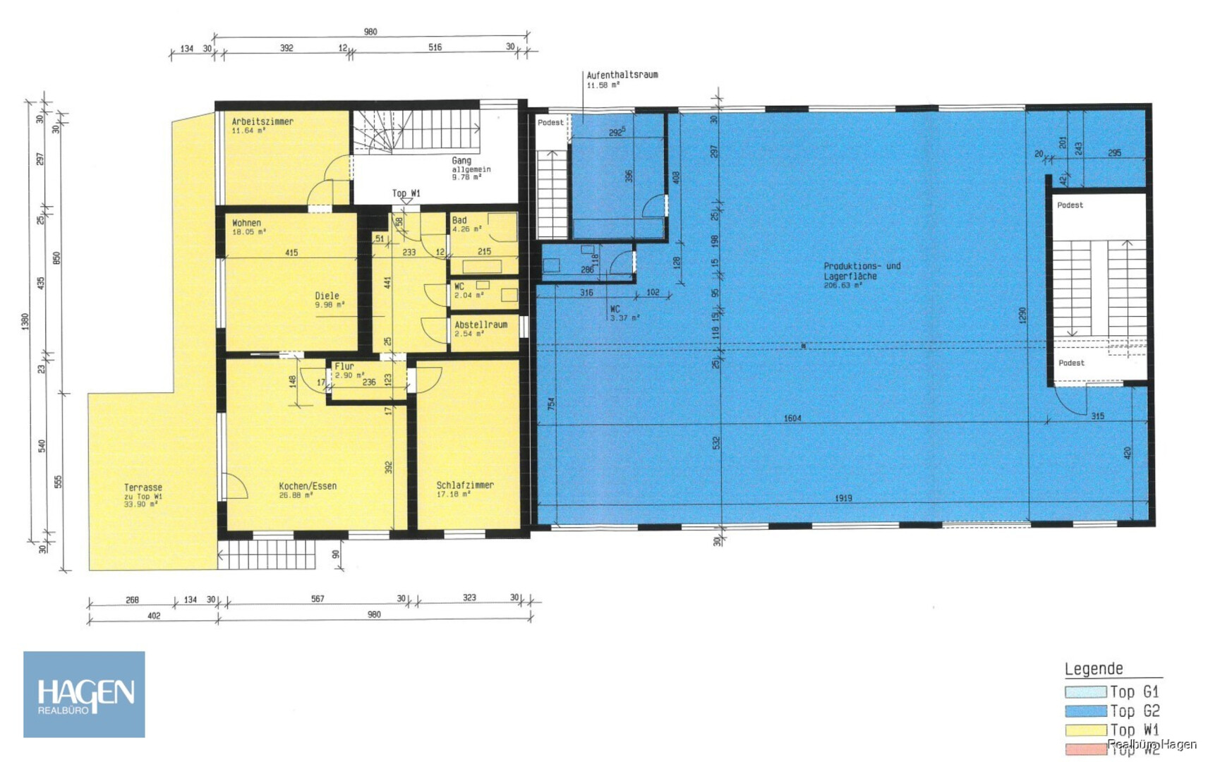
1. OG - Geschäftsfläche 2 (221,58 m²):
- Produktions- und Lagerfläche
- Aufenthaltsraum
- WC
1. OG - Wohnung W 1 (95,47 m²):
- Diele
- Badezimmer
- WC
- Abstellraum
- Flur
- Schlafzimmer
- Kochen / Essen
- Wohnen
- Arbeitszimmer
- Großzügige Terrasse
- Teilweise überdachte Lagerfläche im EG
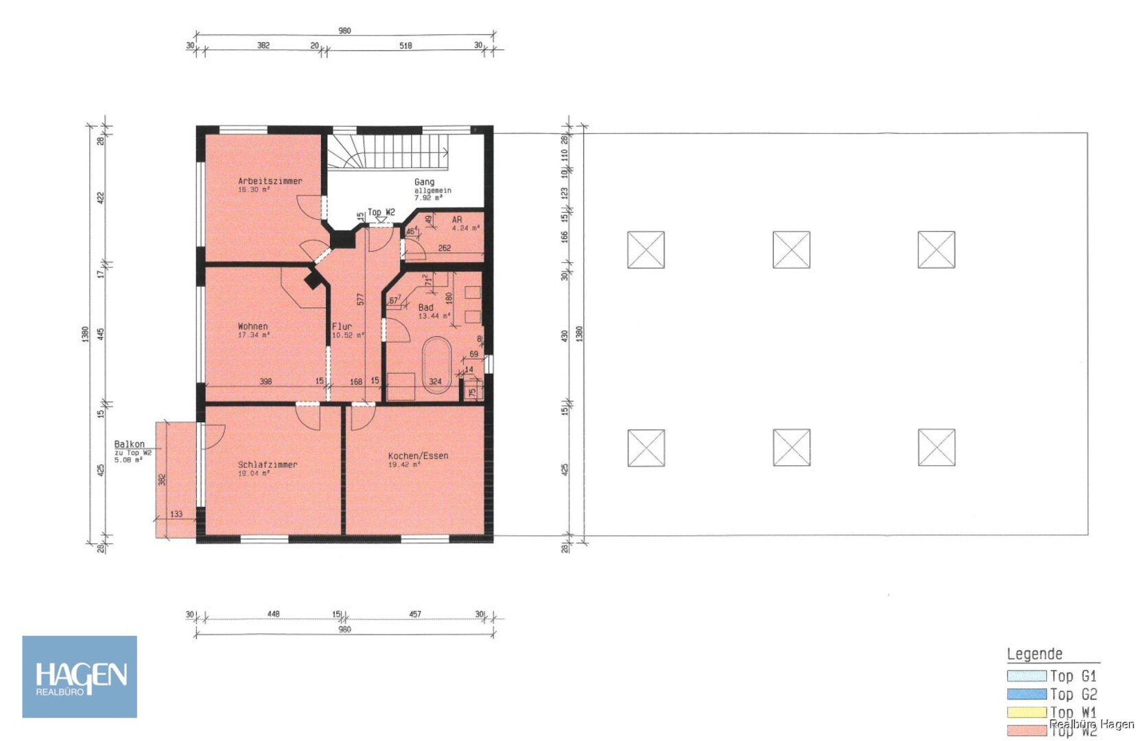
2. OG - Wohnung W 2 (100,30 m²):
- Flur
- Abstellraum
- Badezimmer
- Kochen / Essen
- Schlafzimmer
- Wohnen
- Arbeitszimmer
- Balkon
Es sind Außenabstellplätze und eine Doppelgarage vorhanden.
Derzeit vermietet sind das 1. OG der Geschäftsfläche 2 sowie beide Wohnungen.
Kaufpreis: € 1.300.000,00
Energieausweis ist in Erstellung.
Dann vereinbaren Sie doch einfach einen Termin mit uns – eine Besichtigung lohnt sich.
Das Realbüro Hagen-Team garantiert professionelle Beratung und völlige Unabhängigkeit.
Durch unsere ausgeprägte Kompetenz und langjährige Erfahrung versichern wir Ihnen eine problemlose und sorgenfreie Abwicklung bis zur Schlüsselübergabe und darüber hinaus.
Ihr Ansprechpartner:
Ralph Moser (Tel. 05577/83 111-20) oder
Sonstige Auslagen:
3,5% Grunderwerbsteuer
1,1% Grundbucheintragungsgebühr
Vertragserrichtungskosten und Barauslagen
3% Vermittlungshonorar (+ 20% USt.) lt. empfohlener Geschäftsbedingungen der Bundesinnung gemäß § 10 IMV 1996, i.d.g.F.
Die Liegenschaft mit der Adresse Rasis Bündt 9b in Lustenau liegt am nordöstlichen Siedlungsrand der Marktgemeinde im Industriegebiet "Nord - Rasis Bündt".
Die Fläche ist als Betriebsgebiet (BB-I) gewidmet.
Das Wohn- und Geschäftshaus ist wie folgt aufgeteilt:
EG - Geschäftsfläche 1 (64,58 m²):
- Sekretariat
- Büro 1
- Büro 2
- Sanitärraum
EG - Geschäftsfläche 2 (201,25 m²):
- Ausstellungsraum
- Besprechungszimmer
- Sanitärraum
- Lager
- Abstellraum
- Überdachter Außenraum
1. OG - Geschäftsfläche 2 (221,58 m²):
- Produktions- und Lagerfläche
- Aufenthaltsraum
- WC
1. OG - Wohnung W 1 (95,47 m²):
- Diele
- Badezimmer
- WC
- Abstellraum
- Flur
- Schlafzimmer
- Kochen / Essen
- Wohnen
- Arbeitszimmer
- Großzügige Terrasse
- Teilweise überdachte Lagerfläche im EG
2. OG - Wohnung W 2 (100,30 m²):
- Flur
- Abstellraum
- Badezimmer
- Kochen / Essen
- Schlafzimmer
- Wohnen
- Arbeitszimmer
- Balkon
Es sind Außenabstellplätze und eine Doppelgarage vorhanden.
Derzeit vermietet sind das 1. OG der Geschäftsfläche 2 sowie beide Wohnungen.
Kaufpreis: € 1.300.000,00
Energieausweis ist in Erstellung.
Einmalkosten / Nebenkosten
Haben wir Ihr Interesse geweckt?Dann vereinbaren Sie doch einfach einen Termin mit uns – eine Besichtigung lohnt sich.
Das Realbüro Hagen-Team garantiert professionelle Beratung und völlige Unabhängigkeit.
Durch unsere ausgeprägte Kompetenz und langjährige Erfahrung versichern wir Ihnen eine problemlose und sorgenfreie Abwicklung bis zur Schlüsselübergabe und darüber hinaus.
Ihr Ansprechpartner:
Ralph Moser (Tel. 05577/83 111-20) oder
Sonstige Auslagen:
3,5% Grunderwerbsteuer
1,1% Grundbucheintragungsgebühr
Vertragserrichtungskosten und Barauslagen
3% Vermittlungshonorar (+ 20% USt.) lt. empfohlener Geschäftsbedingungen der Bundesinnung gemäß § 10 IMV 1996, i.d.g.F.