FLEXIBEL
FINANZIEREN

Kreditbedarf
Eigenmittel
%
Jahre
Zins | Laufzeit
mtl. Rate
ländleimmo.at / Kaufobjekt / Haus / Einfamilienhaus / Vorarlberg / Dornbirn / Lustenau / Großzügige Villa mit beeindruckendem Grundstück und Pool

Großzügige Villa mit beeindruckendem Grundstück und Pool

images icon

7 Zimmer

Grundriss

images icon

282,98 m²

Wohnfläche

Preis auf Anfrage

Matthias Hagen

Hagen Immobilientreuhand GmbH

Preise

Preis auf Anfrage

Objekt Informationen

Wohnfläche 282,98 m²
Grundstücksgröße 2.325,00 m²
Zimmer 7
Bautyp Gebraucht
Baujahr 1993
Objektart Haus
Objekttyp Einfamilienhaus
Badezimmer 2
Terrasse 81,46 m²
Heizung
  • Gas
  • Ofen/Kamin
Verfügbar ab Nach Vereinbarung
Gesamtanzahl Stellplätze 8
Heizwärmebedarf (HWB) 80,00 kwh/m²a
Klasse Heizwärmebedarf (Klasse HWB) C
Gesamtenergieeffizienz-Faktor (fGEE) 1,03 kwh/m²a
Klasse Gesamtenergieeffizienz-Faktor (Klasse fGEE) C
Externe ID Hagen-00349
Parkplatz
  • Freiplatz (8)

Ausstattung:

  • icon Einbauküche
  • icon Bad mit: Badewanne, Dusche, Fenster
  • icon Gäste-WC

Empfohlene Services unserer Partner

Objekt Beschreibung


Dieses repräsentative Einfamilienhaus auf einem über 2000 m² großen Grundstück bietet Ihnen luxuriösen Wohnkomfort und eine beeindruckende Wohnfläche von über 280 m².

Im Erdgeschoss erwartet Sie ein großzügiger Wohn- und Essbereich mit abgetrennter Küche, ein gemütliches Kaminzimmer und ein separater Büroraum. Eine große, überdachte Terrasse und der traumhafte Garten mit Swimmingpool laden zum Entspannen ein. Zusätzlich gibt es ein Gäste-WC auf dieser Etage.

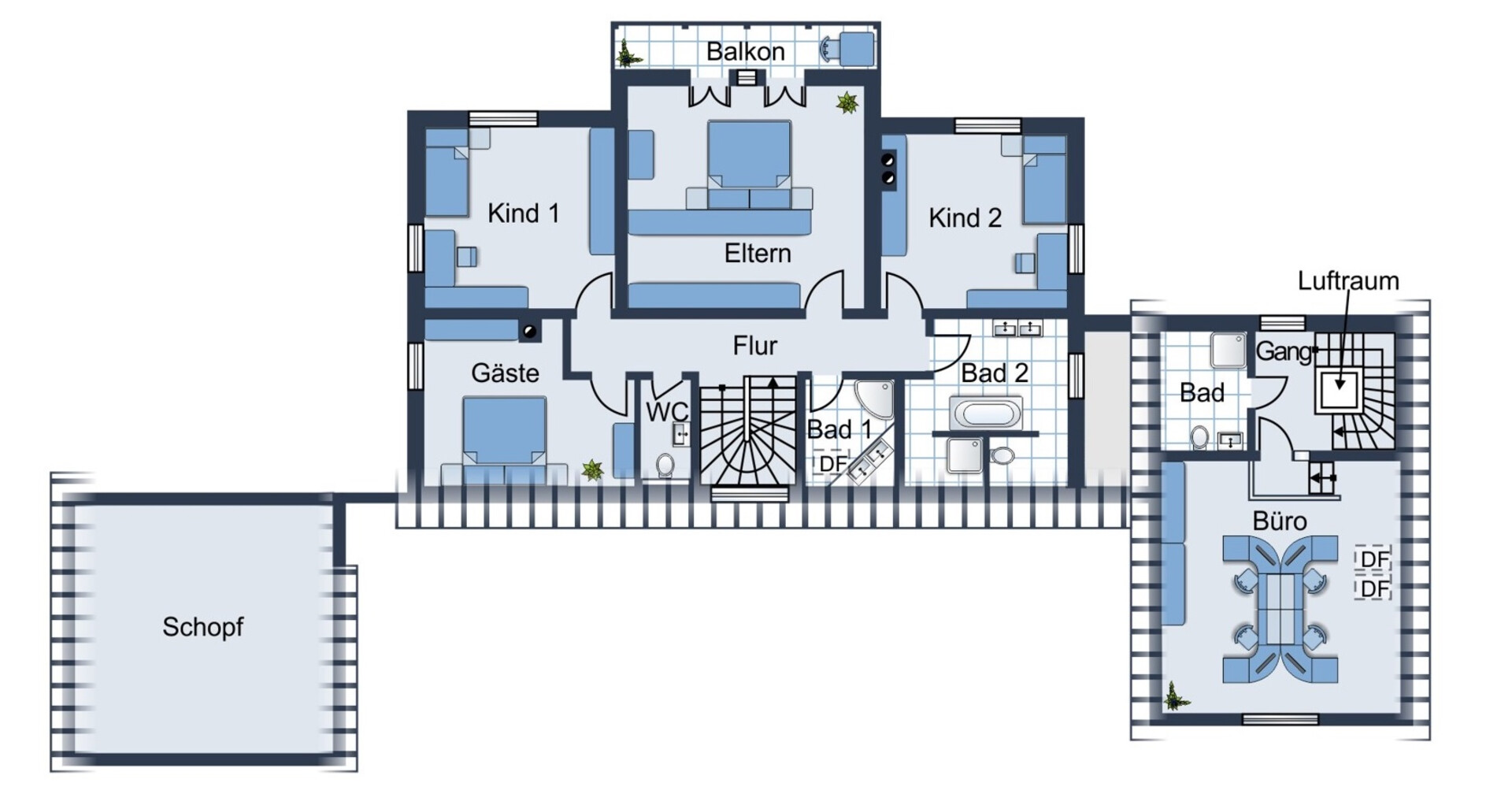
Im Obergeschoss befinden sich 4 geräumige Schlafzimmer, 2 Badezimmer und ein separates WC, die den Wohnkomfort perfekt abrunden.

Besonders praktisch: Über der Doppelgarage liegt eine Einliegerwohnung, die sich ideal als Büro oder Gästebereich nutzen lässt. Außerdem verfügt das Haus über ausreichend Außenstellplätze und einen großen Keller.

Ein einmaliges Anwesen, das keine Wünsche offenlässt!