ländleimmo.at / Mietobjekt / Gewerbliche Immobilie / Lager / Werkstatt / Vorarlberg / Bregenz / Hard / Attraktive Gewerbeflächen in Hard mit Industriecharme und Seenähe

Attraktive Gewerbeflächen in Hard mit Industriecharme und Seenähe

images icon

N/A

Grundriss

images icon

3.382,00 m²

Nutzfläche

Preis auf Anfrage

Reinhard Götze

RE/MAX Immowest | Immowest GmbH

Preise

Preis auf Anfrage
Einmalkosten 2 BMM
Provision 2 BMM

Objekt Informationen

Nutzfläche 3.382,00 m²
Bautyp Gebraucht
Baujahr 1896
Objektart Gewerblich
Objekttyp Lager / Werkstatt
Externe ID Remax_5641

Empfohlene Services unserer Partner

Objekt Beschreibung


- Laderampe für LKW-Anlieferungen
- Mietflächen bereits ab ca. 198 m² verfügbar
- Teilflächen H1.1 bis H1.14 individuell kombinierbar
- Anmietung der gesamten Halle möglich
- Die Laufzeit kann individuell vereinbart werden
- Kurzfristige, mittel- oder langfristige Nutzung möglich
- Ideal für Lager, Produktion, Gewerbe oder kreative Projekte
- Bürofläche kann bei Bedarf zusätzlich errichtet werden


FLEXIBLE FLÄCHEN. FLEXIBLE LAUFZEITEN.

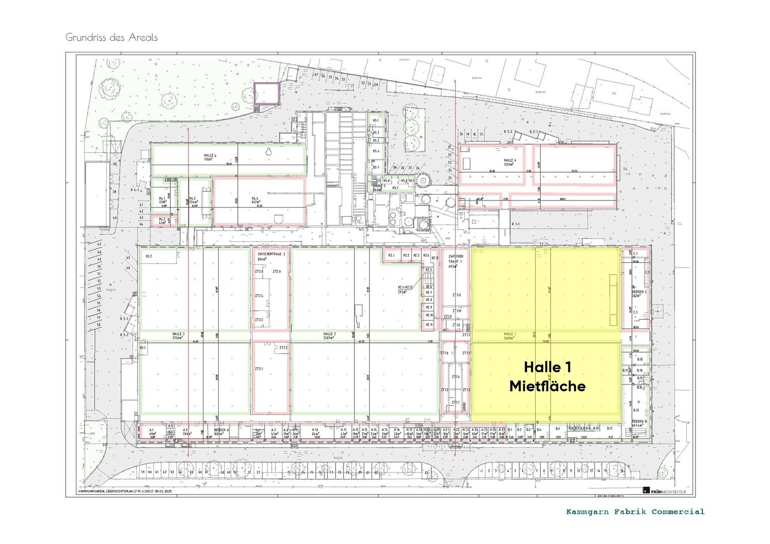
Ob kompakte Teilfläche oder gesamte Halle: Die Halle 1 (ca. 3.382 m²) in der Kammgarn Fabrik lässt sich individuell an Ihren Bedarf anpassen. Mietflächen sind bereits ab cirka
198 m² verfügbar und können je nach Nutzung, Wachstum und Projektanforderung flexibel zusammengestellt werden.

Auch die Laufzeiten bleiben bewusst offen: Von kurzfristigen Lösungen bis zu langfristigen Nutzungskonzepten sind individuelle Vereinbarungen möglich. Bei entsprechendem Bedarf kann auch die gesamte Halle angemietet werden. Zusätzlich besteht die Möglichkeit, ergänzende Büroflächen zu errichten und die Nutzung damit optimal auf Ihr Unternehmen abzustimmen.

Neben ausreichend Parkflächen verfügt das Areal über WC- und Sanitäreinrichtungen und überzeugt durch das Flair eines denkmalgeschützten Industriebauwerks.