ländleimmo.at / Mietobjekt / Gewerbliche Immobilie / Geschäftslokal / Vorarlberg / Dornbirn / Lustenau / Attraktive Gewerbeflächen zur Miete

Attraktive Gewerbeflächen zur Miete

images icon

N/A

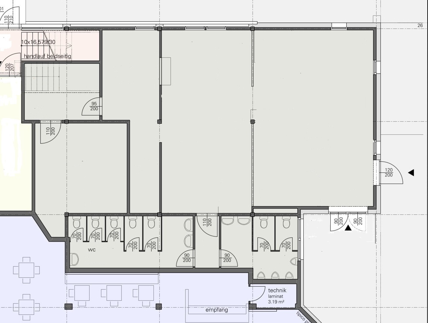
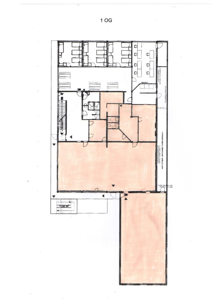
Grundriss

images icon

450,00 m²

Nutzfläche

Preis auf Anfrage

König LiegenschaftsverwaltungsGmbH

König LiegenschaftsverwaltungsGmbH

Preise

Preis auf Anfrage

Objekt Informationen

Nutzfläche 450,00 m²
Bautyp Saniert
Baujahr 1988
Bauweise
  • Massiv
Objektart Gewerblich
Objekttyp Geschäftslokal
Verfügbar ab nach Absprache

Empfohlene Services unserer Partner

Objekt Beschreibung

Vielfältig nutzbare Gewerbeeinheiten in Lustenau! Zukunftsorientiertes Umfeld, gesucht werden innovative Konzepte aus den Bereichen Sport, Gesundheit und Gastronomie.


Verfügbare Mietflächen:

450 m², inklusive 170 m² Halle - Ideal für Sport-, Fitness- oder Gesundheitskonzepte

250 m² Gastronomie - Restaurant, Café, Bäckerei, Bar möglich ideal für Delivery - 220.000 Bewohner im Umkreis von ca. 10 min erreichbar

50 m² Imbissfläche - Geeignet für Streetfood-, Take-away- oder moderne Fast-Casual-Konzepte

200 m² Barfläche - Perfekt für Lounge-, Bar- oder Eventkonzepte


Highlights des Areals:

  1. Beste Verkehrsanbindung
  2. Teil eines lebendigen Quartiers
  3. Flexible Nutzungsmöglichkeiten,
  4. Ausreichend Parkplätze


Interesse an der Mitgestaltung dieses einzigartigen Projekt?

Wir freuen uns auf kreative Konzepte und langfristige Partnerschaften.