ländleimmo.at / Mietobjekt / Wohnung / Terrassenwohnung / Vorarlberg / Feldkirch / Götzis / Stilvoll Wohnen: Gepflegte 3-Zimmerwohnung mit Dachterrasse in Götzis zu vermieten!

Stilvoll Wohnen: Gepflegte 3-Zimmerwohnung mit Dachterrasse in Götzis zu vermieten!

images icon

3 Zimmer

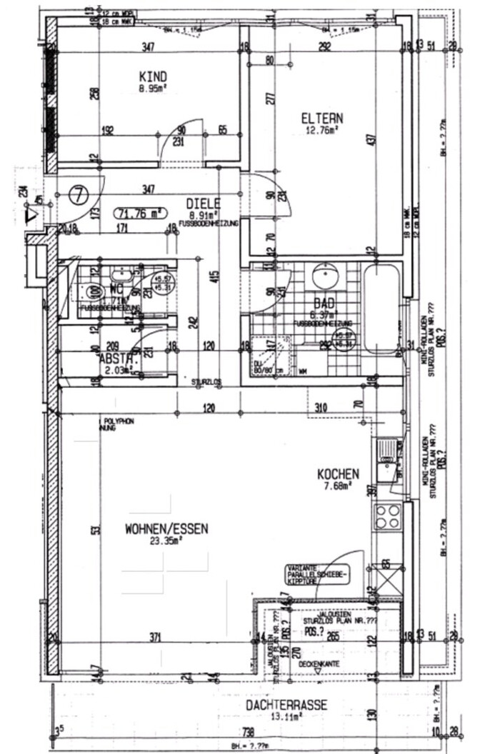
Grundriss

images icon

71,76 m²

Wohnfläche

€ 1.415

David Primigg

Mag. Kofler Vermögenstreuhand GmbH

Preise

Gesamtbelastung € 1.415
Kaution € 4.300
Einmalkosten Provisionspflichtig
Provision Gemäß Erstauftraggeberprinzip bezahlt der Abgeber die Provision.
Erklärung Kosten Kautionshinterlegung: Mittels Bankgarantie oder per Überweisung

Objekt Informationen

Wohnfläche 71,76 m²
Zimmer 3
Etage 2
Baujahr 2004
Objektart Wohnung
Objekttyp Terrassenwohnung
Badezimmer 1
Terrasse 13,11 m²
Keller 8,32 m²
Abstellraum Vorhanden
Heizung
  • Gas
Verfügbar ab 1. April 2026
Externe ID justimmo_228845_5781/921510007-1
Parkplatz
  • (Tief-)Garage

Ausstattung:

  • icon Einbauküche
  • icon Wohnküche / offene Küche
  • icon Bad mit: Badewanne, Dusche, Fenster
  • icon Lift
  • icon Kabel/Satelliten-TV

Empfohlene Services unserer Partner

Objekt Beschreibung


Hinreißende 3-Zimmerwohnung mit Dachterrasse in Götzis zu vermieten!

In der Ringstraße 84 in Götzis befindet sich diese stilvolle 3-Zimmerwohnung mit rund 71,76 m² Wohnfläche, die durch ihre gelungene Raumaufteilung und ein angenehmes Wohngefühl überzeugt. Die Wohnung eignet sich ideal für Paare oder kleine Familien, die Wert auf Wohnkomfort legen.

Ein besonderes Highlight ist die großzügige Dachterrasse, die zu entspannten Stunden im Freien einlädt. Der offen gestaltete Wohn- und Essbereich bildet das Herzstück der Wohnung, während zwei weitere Zimmer vielseitig nutzbar sind – sei es als Schlafzimmer, Kinderzimmer oder Homeoffice. Die praktische Ausstattung und die durchdachte Planung sorgen für zusätzlichen Komfort.

Ein Zuhause, das Behaglichkeit, Wohnqualität und eine attraktive Lage in Götzis harmonisch miteinander verbindet.

 

Lage:

Attraktive Wohnlage in Götzis: Gemütlich und zentral – ideal für Paare und Familien, die kurze Wege schätzen.

Alles für den Alltag in unmittelbarer Nähe: Einkaufsmöglichkeiten sind schnell erreichbar – für den täglichen Bedarf ist bestens gesorgt.

Vielfältige Gastronomie & Stadtleben: Der beliebte Garnmarkt mit Restaurants, Cafés, Bioläden und Einkaufsmöglichkeiten ist fußläufig erreichbar.

Sehr gute Verkehrsanbindung: Der Götzis Bahnhof ist in wenigen Minuten erreichbar.

Schnelle Verbindung zu Autobahn & Umgebung: Die Nähe zur A14 ermöglicht unkomplizierte Fahrten in alle Richtungen.

Freizeit & Naherholung direkt ums Eck: Spazierwege, Parks, Sport- und Freizeitangebote bieten Erholung für Groß und Klein.

 

Raumaufteilung:

• Vorraum
• Küche-Ess-Wohnzimmer
• Dachterrasse
• zwei Zimmer
• Badezimmer mit Badewanne, Dusche & Fenster
• separates WC
• Abstellraum
• Kellerabteil
• Tiefgaragenplatz

 

Gesamtmietzins:

EUR  1.019,47 Mietzins Wohnung

EUR     260,83 Betriebskosten Wohnung

EUR       54,36 Heizkosten Wohnung

EUR       70,00 Mietzins Tiefgaragenplatz

EUR       10,34  Betriebskosten Tiefgaragenplatz

EUR  1.415,00 Gesamtmietzins inklusive Betriebskosten

 

Kautionshinterlegung:

Die Kaution in Höhe von € 4.300,- kann entweder per Überweisung oder mittels Bankgarantie hinterlegt werden.

 

Zögern Sie nicht und kontaktieren Sie uns für einen Besichtigungstermin!

 

Die Firma Mag. Kofler Vermögenstreuhand GmbH erklärt, entgegen dem in der Immobilienwirtschaft üblichen Geschäftsgebrauch nicht als Doppelmakler, sondern nur einseitig für den (die) Vermieter(in) tätig zu sein. Weiter ist die Firma Mag. Kofler Vermögenstreuhand GmbH ermächtigt, bis auf Widerruf Objekte zu präsentieren. Mit dem Auftraggeber besteht zudem ein wirtschaftliches Naheverhältnis aufgrund der Immobilienverwaltung.

 

 

 

 

 

Noch nichts gefunden? Wir informieren Sie über geeignete Immobilienangebote noch vor allen anderen.
Legen Sie jetzt Ihren individuellen Suchagenten unter folgendem Link an. Wir schicken Ihnen passende Immobilien exklusiv vorab zu.
Suchagent anlegen - https://mag-kofler-vermoegenstreuhand.service.immo/registrieren/de

Der Immobilienmakler erklärt, dass er – entgegen dem in der Immobilienwirtschaft üblichen Geschäftsgebrauch des Doppelmaklers – einseitig nur für den Vermieter tätig ist.


Infrastruktur / Entfernungen

Gesundheit
Arzt <375m
Apotheke <450m
Krankenhaus <3.950m

Kinder & Schulen
Schule <175m
Kindergarten <225m
Höhere Schule <175m

Nahversorgung
Supermarkt <175m
Bäckerei <225m
Einkaufszentrum <4.725m

Sonstige
Bank <325m
Geldautomat <325m
Post <575m
Polizei <150m

Verkehr
Bus <125m
Bahnhof <650m
Autobahnanschluss <1.725m
Flughafen <6.675m

Angaben Entfernung Luftlinie / Quelle: OpenStreetMap