FLEXIBEL
FINANZIEREN

Kreditbedarf
Eigenmittel
%
Jahre
Zins | Laufzeit
mtl. Rate
ländleimmo.at / Kaufobjekt / Wohnung / Terrassenwohnung / Vorarlberg / Feldkirch / Feldkirch / Familienfreundliche 4-Zimmerwohnung | A07

Familienfreundliche 4-Zimmerwohnung | A07

images icon

4 Zimmer

Grundriss

images icon

87,30 m²

Wohnfläche

€ 622.000

Christian Wieser

i+R Wohnbau GmbH

Preise

Kaufpreis € 622.000
Preis (Auto-)Stellplatz € 27.000
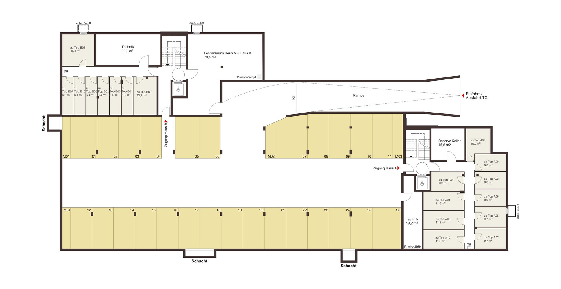
Tiefgarage
Förderungen € 57.500
Erklärung Kosten

1,2% Vertrags- und Treuhandkosten

Für diese Wohnung bieten wir bis 30.06.26 einen zusätzlichen Bonus. Wir informieren Sie gerne persönlich zu den attraktiven Konditionen.

Objekt Informationen

Wohnfläche 87,30 m²
Zimmer 4
Bautyp Neubau/Erstbezug
Objektart Wohnung
Objekttyp Terrassenwohnung
Badezimmer 1
Terrasse 13,40 m²
Keller 9,70 m²
Abstellraum Vorhanden
Heizung
  • Erdwärme
  • Fußbodenheizung
Verfügbar ab sofort
Heizwärmebedarf (HWB) 32,24 kwh/m²a
Externe ID irwg__90b04e96-7335-407e-b3a5-db0e3719043a
Parkplatz
  • (Tief-)Garage

Ausstattung:

  • icon Boden: Fliesen, Parkett
  • icon Ausrichtung Balkon: Südwesten
  • icon Parkplatz Tiefgarage
  • icon Lift
  • icon Gäste-WC

Empfohlene Services unserer Partner

Objekt Beschreibung


Ein Ort zum Wohlfühlen: Diese neu fertiggestellte 4-Zimmer-Wohnung in Feldkirch-Gisingen bietet modernen Wohnkomfort für alle, die das Besondere schätzen.


Sonnige Wohnqualität: Die überdachte Terrasse dieser Obergeschosswohnung schafft ein geschütztes Outdoor-Wohnzimmer, das zu jeder Jahreszeit genutzt werden kann. Genießen Sie die Aussicht und das helle, offene Wohnkonzept.


Hier wächst das Leben mit. Drei Zimmer bieten genug Raum für Familie, Gäste oder Hobbys. Der große Wohnbereich öffnet sich zur Terrasse, die nicht nur zum Essen im Freien einlädt, sondern auch an warmen Sommerabenden zum Lieblingsplatz wird.


Ausstattungsmerkmale:

- Überdachte Terrasse und schöner Garten

- Echtholz-Parkett in allen Wohnräumen

- Fußbodenheizung und -kühlung für ein ganzjährig angenehmes Raumklima

- Badezimmer mit stilvoller Sanitärausstattung namhafter Hersteller

- Elektrische Raffstoren in allen Zimmern

- Glasfaseranschluss für schnelle Internetverbindungen

- Lift, Tiefgarage und Kellerabteil


Doppelt profitieren mit dem i+R Bonus

Sichern Sie sich noch bis 30. Juni einen doppelten Vorteil beim Erwerb Ihrer neuen Wohnung: Sie profitieren von der aktuellen staatlichen Befreiung der Grundbucheintragungsgebühr – und zusätzlich von einem besonderen i+R Bonus.

Was genau dahintersteckt, erklären wir Ihnen gerne persönlich – die Konditionen sind attraktiv und es lohnt sich, nachzufragen.

Angehängte Dokumente