ländleimmo.at
/
Kaufobjekt
/
Wohnung
/
Penthousewohnung
/
Vorarlberg
/
Feldkirch
/ Feldkirch
/
Exklusives Penthouse mit 4 Zimmer und 280m² wunderschöner Terrasse in Feldkirch-Tisis
Exklusives Penthouse mit 4 Zimmer und 280m² wunderschöner Terrasse in Feldkirch-Tisis
4 Zimmer
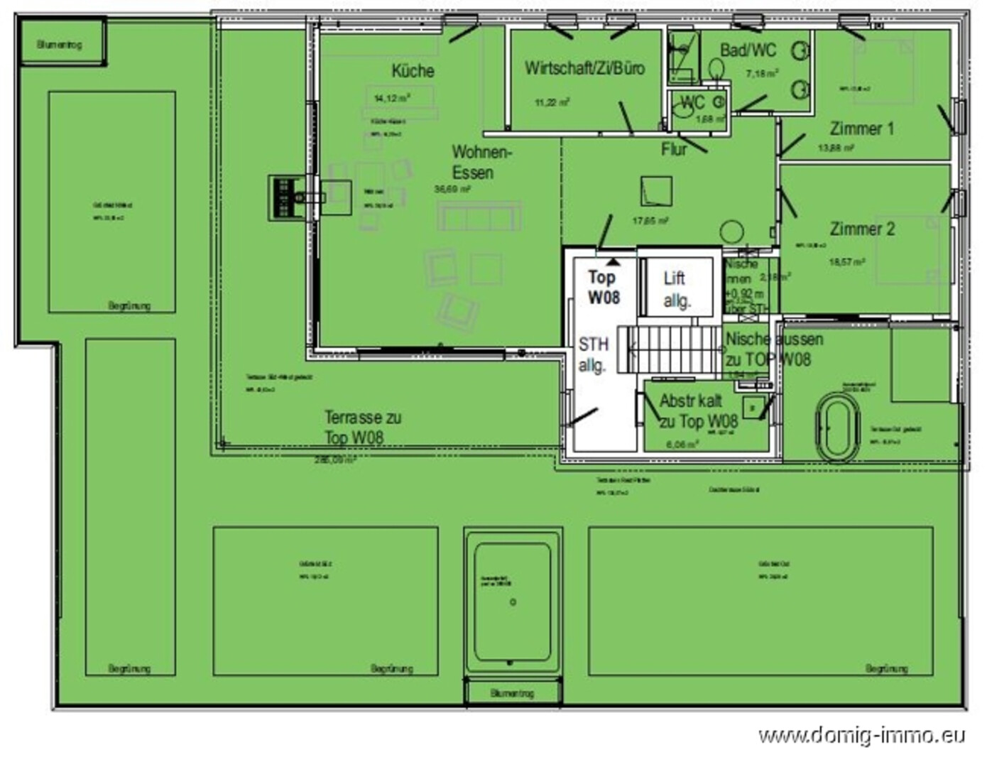
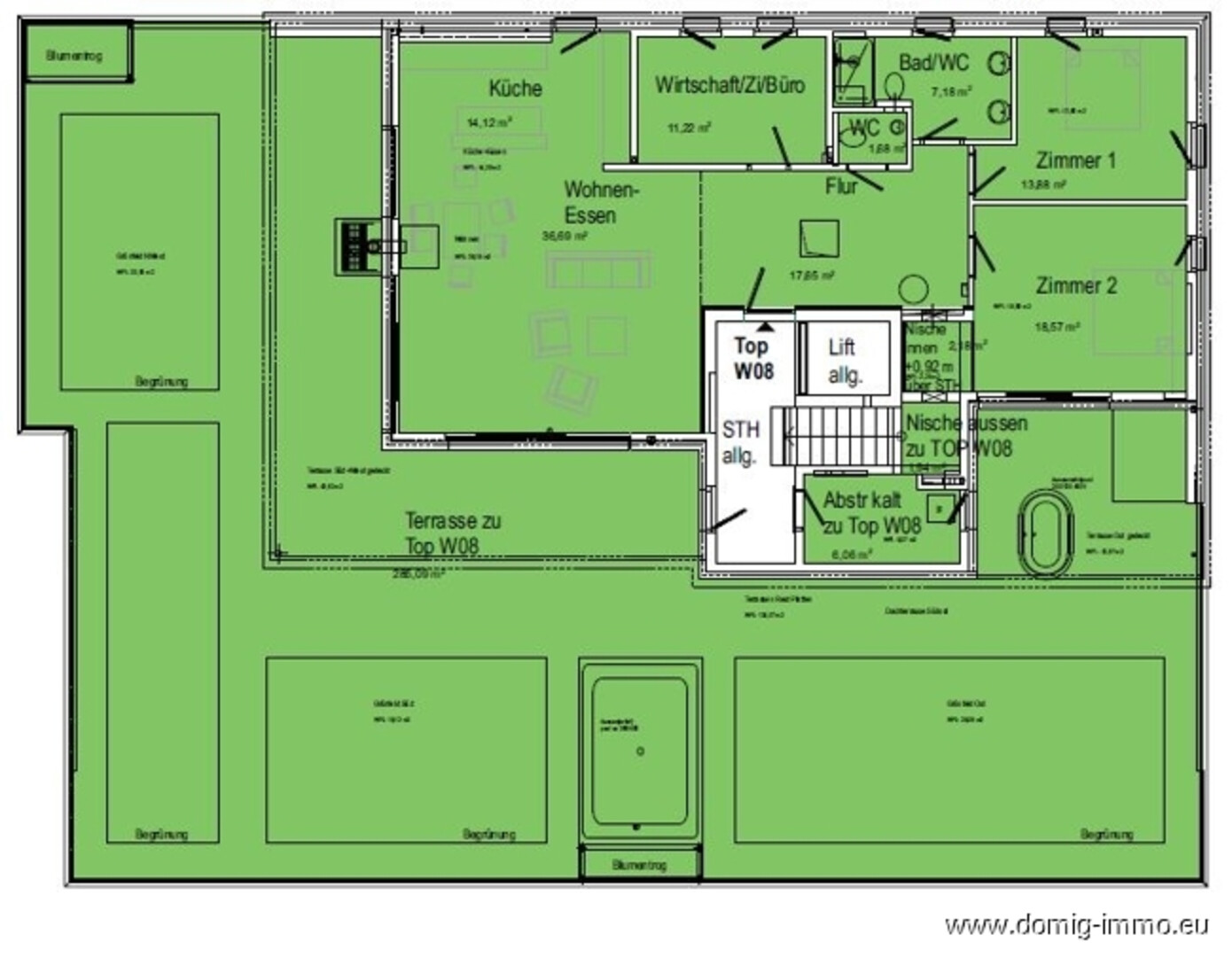
Grundriss
128,96 m²
Wohnfläche
€ 1.045.000
Preise
Kaufpreis
€ 1.045.000
Einmalkosten
1,1% Grundbucheintragung
1,2% Vertragskosten
3,6% Maklerhonorar inkl. MwSt.
Grunderwerbssteuer, Grundbucheintragung, Vertragserrichtungsgebühr
3,5% Grunderwerbssteuer1,1% Grundbucheintragung
1,2% Vertragskosten
3,6% Maklerhonorar inkl. MwSt.
Provision
3,5% Grunderwerbssteuer
1,1% Grundbucheintragung
1,2% Vertragskosten
3,6% Maklerhonorar inkl. MwSt.
1,1% Grundbucheintragung
1,2% Vertragskosten
3,6% Maklerhonorar inkl. MwSt.
Objekt Informationen
Wohnfläche
128,96 m²
Zimmer
4
Etage
2. OG
Baujahr
2018
Objektart
Wohnung
Objekttyp
Penthousewohnung
Terrasse
280,76 m²
Keller
4,00 m²
Heizung
- Gas
- Fußbodenheizung
- Ofen/Kamin
Verfügbar ab
nach Vereinbarung
Externe ID
Domig_1668
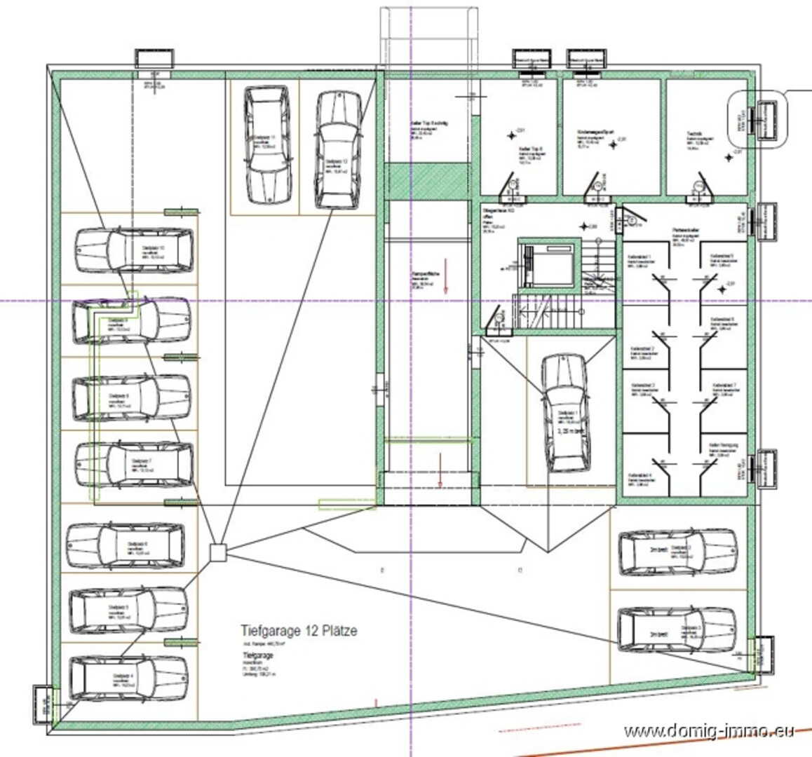
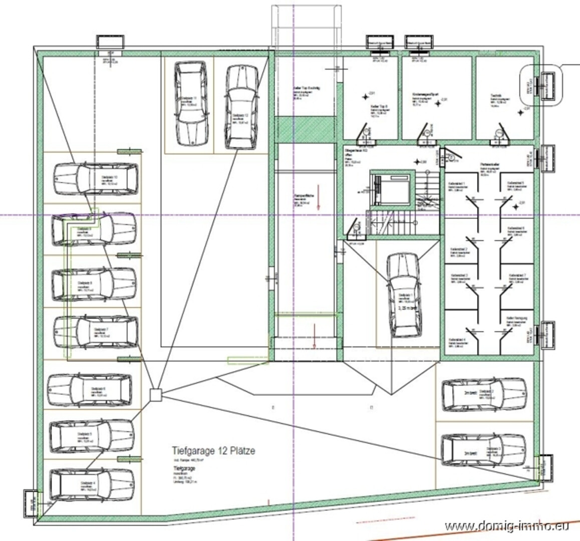
Parkplatz
- (Tief-)Garage
- Freiplatz (1)
Ausstattung:
-
Parkplatz Tiefgarage,Freiplatz
-
Lift
Empfohlene Services unserer Partner
Objekt Beschreibung
Exklusives Penthouse mit 4 Zimmer und 280m² wunderschöner Terrasse in Feldkirch-Tisis
Die Wohnung besticht nicht nur mit dem modernen Holzkamin für ein wärmendes Gefühl. Auch die lichtdurchfluteten Fensterfronten mit unverbaubarer Aus- und Weitsicht auf die Schweizer Berge und Grünlandschaften sorgen für eine traumhafte Wohnatmosphäre.
Die in einer Sackgasse gelegene Wohnung, nahe dem LKH und der Liechtensteiner Grenze, hat eine hochwertige Ausführung. Die Wohnung verfügt über 3 Schlafzimmer und einen stilvollen Wohn-Ess-Bereich. Freier Sichtbeton in Bad und Küche, in Kombiantion mit dem Echtholzparkett in Eiche, vermitteln eine stilsichere Innengestaltung. Die raumhohen Vollholztüren integrieren sich bestens in die 2,70m Raumhöhe.
Die ca. 129m² große Penthouse-Wohnung mit begrünter Fläche und einer ca. 280m² Terrasse liegt im zweiten Stock einer kleinen Wohnanlage mit nur 8 Wohneinheiten.
Zwei Tiefgaragenplätze können für jeweils € 25.000.- erworben werden.
Energieausweis (HWB-Wert) = 38 kWh/m²a (B) | (fGEE) = A++ 0,48
Lage:
ruhig
sonnig
gute Infrastruktur
in einer Sackgasse gelegen
Die ca. 129m² große Penthouse-Wohnung mit begrünter Fläche und einer ca. 280m² Terrasse liegt im zweiten Stock einer kleinen Wohnanlage mit nur 8 Wohneinheiten.
Die Wohnung besticht nicht nur mit dem modernen Holzkamin für ein wärmendes Gefühl. Auch die lichtdurchfluteten Fensterfronten mit unverbaubarer Aus- und Weitsicht auf die Schweizer Berge und Grünlandschaften sorgen für eine traumhafte Wohnatmosphäre.
Die in einer Sackgasse gelegene Wohnung, nahe dem LKH und der Liechtensteiner Grenze, hat eine hochwertige Ausführung. Die Wohnung verfügt über 3 Schlafzimmer und einen stilvollen Wohn-Ess-Bereich. Freier Sichtbeton in Bad und Küche, in Kombiantion mit dem Echtholzparkett in Eiche, vermitteln eine stilsichere Innengestaltung. Die raumhohen Vollholztüren integrieren sich bestens in die 2,70m Raumhöhe.
Die ca. 129m² große Penthouse-Wohnung mit begrünter Fläche und einer ca. 280m² Terrasse liegt im zweiten Stock einer kleinen Wohnanlage mit nur 8 Wohneinheiten.
Zwei Tiefgaragenplätze können für jeweils € 25.000.- erworben werden.
Energieausweis (HWB-Wert) = 38 kWh/m²a (B) | (fGEE) = A++ 0,48
Lage:
ruhig
sonnig
gute Infrastruktur
in einer Sackgasse gelegen
Die ca. 129m² große Penthouse-Wohnung mit begrünter Fläche und einer ca. 280m² Terrasse liegt im zweiten Stock einer kleinen Wohnanlage mit nur 8 Wohneinheiten.