FLEXIBEL
FINANZIEREN

Kreditbedarf
Eigenmittel
%
Jahre
Zins | Laufzeit
mtl. Rate
ländleimmo.at / Kaufobjekt / Wohnung / Penthousewohnung / Vorarlberg / Feldkirch / Frastanz / Wohnanlage "Sonnenseite" - Sensationelles Penthouse mit imposanter Terrasse - Top 7

Wohnanlage "Sonnenseite" - Sensationelles Penthouse mit imposanter Terrasse - Top 7

images icon

5 Zimmer

Grundriss

images icon

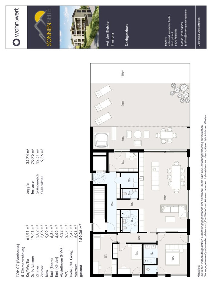
159,36 m²

Wohnfläche

€ 1.280.000

Daniel Ströhle

Rimo Immobilien GmbH

Preise

Kaufpreis € 1.280.000
Erklärung Kosten Tiefgaragenstellplatz = 27.000 EUR

Objekt Informationen

Wohnfläche 159,36 m²
Zimmer 5
Etage 2
Bautyp Neubau/Erstbezug
Baujahr 2026
Bauweise
  • Massiv
Objektart Wohnung
Objekttyp Penthousewohnung
Badezimmer 2
Terrasse 139,01 m²
Keller 9,36 m²
Abstellraum Vorhanden
Fahrradraum Vorhanden
Heizung
  • Luft Wärmepumpe
  • Fußbodenheizung
Verfügbar ab voraussichtlich Ende 2027
Gesamtanzahl Stellplätze 2
Heizwärmebedarf (HWB) 30 kwh/m²a
Klasse Heizwärmebedarf (Klasse HWB) B
Gesamtenergieeffizienz-Faktor (fGEE) 0,71 kwh/m²a
Klasse Gesamtenergieeffizienz-Faktor (Klasse fGEE) A
Externe ID justimmo_378244_5681/457
Parkplatz
  • (Tief-)Garage
  • Freiplatz (2)

Ausstattung:

  • icon Wohnküche / offene Küche
  • icon Boden: Fliesen, Parkett
  • icon Bad mit: Badewanne, Dusche, Fenster
  • icon Ausrichtung Balkon: Südosten
  • icon Parkplatz Tiefgarage
  • icon Lift
  • icon Barrierefrei
  • icon Seniorengerecht
  • icon Kabel/Satelliten-TV

Empfohlene Services unserer Partner

Objekt Beschreibung


Wohnbauförderung möglich (Gilt für die Tops 1 - 4)!

 

Willkommen in der Wohnanlage „Sonnenseite“ auf der Bleiche 8 in Frastanz – ein modernes Wohnprojekt, das durch seine durchdachte Architektur, hohe Wohnqualität und die perfekte Lage besticht. In dieser exklusiven Anlage stehen Ihnen sieben hochwertige Eigentumswohnungen zur Verfügung, die eine ideale Kombination aus modernem Wohnkomfort und naturnaher Umgebung bieten.

Attraktive Lage – Wohnen am Puls der Natur

Die Wohnanlage „Sonnenseite“ befindet sich in einer ruhigen und sonnigen Lage in einem beliebten Wohnviertel von Frastanz. Eingebettet in die natürliche Umgebung und doch zentral gelegen, genießen Sie hier das Beste aus zwei Welten: Die Nähe zur Natur mit den wunderschönen Landschaften des Walgaus und den umliegenden Bergen sowie die schnelle Anbindung an alle wichtigen infrastrukturellen Einrichtungen.

Optimale Verkehrsanbindung

Die hervorragende Anbindung macht die „Sonnenseite“ zu einer idealen Wohnadresse für Pendler und Familien. Der Bahnhof Frastanz ist nur wenige Minuten entfernt und bietet direkte Verbindungen nach Feldkirch und Bludenz. Die Autobahn A14 ist ebenfalls rasch erreichbar, wodurch Ausflüge ins Rheintal, nach Liechtenstein und in die Schweiz besonders komfortabel sind.

Vielfältige Nahversorgung

Für den täglichen Bedarf ist gesorgt: In der Umgebung der Wohnanlage finden Sie zahlreiche Einkaufsmöglichkeiten, Restaurants, Arztpraxen sowie Schulen und Kindergärten. Die Gemeinde Frastanz bietet außerdem ein breites Freizeit- und Kulturangebot, das keine Wünsche offenlässt. Besonders praktisch ist die Nähe zur Stadt Feldkirch, die mit ihrer historischen Altstadt, vielseitigen Shopping-Möglichkeiten und einem reichen Kulturleben punktet.

Wohnen mit Wohlfühlfaktor

Die Wohnanlage „Sonnenseite“ überzeugt nicht nur durch ihre ideale Lage, sondern auch durch ihre hohe Bauqualität und die durchdachten Grundrisse der Wohnungen. Jede Einheit bietet lichtdurchflutete Räume, großzügige Balkone oder Terrassen und eine moderne Ausstattung. Die sonnige Ausrichtung sorgt für viel Tageslicht und eine angenehme Wohnatmosphäre.

Unsere Vision ist Ihre Realität - Sonderwünsche noch leicht umsetzbar.

In dieser Phase haben Sie die seltene Gelegenheit, aktiv an der Gestaltung Ihres künftigen Zuhauses teilzunehmen. Gemeinsam mit unserem erfahrenen Team können Sie Sonderwünsche und Anpassungen einbringen, um sicherzustellen, dass Ihr neues Zuhause Ihren ganz persönlichen Lebensstil widerspiegelt.

Fazit

Die Wohnanlage „Sonnenseite“ bietet ein exklusives Wohngefühl in einer der begehrtesten Lagen von Frastanz. Ob für Familien, Paare oder Berufspendler – diese Immobilie vereint Lebensqualität, Komfort und Naturverbundenheit auf einzigartige Weise. Erleben Sie Wohnkomfort auf der Sonnenseite des Lebens!

 

Unsere Angaben beziehen sich auf die Auskünfte des Eigentümers. Irrtum und Änderungen vorbehalten.

Folgen Sie dem nachfolgenden Link für weitere Informationen zu den restlichen verfügbaren Wohnungen:

Wohnanlage "Sonnenseite" - Wohnen in sonniger Umgebung

 

Noch nichts gefunden? Wir informieren Sie über geeignete Immobilienangebote noch vor allen anderen.
Legen Sie jetzt kostenlos Ihren individuellen Suchagenten unter folgendem Link an. Wir schicken Ihnen passende Immobilien exklusiv vorab zu.
Suchagent anlegen

Wir weisen darauf hin, dass zwischen dem Vermittler und dem zu vermittelnden Dritten ein familiäres oder wirtschaftliches Naheverhältnis besteht.


Infrastruktur / Entfernungen

Gesundheit
Arzt <1.225m
Apotheke <1.500m
Krankenhaus <525m

Kinder & Schulen
Schule <125m
Kindergarten <1.000m
Höhere Schule <1.600m
Universität <1.175m

Nahversorgung
Supermarkt <1.225m
Bäckerei <1.250m
Einkaufszentrum <2.650m

Sonstige
Bank <1.350m
Geldautomat <1.350m
Post <1.450m
Polizei <1.425m

Verkehr
Bus <250m
Autobahnanschluss <1.175m
Bahnhof <1.750m

Angaben Entfernung Luftlinie / Quelle: OpenStreetMap



Lage:
Die exklusive Wohnanlage mit sieben modernen Eigentumswohnungen befindet sich in einer ruhigen und dennoch zentralen Lage in Frastanz, einer charmanten Gemeinde im Bezirk Feldkirch. Die Wohnanlage liegt in einem beliebten Wohnviertel, das durch seine Nähe zur Natur, seine familienfreundliche Atmosphäre und die hervorragende Anbindung an wichtige Infrastrukturen überzeugt. Die Altstadt von Feldkirch ist in wenigen Gehminuten erreichbar. Pendler finden eine schnelle Anbindung an das Rheintal, Liechtenstein und die Schweiz.

Angehängte Dokumente

Dieses Objekt ist Teil eines Projektes

Zum Projekt