FLEXIBEL
FINANZIEREN

Kreditbedarf
Eigenmittel
%
Jahre
Zins | Laufzeit
mtl. Rate
ländleimmo.at / Kaufobjekt / Wohnung / Maisonette / Vorarlberg / Bregenz / Gaißau / Gemütliche Maisonettewohnung mit tollem Bergblick

Gemütliche Maisonettewohnung mit tollem Bergblick

images icon

N/A

Grundriss

images icon

56,72 m²

Wohnfläche

€ 215.000

Günther Gassner

Gassner Immobilien

Preise

Kaufpreis € 215.000

Objekt Informationen

Wohnfläche 56,72 m²
Baujahr 1982
Objektart Wohnung
Objekttyp Maisonette
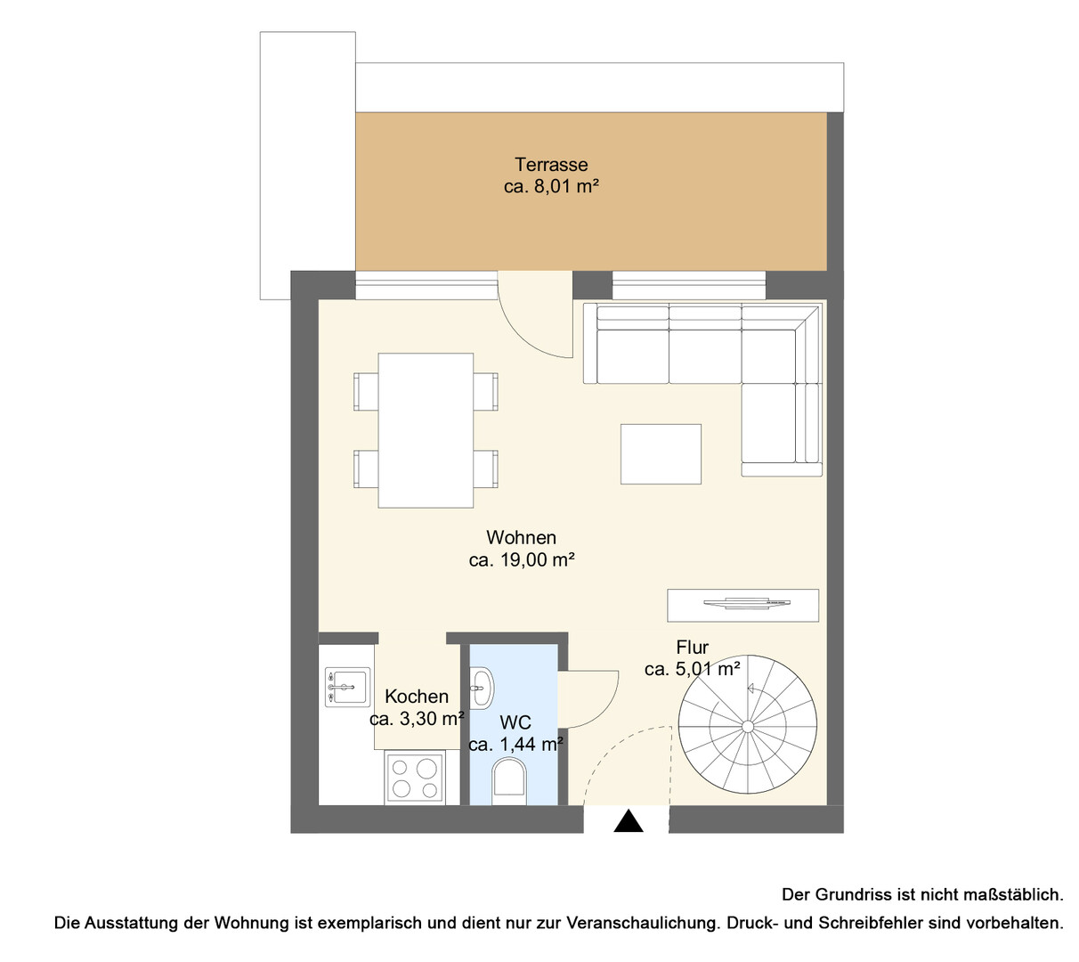
Terrasse 8,01 m²
Keller 4,35 m²
Heizung
  • Elektro
Heizwärmebedarf (HWB) 44 kwh/m²a
Klasse Heizwärmebedarf (Klasse HWB) B

Empfohlene Services unserer Partner

Objekt Beschreibung

Lage:

Die Wohnanlage Hauptstraße 4 befindet sich in zentraler Lage von Gaißau.

Die Lage überzeugt durch eine gute Infrastruktur: Einkaufsmöglichkeiten, Schulen, Kindergarten und ein Anschluss an die öffentlichen Verkehrsmittel befinden sich in unmittelbarer Nähe und sind in wenigen Gehminuten erreichbar. Besonders hervorzuheben ist die Nähe zur Schweizer Grenze.


Wohnung:

Diese gemütliche Maisonettewohnung erstreckt sich über rund 57 m² Wohnfläche verteilt auf zwei Ebenen.

Im Obergeschoss befinden sich der Eingangsbereich, ein Gäste-WC sowie der Wohn- und Essbereich, der den Mittelpunkt der Wohnung bildet.

Von hier aus gelangt man auf die Dachterrasse, die einen wunderschönen Ausblick in Richtung der Schweizer Berge bietet.

Über eine Wendeltreppe erreicht man das Dachgeschoss. Dort befinden sich das Badezimmer sowie zwei weitere Zimmer. Die Dachschrägen verleihen diesem Bereich eine besonders angenehme und wohnliche Atmosphäre.

Die Wohnung ist derzeit mit der angrenzenden Einheit verbunden. Im Zuge der weiteren Abwicklung werden die beiden Wohnungen baulich getrennt, weshalb in der gegenständlichen Wohnung aktuell keine Küche vorhanden ist.


Anmerkung:

Alle Angaben nach bestem Wissen. Irrtum sowie Zwischenverkauf bleiben ausdrücklich vorbehalten. Dieses Angebot ist freibleibend und unverbindlich. Dieses Exposé ist eine Vorinformation, als Rechtsgrundlage gilt allein der abgeschlossene Kaufvertrag.