FLEXIBEL
FINANZIEREN

Kreditbedarf
Eigenmittel
%
Jahre
Zins | Laufzeit
mtl. Rate
ländleimmo.at / Kaufobjekt / Wohnung / Maisonette / Vorarlberg / Bregenz / Höchst / Besondere 4 Zimmer Maisonettewohnung mit Garten

Besondere 4 Zimmer Maisonettewohnung mit Garten

images icon

N/A

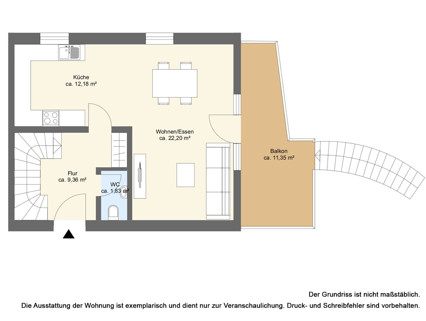
Grundriss

images icon

88,00 m²

Wohnfläche

€ 395.000

Preise

Kaufpreis € 395.000

Objekt Informationen

Wohnfläche 88,00 m²
Baujahr 1995
Objektart Wohnung
Objekttyp Maisonette
Balkon 11,35 m²
Garten 79,21 m²
Keller 10,58 m²
Heizung
  • Gas
Verfügbar ab sofort
Parkplatz
  • (Tief-)Garage (2)

Ausstattung:

  • icon Einbauküche
  • icon Bad mit: Badewanne, Dusche, Fenster
  • icon Gäste-WC

Empfohlene Services unserer Partner

Objekt Beschreibung

Lage:

Die Liegenschaft in der Gaißauer Straße 7 liegt in einer gut erreichbaren und angenehmen Wohnlage von Höchst.

Einkaufsmöglichkeiten, das Ortszentrum, Schulen und Kinderbetreuung sind schnell erreichbar, ebenso eine Anbindung an öffentliche Verkehrsmittel.

Auch verschiedene Naherholungsbereiche befinden sich nicht weit entfernt und bieten schöne Möglichkeiten für Spaziergänge und Freizeitaktivitäten.


Wohnung:

Diese 4-Zimmer-Maisonettewohnung erstreckt sich über das Ober- und Dachgeschoss und verfügt zusätzlich über einen eigenen Gartenanteil.

Im Obergeschoss befinden sich der Eingangsbereich, ein Gäste-WC sowie der großzügige Wohn- und Essbereich mit Einbauküche.

Von hier aus gelangt man auf den windgeschützten Balkon. Eine Treppe führt direkt vom Balkon in den zugehörigen Gartenanteil.

Das Dachgeschoss umfasst drei Zimmer sowie ein modern ausgestattetes Badezimmer mit Eckbadewanne, Dusche, WC und großem Waschtisch.

Die Dachschrägen verleihen diesem Bereich eine besonders angenehme Wohnatmosphäre.

Eines der drei Zimmer ist derzeit mit Einbauschränken ausgestattet und eignet sich ideal als begehbarer Kleiderschrank.


Nebenkosten:

3,5% Grunderwerbsteuer

1,1% Grundbucheintragungsgebühr

3,0% Betreuung und Abwicklung Immobilienbüro (zzgl. 20% Ust.)

Vertragserrichtungskosten lt. Angebot


Anmerkungen:

Alle Angaben nach bestem Wissen. Irrtum sowie Zwischenverkauf bleiben ausdrücklich vorbehalten. Dieses Angebot ist freibleibend und unverbindlich. Dieses Exposé ist eine Vorinformation, als Rechtsgrundlage gilt allein der abgeschlossene Kaufvertrag.