FLEXIBEL
FINANZIEREN

Kreditbedarf
Eigenmittel
%
Jahre
Zins | Laufzeit
mtl. Rate
ländleimmo.at / Kaufobjekt / Wohnung / Gartenwohnung / Vorarlberg / Feldkirch / Rankweil / 2-Zi-Gartenwohnung TOP 1 in Rankweil, Vorderlandstraße 2

2-Zi-Gartenwohnung TOP 1 in Rankweil, Vorderlandstraße 2

images icon

2 Zimmer

Grundriss

images icon

47,56 m²

Wohnfläche

€ 325.000

Preise

Kaufpreis € 325.000
Preis (Auto-)Stellplatz € 27.000
Förderungen € 60.000
Provision keine Provision!
Erklärung Kosten Einmalkosten: 3,5% Grunderwerbssteuer, 1,1% Grundbuchseintragung (Entfall der 1,1 % bei Hauptwohnsitz bis Kaufpreis von € 500.000– pro Käufer), keine Vertragserrichtungskosten! Wohnbauförderung: zusätzlich Zu-/Abschläge möglich!

Objekt Informationen

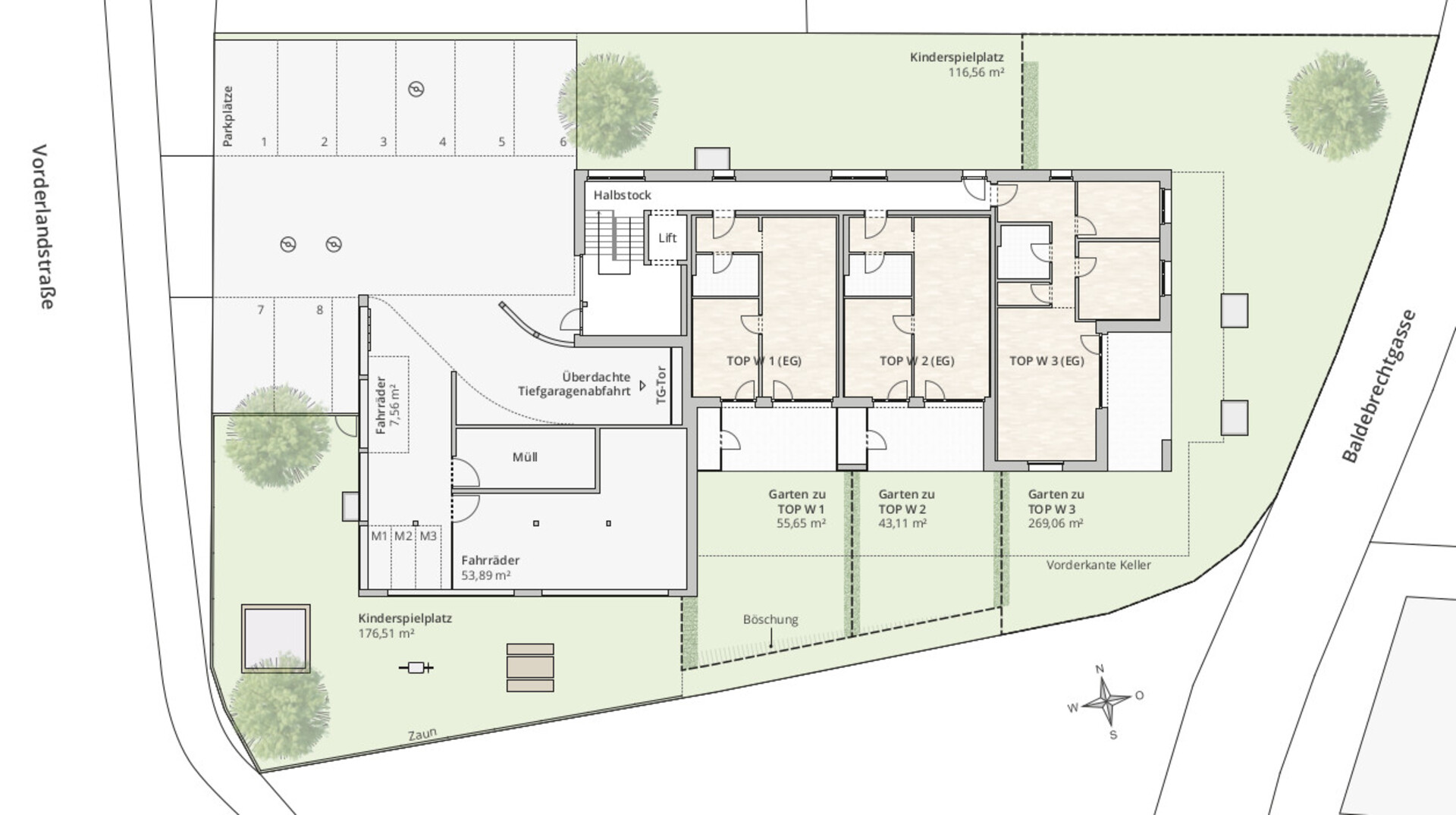
Wohnfläche 47,56 m²
Zimmer 2
Etage Erdgeschoss
Bautyp Neubau/Erstbezug
Baujahr 2027
Objektart Wohnung
Objekttyp Gartenwohnung
Balkon Vorhanden
Terrasse 14,06 m²
Garten 55,65 m²
Keller 4,91 m²
Fahrradraum Vorhanden
Heizung
  • Luft Wärmepumpe
  • Fußbodenheizung
  • Photovoltaik
Verfügbar ab Herbst 2028
Heizwärmebedarf (HWB) 30,79 kwh/m²a
Gesamtenergieeffizienz-Faktor (fGEE) 0,58 kwh/m²a
Parkplatz
  • (Tief-)Garage
  • Freiplatz

Ausstattung:

  • icon Boden: Fliesen, Parkett
  • icon Bad mit: Dusche
  • icon Ausrichtung Balkon: Osten, Süden
  • icon Lift
  • icon Rollladen
  • icon Barrierefrei
  • icon Wasch-/Trockenraum
  • icon Kabel/Satelliten-TV
  • icon Gartennutzung

Empfohlene Services unserer Partner

Objekt Beschreibung

In Rankweil, Vorderlandstraße 2 (lt. Google-Maps Baldebrechtgasse 1) entsteht in sonniger Lage eine hochwertige Wohnanlage!

- hochwertige Wohnanlage mit 15 Wohnungen

- Lift und Tiefgarage

- Fußbodenheizung über Luft-Wärmepumpe

- aktive Kühlung über Fußbodenheizung

- Photovoltaik-Anlage zur Stromerzeugung

- praktische Abstellboxen auf fast allen Terrassen

- Vorbereitung für E-Mobilität (in Abklärung)

- keine Vertragserrichtungskosten

- Wohnbauförderung

- keine Vertragserrichtungskosten

- geplante Fertigstellung: Herbst 2028


Wohnbauförderung (Richtlinie Juli 2025-2026) mit € 60.000,00 (oder sogar mehr; z.B. pro Kind + € 15.000,--; erstmaliger Eigentumserwerb + € 10.000,--) möglich.

Entfall Grundbucheintragungsgebühr (1,1 %) bei Hauptwohnsitz bis Kaufpreis € 500.000,00 pro Person.


Weitere Informationen finden Sie auf www.lenz-wohnbau.at. Gerne können Sie uns auch telefonisch kontaktieren.

Wir freuen uns auf Ihre Nachricht/Ihren Anruf!

Lenz Wohnbau GmbH

Angehängte Dokumente