FLEXIBEL
FINANZIEREN

Kreditbedarf
Eigenmittel
%
Jahre
Zins | Laufzeit
mtl. Rate
ländleimmo.at / Kaufobjekt / Wohnung / Dachgeschosswohnung / Vorarlberg / Feldkirch / Feldkirch / Helle 2-Zimmer-Dachgeschosswohnung | B10

Helle 2-Zimmer-Dachgeschosswohnung | B10

images icon

2 Zimmer

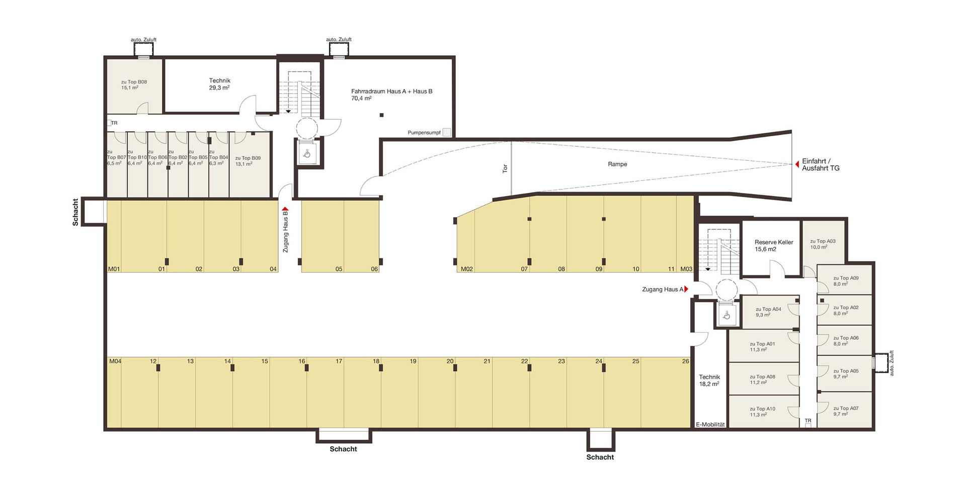
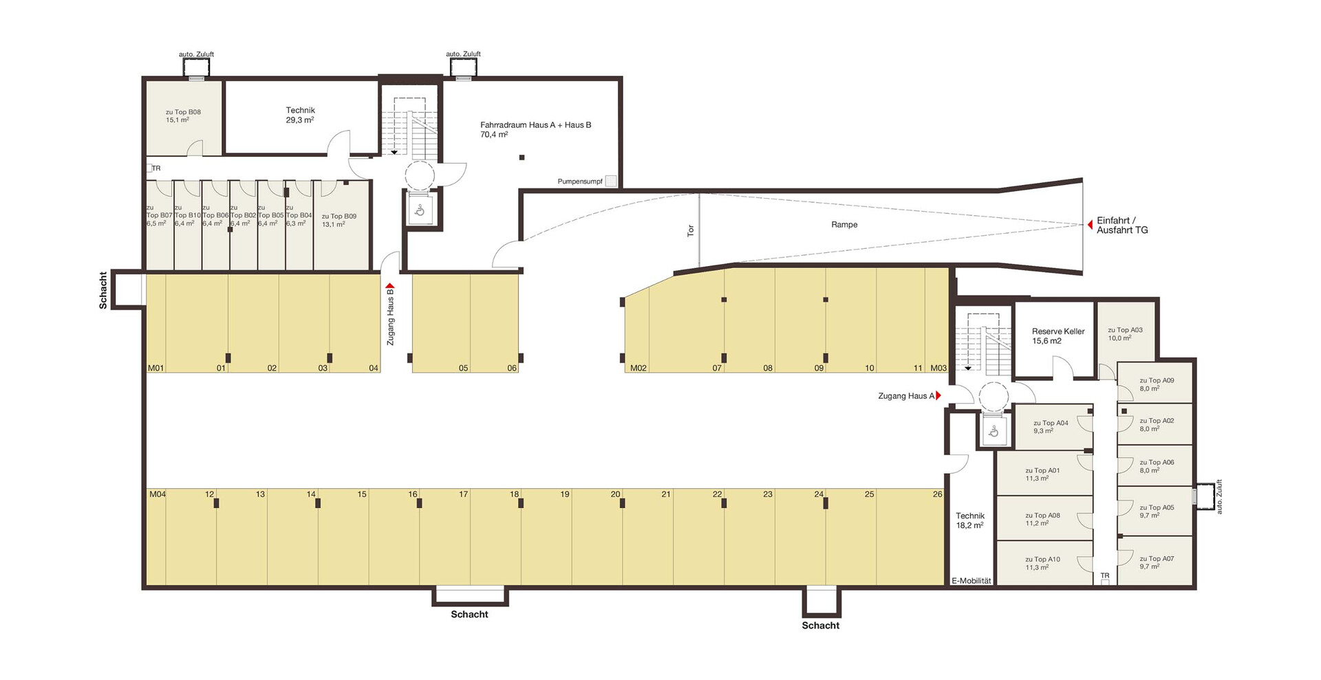
Grundriss

images icon

52,70 m²

Wohnfläche

€ 354.000

Preise

Kaufpreis € 354.000
Preis (Auto-)Stellplatz € 27.000
Tiefgarage
Erklärung Kosten

1,2% Vertrags- und Treuhandkosten

Objekt Informationen

Wohnfläche 52,70 m²
Zimmer 2
Bautyp Neubau/Erstbezug
Objektart Wohnung
Objekttyp Dachgeschosswohnung
Badezimmer 1
Terrasse 8,50 m²
Keller 6,40 m²
Heizung
  • Erdwärme
  • Fußbodenheizung
Verfügbar ab sofort
Heizwärmebedarf (HWB) 31 kwh/m²a
Externe ID irwg__4a01b467-4d75-42db-9306-6de7cd5318ae
Parkplatz
  • (Tief-)Garage

Ausstattung:

  • icon Boden: Fliesen, Parkett
  • icon Parkplatz Tiefgarage
  • icon Lift

Empfohlene Services unserer Partner

Objekt Beschreibung


Ein Ort zum Wohlfühlen: Diese neu fertiggestellte 2-Zimmer-Wohnung in Feldkirch-Gisingen bietet modernen Wohnkomfort für alle, die das Besondere schätzen.

Wohnen über den Dächern: Die Dachgeschosswohnung begeistert mit einer überdachten Terrasse, die ein ganz besonderes Wohngefühl vermittelt. Genießen Sie die Weite, viel Tageslicht und eine private Rückzugsoase mit schönem Ausblick.

Ein durchgängig offener Wohnbereich und ein separates Schlafzimmer bieten eine ideale Raumaufteilung für eine oder zwei Personen. Die Terrasse ist direkt vom Wohnbereich aus zugänglich und erweitert den Wohnraum ins Freie.

Ausstattungsmerkmale:

- Überdachte Terrasse und schöner Garten

- Echtholz-Parkett in allen Wohnräumen

- Fußbodenheizung und -kühlung für ein ganzjährig angenehmes Raumklima

- Badezimmer mit stilvoller Sanitärausstattung namhafter Hersteller

- Elektrische Raffstoren in allen Zimmern

- Glasfaseranschluss für schnelle Internetverbindungen

- Lift, Tiefgarage und Kellerabteil

Angehängte Dokumente