ländleimmo.at / Mietobjekt / Wohnung / Dachgeschosswohnung / Vorarlberg / Bregenz / Höchst / 3-Zimmer-Dachgeschosswohnung | D12

3-Zimmer-Dachgeschosswohnung | D12

images icon

3 Zimmer

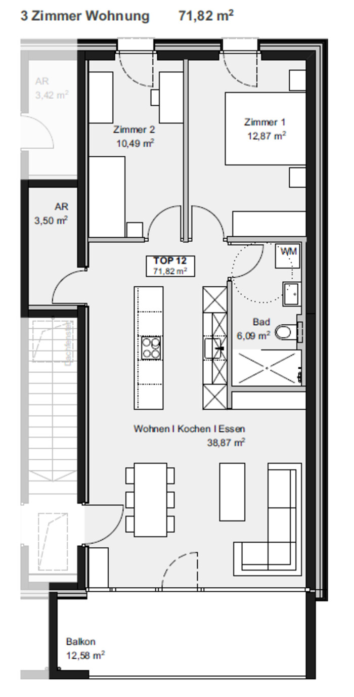
Grundriss

images icon

71,80 m²

Wohnfläche

€ 1.460

Preise

Gesamtbelastung € 1.460
Betriebskosten (exkl. Mwst) € 216,03
Kaution € 4.380

Objekt Informationen

Wohnfläche 71,80 m²
Zimmer 3
Bautyp Neubau/Erstbezug
Objektart Wohnung
Objekttyp Dachgeschosswohnung
Badezimmer 1
Terrasse 12,50 m²
Keller 6,30 m²
Abstellraum Vorhanden
Heizung
  • Wärmepumpe
  • Fußbodenheizung
Verfügbar ab sofort
Externe ID irwg__2e1ec45f-820f-4a86-a8ce-d591615e15e9
Parkplatz
  • (Tief-)Garage

Ausstattung:

  • icon Boden: Parkett
  • icon Ausrichtung Balkon: Süden
  • icon Parkplatz Tiefgarage
  • icon Lift

Empfohlene Services unserer Partner

Objekt Beschreibung


Hier verschmelzen Wohnqualität und Wohlgefühl. Warme Holzböden, natürliches Licht durch große Fenster und ein Außenbereich, der den Wohnraum ins Grüne erweitert. Ob alleine oder mit Familie und Freunden – diese Wohnung gibt Raum für alles, was das Leben schön macht.

Sonnige Wohnqualität: Die überdachte Terrasse dieser Obergeschosswohnung schafft ein geschütztes Outdoor-Wohnzimmer, das zu jeder Jahreszeit genutzt werden kann. Genießen Sie die Aussicht und das helle, offene Wohnkonzept.

Ob Zeit für sich oder gemeinsame Stunden – hier findet beides Platz. Die zwei zusätzlichen Zimmer können ganz nach Bedarf gestaltet werden: ein ruhiges Schlafzimmer, ein lebendiges Kinderzimmer oder ein kreativer Arbeitsbereich. Die überdachte Terrasse macht den Außenbereich zur zweiten Wohnzone – geschützt, gemütlich und immer bereit für eine kleine Auszeit.

Ausstattung im Überblick:

- Echtholz-Parkett in den Wohnräumen

- Fußbodenheizung

- Elektrische Screen-Markisen in allen Räumen

- Holzfenster mit 3-fach-Isolierverglasung

- Badezimmer mit Sanitärausstattung namhafter Hersteller

- Glasfaseranschluss