FLEXIBEL
FINANZIEREN

Kreditbedarf
Eigenmittel
%
Jahre
Zins | Laufzeit
mtl. Rate
ländleimmo.at / Kaufobjekt / Wohnung / Allgemein / Vorarlberg / Feldkirch / Klaus / Neuwertige 4-Zimmerwohnung in Klaus mit großer Terrasse

Neuwertige 4-Zimmerwohnung in Klaus mit großer Terrasse

images icon

4 Zimmer

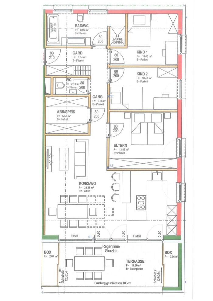
Grundriss

images icon

101,02 m²

Wohnfläche

€ 650.000

Daniel Ströhle

Rimo Immobilien GmbH

Preise

Kaufpreis € 650.000
Betriebskosten (exkl. Mwst) € 153,31
Einmalkosten 3% des Kaufpreises zzgl. 20% USt.
Provision 3% des Kaufpreises zzgl. 20% USt.
Erklärung Kosten exkl. TG-Abstellplatz = 20.000 EUR

Objekt Informationen

Wohnfläche 101,02 m²
Zimmer 4
Etage 1
Bautyp Neubau (bis 5 Jahre)
Baujahr 2023
Bauweise
  • Massiv
Objektart Wohnung
Objekttyp Allgemein
Badezimmer 1
Terrasse 22,43 m²
Keller 4,71 m²
Abstellraum Vorhanden
Fahrradraum Vorhanden
Heizung
  • Fußbodenheizung
  • Luft Wärmepumpe
Verfügbar ab nach Absprache
Gesamtanzahl Stellplätze 1
Heizwärmebedarf (HWB) 26,78 kwh/m²a
Klasse Heizwärmebedarf (Klasse HWB) B
Gesamtenergieeffizienz-Faktor (fGEE) 0,52 kwh/m²a
Klasse Gesamtenergieeffizienz-Faktor (Klasse fGEE) A++
Externe ID justimmo_378244_5681/661
Parkplatz
  • (Tief-)Garage
  • Freiplatz (1)

Ausstattung:

  • icon Wohnküche / offene Küche
  • icon Boden: Fliesen, Parkett
  • icon Bad mit: Badewanne, Dusche, Fenster
  • icon Parkplatz Tiefgarage
  • icon Lift
  • icon Gäste-WC
  • icon Barrierefrei
  • icon Seniorengerecht
  • icon Kabel/Satelliten-TV

Empfohlene Services unserer Partner

Objekt Beschreibung


Willkommen in Ihrem neuen Zuhause in Klaus – eine neuwertige 4-Zimmer-Wohnung, die keine Wünsche offen lässt. Diese attraktive Immobilie im 1. Obergeschoss bietet auf großzügigen 101,02 m² Wohnfläche höchsten Komfort und eine durchdachte Raumaufteilung.

Genießen Sie das helle und freundliche Wohnambiente mit einer modernen Wohnküche, die zum gemeinsamen Kochen und Verweilen einlädt. Die offene Gestaltung schafft eine einladende Atmosphäre, die perfekt für Familien oder Paare ist. Hochwertige Parkett- und Fliesenböden sorgen für ein angenehmes Wohngefühl, ergänzt durch eine energiesparende Fußbodenheizung, die für wohlige Wärme an kalten Tagen sorgt.

 

Highlights:

  • hochwertige Wohnküche im Preis inkludiert!
  • zwei Terrassenboxen für viel Stauraum
  • Bad mit Badewanne & Fliesendusche
  • Tischler-Einbaumöbel (Garderobe, Badmöbel, etc.)
  • moderne Luftwärmepumpe & Photovoltaik
  • 5 Besucherparkplätze
  • sehr gepflegte Wohnanlage
  • extra Kinderwagenraum

 

Küchenausstattung:

  • Geschirrspüler, Backofen & Dampfgarer von BOSCH
  • Kühlschrank mit Tiefkühlfach & 0-Grad-Zone von LIEBHERR

 

Lassen Sie sich diese Gelegenheit nicht entgehen und vereinbaren Sie noch heute einen Besichtigungstermin. Ihr Traum vom Eigenheim in Klaus wartet auf Sie!

 

Unsere Angaben beziehen sich auf die Auskünfte des Eigentümers. Irrtum und Änderungen vorbehalten.

Noch nichts gefunden? Wir informieren Sie über geeignete Immobilienangebote noch vor allen anderen.
Legen Sie jetzt kostenlos Ihren individuellen Suchagenten unter folgendem Link an. Wir schicken Ihnen passende Immobilien exklusiv vorab zu.
Suchagent anlegen

Der Vermittler ist als Doppelmakler tätig.


Infrastruktur / Entfernungen

Gesundheit
Arzt <450m
Apotheke <1.075m
Krankenhaus <5.250m

Kinder & Schulen
Schule <250m
Kindergarten <300m
Höhere Schule <3.250m
Universität <8.850m

Nahversorgung
Supermarkt <375m
Bäckerei <450m
Einkaufszentrum <4.075m

Sonstige
Bank <475m
Geldautomat <475m
Post <500m
Polizei <2.275m

Verkehr
Bus <275m
Bahnhof <1.425m
Autobahnanschluss <1.650m
Flughafen <9.600m

Angaben Entfernung Luftlinie / Quelle: OpenStreetMap



Lage:
Die Wohnung in der Schmalzgasse 6833 Klaus bietet eine sonnige Südausrichtung und liegt inmitten einer bestens erschlossenen Gemeinde in Vorarlberg. In unmittelbarer Nähe finden Sie Arzt, Schule, Kindergarten, Supermarkt, Bäckerei, Bank, Geldautomat, Post sowie eine Bushaltestelle – ideal für ein komfortables und entspanntes Leben.

Angehängte Dokumente