ländleimmo.at / Mietobjekt / Wohnung / Allgemein / Vorarlberg / Feldkirch / Götzis / 3-Zimmerwohnung in Götzis

3-Zimmerwohnung in Götzis

images icon

3 Zimmer

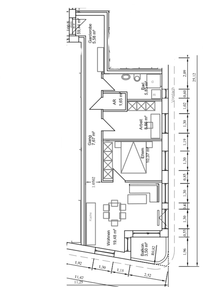
Grundriss

images icon

60,00 m²

Wohnfläche

€ 1.180

Privatanzeige

Preise

Gesamtbelastung € 1.180
Betriebskosten (exkl. Mwst) € 295
Miete (Auto-)Stellplatz € 40
Kaution € 3.660
Einmalkosten € 183

Objekt Informationen

Wohnfläche 60,00 m²
Zimmer 3
Nebenräume 1
Etage 1. OG
Bautyp Neubau (bis 5 Jahre)
Baujahr 2021
Bauweise
  • Massiv
Objektart Wohnung
Objekttyp Allgemein
Badezimmer 1
Terrasse 5,00 m²
Garten 200,00 m²
Fahrradraum 20,00 m²
Heizung
  • Fernwärme
Verfügbar ab Mai 2026
Heizwärmebedarf (HWB) 40 kwh/m²a
Klasse Heizwärmebedarf (Klasse HWB) B
Gesamtenergieeffizienz-Faktor (fGEE) 0,7 kwh/m²a

Ausstattung:

  • icon Einbauküche
  • icon Boden: Parkett
  • icon Bad mit: Dusche, Fenster
  • icon Ausrichtung Balkon: Osten, Süden

Empfohlene Services unserer Partner

Objekt Beschreibung

Götzis: Hub 16 a, Kleine 3-Zimmerwohnung, Wohnfläche 60,00 qm, Provisionsfrei. Die 3-Zimmerwohnung Nichtraucher, liegt im EG einer Kleinwohnanlage. Sie ist nach Süden gerichtet, hat eine sehr gute Verkehrsanbindung und ist doch ruhig gelegen. Bahnhof und Bus sind in wenigen Minuten erreichbar.

Heizung Fernwärme, Fußbodenheizung, SAT Empfänger am Dach, usw.

Die selbe Wohnung ist gerade im EG und im 1.OG frei geworden. (Top 2, EG und Top 6, 1.OG)

Erwünscht: Nichtraucher, keine Hunde, keine Behördengarantie als Kaution

  1. Diele
  2. Küche-Esszimmer
  3. Wohnzimmer
  4. Arbeitszimmer
  5. Schlafzimmer
  6. 1 Balkon (klein)
  7. Badezimmer/WC

Der Gesamtmietzins setzt sich wie folgt zusammen:

EUR 885,00 Miete Brutto

EUR 295,00 Betriebskosten Wohnung (nach Verbrauch)

EUR 1180,00 Gesamt Brutto Miete+ BK

EUR 40,00 Parkplatz Brutto


Kaution 3 Brutto Monatsmieten (nicht als Behördengarantie)

Vertragserrichtung einmalig 183 €

Keine Maklergebühren

ab sofort. (Mai)

Ansprechpartner: Fr. Ruff, bitte per E-Mail



Angehängte Dokumente