ländleimmo.at / Mietobjekt / Wohnung / Allgemein / Vorarlberg / Feldkirch / Feldkirch / Großzügige 2-Zimmer-Wohnung in Gisingen

Großzügige 2-Zimmer-Wohnung in Gisingen

images icon

2 Zimmer

Grundriss

images icon

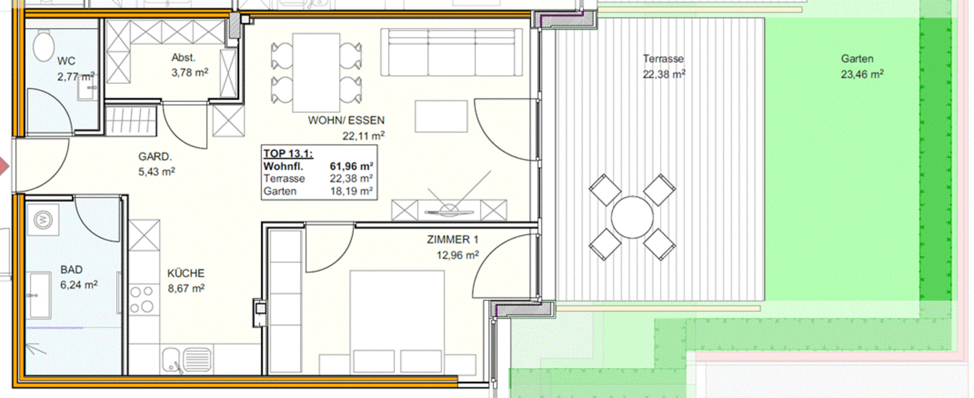
61,00 m²

Wohnfläche

€ 1.100

Markus Schelling

REKA Immobilieninvestitions GmbH

Markus Schelling

Preise

Gesamtbelastung € 1.100
Betriebskosten (exkl. Mwst) € 180
Miete (Auto-)Stellplatz € 72
Kaution € 3.800
Einmalkosten € 360

Objekt Informationen

Wohnfläche 61,00 m²
Zimmer 2
Anzahl Stockwerke 1
Etage Erdgeschoss
Bautyp Gebraucht
Objektart Wohnung
Objekttyp Allgemein
Badezimmer 1
Terrasse Vorhanden
Garten Vorhanden
Keller 7,00 m²
Fahrradraum Vorhanden
Heizung
  • Gas
Verfügbar ab 01. Juni
Befristung 5 Jahre
Heizwärmebedarf (HWB) 44 kwh/m²a
Klasse Heizwärmebedarf (Klasse HWB) B
Gesamtenergieeffizienz-Faktor (fGEE) 1,22 kwh/m²a
Klasse Gesamtenergieeffizienz-Faktor (Klasse fGEE) C
Externe ID 0422
Parkplatz
  • (Tief-)Garage
  • Freiplatz

Ausstattung:

  • icon Boden: Parkett
  • icon Bad mit: Dusche
  • icon Gäste-WC
  • icon Rollladen
  • icon Barrierefrei
  • icon Rollstuhlgerecht
  • icon Seniorengerecht
  • icon Wasch-/Trockenraum

Empfohlene Services unserer Partner

Objekt Beschreibung

Großzügige 2-Zimmer-Wohnung in zentraler Lage in Gisingen zu vermieten!

Die großzügige 2-Zimmer-Wohnung befindet sich in zentraler Lage in Feldkirch-Gisingen im Gebäude der Raiffeisenbank Montfort.

Die zentrale Lage gewährleistet eine sehr gute Infrastruktur mit allen Geschäften des täglichen Bedarfs in unmittelbarer Umgebung. Direkt im Gebäude befindet sich auch ein Allgemeiner Arzt, eine Bankstelle der Raiffeisenbank Montfort, die Post und ein Café. Das nächstgelegene Lebensmittelgeschäft ist 100 m entfernt.

Die Wohnanlage verfügt über eine Tiefgarage, einen Personenlift und die entsprechenden Nebenräumlichkeiten. Alle Wohnungen sind barrierefrei zugänglich!


Miete Tiefgarage: mtl. € 72,-- inkl. 20 % MwSt. (mit Indexierung)

Betriebskosten Tiefgarage: mtl. Akontozahlung ca. € 15,--


Kaution: € 3.800,--

Mietvertragsdauer: 5 Jahre


Sonstige Kosten

Vertragserrichtungskosten: € 360,--