FLEXIBEL
FINANZIEREN

Kreditbedarf
Eigenmittel
%
Jahre
Zins | Laufzeit
mtl. Rate
ländleimmo.at / Kaufobjekt / Wohnung / Allgemein / Vorarlberg / Dornbirn / Dornbirn / 2-Zimmer Neubau Wohnung mit Balkon, Abstellraum und Keller in Top-Lage!

2-Zimmer Neubau Wohnung mit Balkon, Abstellraum und Keller in Top-Lage!

images icon

2 Zimmer

Grundriss

images icon

47,53 m²

Wohnfläche

€ 356.000

Marcel Erhart

Unique87 GmbH

Preise

Kaufpreis € 356.000
Preis (Auto-)Stellplatz € 27.000
Erklärung Kosten zzgl. Grunderwerbssteuer: 3,5% zzgl. Grundbucheintragung: 1,1% zzgl. Nebenkosten: 1,2 % Vertrags- und Treuhandkosten

Objekt Informationen

Wohnfläche 47,53 m²
Zimmer 2
Etage 1. OG
Bautyp Neubau/Erstbezug
Baujahr 2026
Bauweise
  • Massiv
Objektart Wohnung
Objekttyp Allgemein
Badezimmer 1
Balkon 10,70 m²
Keller 5,63 m²
Abstellraum 2,50 m²
Heizung
  • Solar
  • Wärmepumpe
  • Fußbodenheizung
Verfügbar ab 2028
Heizwärmebedarf (HWB) 23,7 kwh/m²a
Klasse Heizwärmebedarf (Klasse HWB) A
Gesamtenergieeffizienz-Faktor (fGEE) 0,63 kwh/m²a
Klasse Gesamtenergieeffizienz-Faktor (Klasse fGEE) A+
Externe ID C06

Ausstattung:

  • icon Boden: Fliesen, Parkett
  • icon Bad mit: Dusche
  • icon Ausrichtung Balkon: Süden, Westen

Empfohlene Services unserer Partner

Objekt Beschreibung

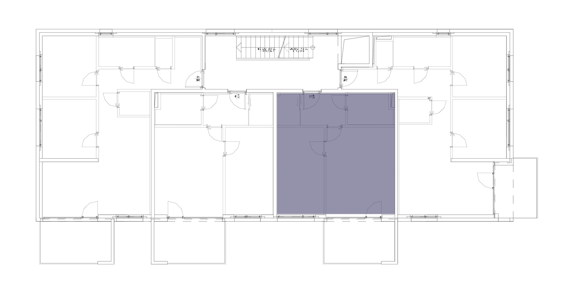
Moderne 2-Zimmer-Neubauwohnung mit Balkon in Dornbirn | Erstbezug 2028 | Ruhige Lage & hochwertige Ausstattung

Adresse: Rautenweg | Haus C | Whg. 06

Geschoss: Obergeschoss

Wohnfläche: ca. 47,53 m²

Balkonfläche: ca. 10,70 m²

Kaufpreis: 356.000,00 €

Bezugsfertig: Mitte 2028

Zimmer: 2

Bad: 1

Tiefgaragenstellplatz: optional

Status: Neubau – Erstbezug

Ihr neues Zuhause über den Dächern von Dornbirn – ruhig, modern & effizient

Diese hochwertig ausgeführte 2-Zimmer-Wohnung im 1. Obergeschoss eines modernen Neubauprojekts in Dornbirn-Rautenweg verbindet durchdachte Architektur mit hochwertiger Ausstattung und einer ruhigen Wohnlage. Ideal für Paare, kleine Familien oder Singles mit Anspruch an Qualität und Wohnkomfort.

Mit ca. 47,54 m² Wohnfläche, einem gut nutzbaren Balkon sowie modernen Ausstattungsdetails bietet Wohnung C06 ein attraktives Wohnkonzept mit langfristigem Mehrwert.

Raumaufteilung im Detail

  1. Kochen/Wohnen/Essen: 21,14 m² – offen & lichtdurchflutet
  2. Schlafzimmer (Eltern): 14,21 m²
  3. Badezimmer/WC: 4,70 m²
  4. Abstellraum: 2,50 m²
  5. Garderobe: 4,98 m²
  6. Balkon: 10,70 m²
  7. Kellerabteil: 5,63 m²

Ausstattung & Bauqualität

  1. Massivbauweise mit moderner Wärmedämmung
  2. Luftwärmepumpe & Photovoltaikanlage – nachhaltig & effizient
  3. Fußbodenheizung in allen Wohnräumen
  4. Fenster: Kunststoff-Alu mit 3-fach-Verglasung
  5. Elektrische Raffstores als Sonnenschutz
  6. Echtholz-Klebeparkett (Eiche oder Buche) in allen Wohnräumen
  7. Fliesenböden in Bad und WC (Wand voll verfliest)
  8. Lift im Gebäude – barrierearmer Zugang
  9. e-mobility-ready Tiefgarage – Stellplatz optional
  10. Heizwärmebedarf (HWB): 23,7 kWh/m²a | Energieklasse A

Lage – Stadtnahe Ruheoase mit bester Infrastruktur

Der Standort im Dornbirner Rautenweg bietet die ideale Mischung aus urbaner Anbindung und ruhigem Wohnen:

  1. Messepark Dornbirn und zahlreiche Einkaufsmöglichkeiten fußläufig erreichbar
  2. Bushaltestelle & Autobahnanschluss (Dornbirn-West) in unmittelbarer Nähe
  3. Kindergärten, Schulen, Ärzte & Apotheken in der Umgebung
  4. Freizeit & Natur: Dornbirner Ache, Ried und Bödele nur wenige Minuten entfernt
  5. Innenstadt mit Marktplatz, Cafés und kulturellem Angebot schnell erreichbar

Fazit – Ihre neue Eigentumswohnung in Dornbirn

Haus C | Wohnung 05 bietet modernen Wohnkomfort mit durchdachter Raumaufteilung, hochwertiger Ausstattung und nachhaltiger Bauweise. Ideal als Eigenheim oder wertbeständige Investition für die Zukunft.