ländleimmo.at / Mietobjekt / Wohnung / Allgemein / Vorarlberg / Dornbirn / Dornbirn / Ruhig und doch zentral - 3 Zimmerwohnung in Dornbirn (Rohrbach) zu vermieten!

Ruhig und doch zentral - 3 Zimmerwohnung in Dornbirn (Rohrbach) zu vermieten!

images icon

3 Zimmer

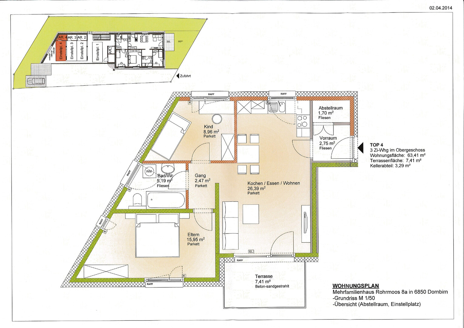
Grundriss

images icon

63,40 m²

Wohnfläche

€ 1.250

Clemens Widmann

Raumgut Immobilien GmbH

Preise

Gesamtbelastung € 1.250
Betriebskosten (exkl. Mwst) € 200
Kaution € 3.960

Objekt Informationen

Wohnfläche 63,40 m²
Zimmer 3
Bautyp Gebraucht
Baujahr 2014
Objektart Wohnung
Objekttyp Allgemein
Badezimmer 1
Terrasse 7,40 m²
Keller 3,28 m²
Verfügbar ab 2026-01-01
Heizwärmebedarf (HWB) 51,0 kwh/m²a
Klasse Heizwärmebedarf (Klasse HWB) 51.0
Gesamtenergieeffizienz-Faktor (fGEE) 0,72 kwh/m²a
Klasse Gesamtenergieeffizienz-Faktor (Klasse fGEE) 0.72
Externe ID raumgut_raumgut-367

Empfohlene Services unserer Partner

Objekt Beschreibung

Diese 3-Zimmer Wohnung befindet sich in einer attraktiven Lage in Dornbirn Rohrbach und bietet eine optimale Raumaufteilung sowie Ausstattung.

Beim Betreten der Wohnung gelangen Sie zunächst in den einladenden Eingangsbereich. Von hier aus kommen Sie in den großzügigen, offenen Wohn-/Ess-/Küchen-Bereich. Die moderne Küche schafft eine angenehme Atmosphäre für gemeinsame Mahlzeiten und gesellige Abende. Die Belichtung aus zwei Seiten sorgt für ein freundliches Wohnambiente. Das gemütliche Schlafzimmer bietet ausreichend Platz für ein großes Bett und Schränke. Ein weiteres Zimmer kann flexibel als Kinderzimmer, Gästezimmer oder Büro genutzt werden, je nach Ihren individuellen Bedürfnissen.

Das Badezimmer ist mit einer Badewanne und einem WC ausgestattet und verfügt zusätzlich über einen Waschmaschinenanschluss.

Besonders hervorzuheben ist der Balkon, auf dem Sie entspannte Stunden im Freien genießen können.

Zusätzlich steht Ihnen ein praktischer Lagerraum zur Verfügung, der Ihnen zusätzlichen Stauraum bietet.

Ein Carportstellplatz gehört ebenfalls zur Wohnung, sodass Ihr Fahrzeug sicher und geschützt abgestellt werden kann. Dieser kostet pro Monat EUR 70,- zusätzlich.

Zögern Sie nicht und vereinbaren Sie noch heute einen Besichtigungstermin!

Wir weisen darauf hin, dass wir uns aufgrund der regelmäßigen Zusammenarbeit in einem wirtschaftlichen Naheverhältnis mit der Vermieterseite befinden.

Unser Betrieb ist vom 22. Dezember 2025 bis einschließlich 6. Januar 2026 im Betriebsurlaub und ab dem 7. Januar 2026 wieder für Sie da.

Angehängte Dokumente