ländleimmo.at
/
Kaufobjekt
/
Wohnung
/
Allgemein
/
Vorarlberg
/
Dornbirn
/ Dornbirn
/
Perfekt geschnittene 4-Zimmer Dachgeschosswohnung
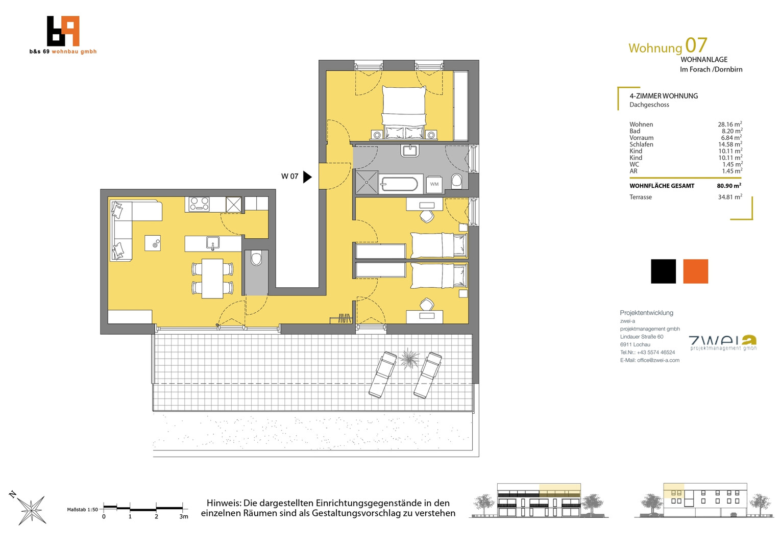
DORNBIRN / FORACH (Top 07)
Perfekt geschnittene 4-Zimmer Dachgeschosswohnung DORNBIRN / FORACH (Top 07)
4 Zimmer
Grundriss
80,90 m²
Wohnfläche
Preis auf Anfrage
Preise
Preis auf Anfrage
Objekt Informationen
Wohnfläche
80,90 m²
Zimmer
4
Bautyp
Neubau/Erstbezug
Baujahr
2024
Bauweise
- Massiv
Objektart
Wohnung
Objekttyp
Allgemein
Balkon
34,81 m²
Terrasse
34,81 m²
Keller
7,35 m²
Fahrradraum
Vorhanden
Heizung
- Fußbodenheizung
Gesamtanzahl Stellplätze
1
Heizwärmebedarf (HWB)
34,00 kwh/m²a
Klasse Heizwärmebedarf (Klasse HWB)
B
Gesamtenergieeffizienz-Faktor (fGEE)
0,58 kwh/m²a
Klasse Gesamtenergieeffizienz-Faktor (Klasse fGEE)
A+
Externe ID
phima_1473
Parkplatz
- Carport (1)
Ausstattung:
-
Lift
Empfohlene Services unserer Partner
Objekt Beschreibung
Das vom renommierten Architekten Dieter Groß geplante Gebäude mit hochwertiger Fassadengestaltung verspricht zeitgemäßes Wohnen in einem von Einfamilienhäusern geprägtem Dornbirner Stadtteil. Die durchdachten Grundrisse der 2-, 3- und 4-Zimmer Wohnungen bieten sowohl Platz für Alleinstehende als auch für die junge Familie. Großzügige Terrassen und Gärten laden zu entspannten Sommertagen ein.
Ergänzt wird die Wohnanlage durch ausreichend überdachte Stellplätze für PKW, Abstellmöglichkeiten für Fahrräder im Erdgeschoss und einem ansprechend gestalteten Außenbereich mit Spiel- und Begegnungsflächen für jung und alt. Ein Personenaufzug garantiert die Barrierefreiheit der einzelnen Wohnungen.
1,1% Grundbucheintragungsgebühr
Vertragserrichtungskosten
Beglaubigungskosten + Barauslagen
Lage:Dornbirn ist die größte Stadt im Rheintal und die Vorarlberger Einkaufsstadt. Zahlreiche Veranstaltungsorte wie das Kulturhaus oder der angesagte Spielboden, das Inatura Erlebnis-Museum uvm. bieten Vielfalt und Erlebnis.
Eine bunte Vielfalt zeichnet außerdem die gastronomische Szene aus. Von trendigen Hauben Restaurants bis zu gemütlichen Vorarlberger Wirtshäusern reicht die Palette an kulinarischen Genüssen.
Die hohe Lebensqualität der Stadt spiegelt sich im Sport- und Freizeitangebot wider. Die nahen Berge laden zum Wandern ein und eignen sich auch sehr gut zum Mountainbiken. Das romantische Waldbad oder das architektonisch sehenswerte moderne Stadtbad, Fitness-Parcours, sowie Radwege machen Dornbirn zum Aktivzentrum.
Ergänzt wird die Wohnanlage durch ausreichend überdachte Stellplätze für PKW, Abstellmöglichkeiten für Fahrräder im Erdgeschoss und einem ansprechend gestalteten Außenbereich mit Spiel- und Begegnungsflächen für jung und alt. Ein Personenaufzug garantiert die Barrierefreiheit der einzelnen Wohnungen.
Einmalkosten / Nebenkosten
3,5% Grunderwerbsteuer1,1% Grundbucheintragungsgebühr
Vertragserrichtungskosten
Beglaubigungskosten + Barauslagen
Lage:Dornbirn ist die größte Stadt im Rheintal und die Vorarlberger Einkaufsstadt. Zahlreiche Veranstaltungsorte wie das Kulturhaus oder der angesagte Spielboden, das Inatura Erlebnis-Museum uvm. bieten Vielfalt und Erlebnis.
Eine bunte Vielfalt zeichnet außerdem die gastronomische Szene aus. Von trendigen Hauben Restaurants bis zu gemütlichen Vorarlberger Wirtshäusern reicht die Palette an kulinarischen Genüssen.
Die hohe Lebensqualität der Stadt spiegelt sich im Sport- und Freizeitangebot wider. Die nahen Berge laden zum Wandern ein und eignen sich auch sehr gut zum Mountainbiken. Das romantische Waldbad oder das architektonisch sehenswerte moderne Stadtbad, Fitness-Parcours, sowie Radwege machen Dornbirn zum Aktivzentrum.