FLEXIBEL
FINANZIEREN

Kreditbedarf
Eigenmittel
%
Jahre
Zins | Laufzeit
mtl. Rate
ländleimmo.at / Kaufobjekt / Wohnung / Allgemein / Vorarlberg / Dornbirn / Hohenems / Großzügige 2-Zi-Wohnung mit riesigem Garten

Großzügige 2-Zi-Wohnung mit riesigem Garten

images icon

2 Zimmer

Grundriss

images icon

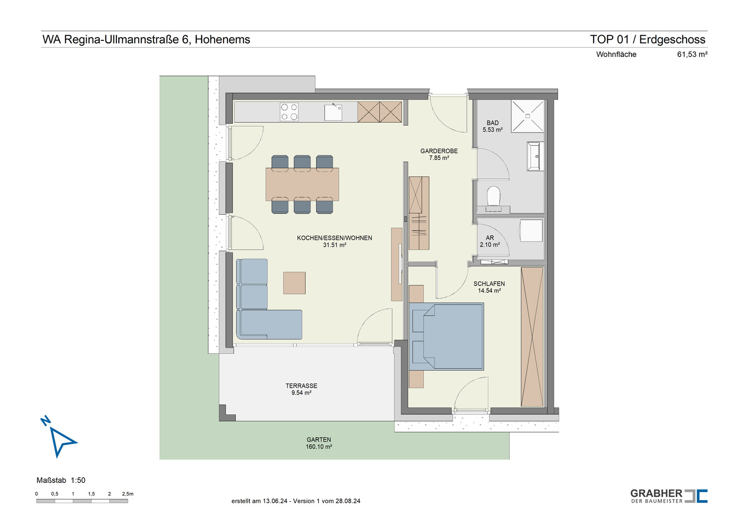
61,53 m²

Wohnfläche

€ 423.000

Verkauf Grabher

GRABHER, Der Baumeister GmbH

Preise

Kaufpreis € 423.000
Förderungen Wohnbauförderung bis zu € 72.500 möglich
Einmalkosten € 20.068

Objekt Informationen

Wohnfläche 61,53 m²
Zimmer 2
Anzahl Stockwerke 3
Etage EG
Bautyp Neubau/Erstbezug
Baujahr 2026
Objektart Wohnung
Objekttyp Allgemein
Badezimmer 1
Terrasse 9,54 m²
Garten 160,10 m²
Keller 6,83 m²
Fahrradraum Vorhanden
Heizung
  • Luft Wärmepumpe
  • Fußbodenheizung
Gesamtanzahl Stellplätze 1
Heizwärmebedarf (HWB) 32,00 kwh/m²a
Klasse Heizwärmebedarf (Klasse HWB) B
Gesamtenergieeffizienz-Faktor (fGEE) 0,54 kwh/m²a
Klasse Gesamtenergieeffizienz-Faktor (Klasse fGEE) A++
Externe ID 2024-05213_1
Parkplatz
  • Carport (19500.00 €)

Ausstattung:

  • icon Gartennutzung

Empfohlene Services unserer Partner

Objekt Beschreibung


Leistbares Wohnen in Hohenems!

In ruhiger Einfamilienhauslage in Hohenems, Erlach entsteht das Kleinwohnprojekt Regina-Ullmann-Straße mit insgesamt nur 10 Wohneinheiten. Die Umgebung bietet ein ideales Umfeld für Familien und Paare, die ein Zuhause in grüner Umgebung mit guter Infrastruktur schätzen. Die hervorragende Anbindung an die öffentlichen Verkehrsmittel ermöglicht es Ihnen, bequem und umweltfreundlich in die Innenstadt und die umliegenden Gemeinden zu gelangen.

Architektur und Ausführung
Die moderne und langlebige Architektur des Wohnhauses fügt sich harmonisch in die Umgebung ein. Die Grundrisse sind durchdacht und höchst praktisch eingeteilt, sodass die lichtdurchfluteten Räumlichkeiten viel Platz für’s Wohnen sicherstellen. Die hochwertige Ziegelbauweise und die Verwendung von nachhaltigen Materialien sorgen für ein gesundes Raumklima mit Wohlfühlgarantie.

Nachhaltigkeit
Mittels Contracting-Vereinbarung wird das Wohnhaus durch die Illwerke VKW mit einer Photovoltaikanlage in Kombination mit einer Luftwärmepumpe ausgestattet. Die Sonnenenergie wird von der gemeinschaftlichen Erzeugungsanlage für die Stromversorgung des Gebäudes genutzt. Das moderne Heizsystem über Luftwärmepumpe sorgt zusätzlich für eine effiziente und umweltfreundliche Energieversorgung.

Wohnkomfort
Die hellen Räume gestalten Sie individuell nach Ihrem Geschmack, indem Sie aus einer großen Auswahl an Fliesen und Oberböden das Passende für sich wählen. Abstellräume und Kellerabteile bieten zusätzlichen Stauraum. Freuen Sie sich auf die schönen Terrassen bzw. Loggien: diese laden zum Entspannen und Verweilen im Freien ein.

Zusammenfassend bietet dieses moderne Kleinwohnprojekt in Hohenems eine hervorragende Kombination aus Lage, attraktivem Wohnraum und das zu einem attraktiven Preis.

Interesse geweckt?
Gerne informieren wir Sie ausführlich über dieses interessante Wohnprojekt. Nehmen Sie Kontakt mit uns auf, um mehr zu erfahren.

Angehängte Dokumente