ländleimmo.at
/
Mietobjekt
/
Wohnung
/
Allgemein
/
Vorarlberg
/
Bregenz
/ Bregenz
/
Wohnen in bester Lage von Bregenz mit tollem Blick auf den Bodensse – urban, ruhig und lebenswert
Wohnen in bester Lage von Bregenz mit tollem Blick auf den Bodensse – urban, ruhig und lebenswert
3 Zimmer
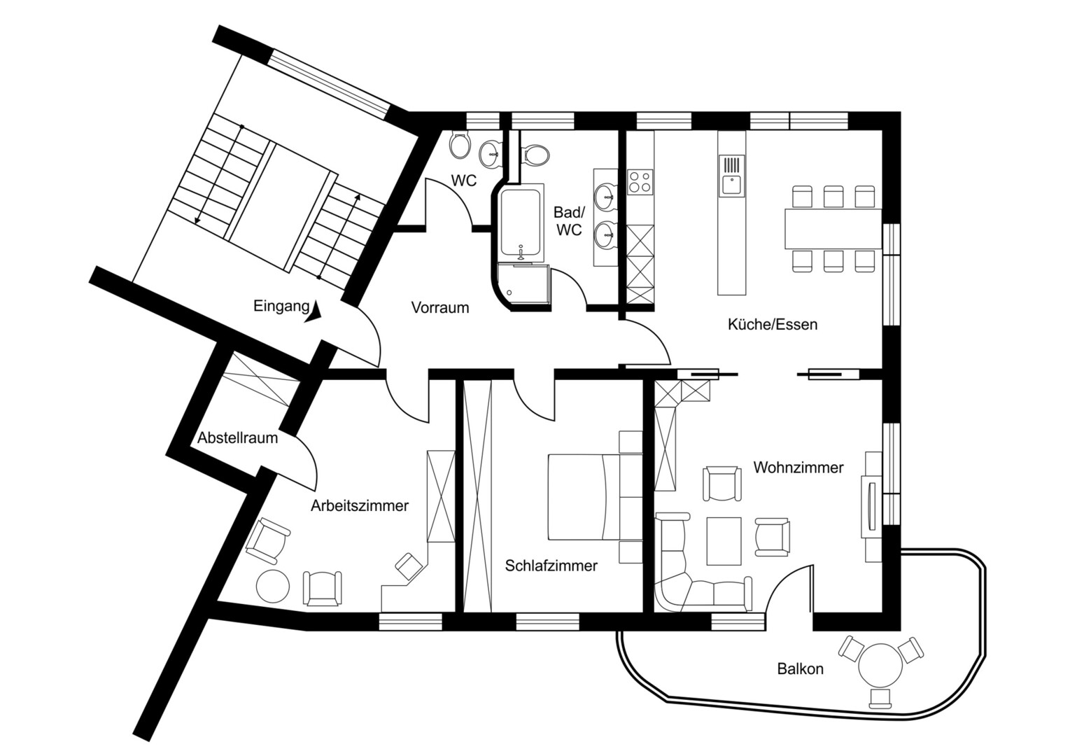
Grundriss
94,05 m²
Wohnfläche
€ 1.870
Preise
Gesamtbelastung
Miete + Betriebskosten + Heizkosten + Sonstige Kosten; inkl. MwSt.
€ 1.870
Betriebskosten (exkl. Mwst)
€ 298,43
Objekt Informationen
Wohnfläche
94,05 m²
Zimmer
3
Bautyp
Gebraucht
Baujahr
1960
Objektart
Wohnung
Objekttyp
Allgemein
Balkon
9,35 m²
Terrasse
9,35 m²
Keller
11,90 m²
Heizung
- Gas
Heizwärmebedarf (HWB)
102,00 kwh/m²a
Klasse Heizwärmebedarf (Klasse HWB)
D
Gesamtenergieeffizienz-Faktor (fGEE)
1,76 kwh/m²a
Klasse Gesamtenergieeffizienz-Faktor (Klasse fGEE)
D
Externe ID
phima_1604
Ausstattung:
-
Lift
Empfohlene Services unserer Partner
Objekt Beschreibung
Diese ansprechende Mietwohnung befindet sich in Bregenz und bietet ein komfortables sowie vielseitiges Wohnambiente für Familien, Paare oder anspruchsvolle Mieter. Die durchdachte Raumaufteilung mit insgesamt vier Zimmern schafft viel Platz für individuelle Wohnkonzepte und ein angenehmes Wohngefühl.
Die hellen Wohnräume überzeugen durch ihre freundliche Atmosphäre und bieten zahlreiche Gestaltungsmöglichkeiten – ob als gemütliches Wohnzimmer, ruhiges Schlafzimmer, Kinderzimmer oder Homeoffice. Der Balkon stellt ein besonderes Highlight dar und lädt dazu ein, entspannte Stunden im Freien zu verbringen.
Die Wohnung befindet sich in einem gepflegten Wohngebäude in einer ruhigen und dennoch zentralen Lage. Freie Parkplätze direkt vor dem Gebäude sorgen für zusätzlichen Komfort und erleichtern den Alltag erheblich. Dank der guten Infrastruktur sind Einkaufsmöglichkeiten, Schulen, Kindergärten sowie öffentliche Verkehrsmittel schnell und bequem erreichbar. Auch das Stadtzentrum von Bregenz sowie Naherholungsgebiete befinden sich in angenehmer Nähe.
Diese Mietwohnung vereint großzügiges Wohnen, eine attraktive Lage und praktische Ausstattungsmerkmale zu einem stimmigen Gesamtpaket. Sie bietet ideale Voraussetzungen für ein entspanntes und modernes Wohnen in einer der beliebtesten Wohngegenden von Bregenz.
Kaution: 3 Bruttomonatsmieten
Lage:Diese Gegend zählt zu den beliebten Wohnadressen der Stadt und bietet eine gelungene Kombination aus ruhigem Wohnen und urbaner Nähe. Einkaufsmöglichkeiten für den täglichen Bedarf, Schulen, Kindergärten sowie medizinische Einrichtungen sind in kurzer Zeit erreichbar und erleichtern den Alltag erheblich.
Dank der guten Anbindung an öffentliche Verkehrsmittel ist das Stadtzentrum von Bregenz schnell und bequem erreichbar. Auch der Bodensee mit seinen vielfältigen Freizeit- und Erholungsmöglichkeiten liegt nur wenige Minuten entfernt und lädt zu Spaziergängen, sportlichen Aktivitäten oder entspannten Stunden am Wasser ein. Zahlreiche Cafés, Restaurants und kulturelle Angebote befinden sich ebenfalls in angenehmer Nähe.
Die Lage bietet zudem eine gute Verkehrsanbindung für Pendler und ermöglicht eine schnelle Erreichbarkeit der umliegenden Regionen. Insgesamt zeichnet sich diese Wohngegend durch ihre hohe Lebensqualität, die ausgezeichnete Infrastruktur und das harmonische Wohnumfeld aus.
Die hellen Wohnräume überzeugen durch ihre freundliche Atmosphäre und bieten zahlreiche Gestaltungsmöglichkeiten – ob als gemütliches Wohnzimmer, ruhiges Schlafzimmer, Kinderzimmer oder Homeoffice. Der Balkon stellt ein besonderes Highlight dar und lädt dazu ein, entspannte Stunden im Freien zu verbringen.
Die Wohnung befindet sich in einem gepflegten Wohngebäude in einer ruhigen und dennoch zentralen Lage. Freie Parkplätze direkt vor dem Gebäude sorgen für zusätzlichen Komfort und erleichtern den Alltag erheblich. Dank der guten Infrastruktur sind Einkaufsmöglichkeiten, Schulen, Kindergärten sowie öffentliche Verkehrsmittel schnell und bequem erreichbar. Auch das Stadtzentrum von Bregenz sowie Naherholungsgebiete befinden sich in angenehmer Nähe.
Diese Mietwohnung vereint großzügiges Wohnen, eine attraktive Lage und praktische Ausstattungsmerkmale zu einem stimmigen Gesamtpaket. Sie bietet ideale Voraussetzungen für ein entspanntes und modernes Wohnen in einer der beliebtesten Wohngegenden von Bregenz.
Einmalkosten / Nebenkosten
VertragserrichtungskostenKaution: 3 Bruttomonatsmieten
Lage:Diese Gegend zählt zu den beliebten Wohnadressen der Stadt und bietet eine gelungene Kombination aus ruhigem Wohnen und urbaner Nähe. Einkaufsmöglichkeiten für den täglichen Bedarf, Schulen, Kindergärten sowie medizinische Einrichtungen sind in kurzer Zeit erreichbar und erleichtern den Alltag erheblich.
Dank der guten Anbindung an öffentliche Verkehrsmittel ist das Stadtzentrum von Bregenz schnell und bequem erreichbar. Auch der Bodensee mit seinen vielfältigen Freizeit- und Erholungsmöglichkeiten liegt nur wenige Minuten entfernt und lädt zu Spaziergängen, sportlichen Aktivitäten oder entspannten Stunden am Wasser ein. Zahlreiche Cafés, Restaurants und kulturelle Angebote befinden sich ebenfalls in angenehmer Nähe.
Die Lage bietet zudem eine gute Verkehrsanbindung für Pendler und ermöglicht eine schnelle Erreichbarkeit der umliegenden Regionen. Insgesamt zeichnet sich diese Wohngegend durch ihre hohe Lebensqualität, die ausgezeichnete Infrastruktur und das harmonische Wohnumfeld aus.