FLEXIBEL
FINANZIEREN

Kreditbedarf
Eigenmittel
%
Jahre
Zins | Laufzeit
mtl. Rate
ländleimmo.at / Kaufobjekt / Wohnung / Allgemein / Vorarlberg / Bregenz / Bregenz / Beste Lage mit Seeblick - Exklusives Penthouse am Fuße des Pfänders

Beste Lage mit Seeblick - Exklusives Penthouse am Fuße des Pfänders

images icon

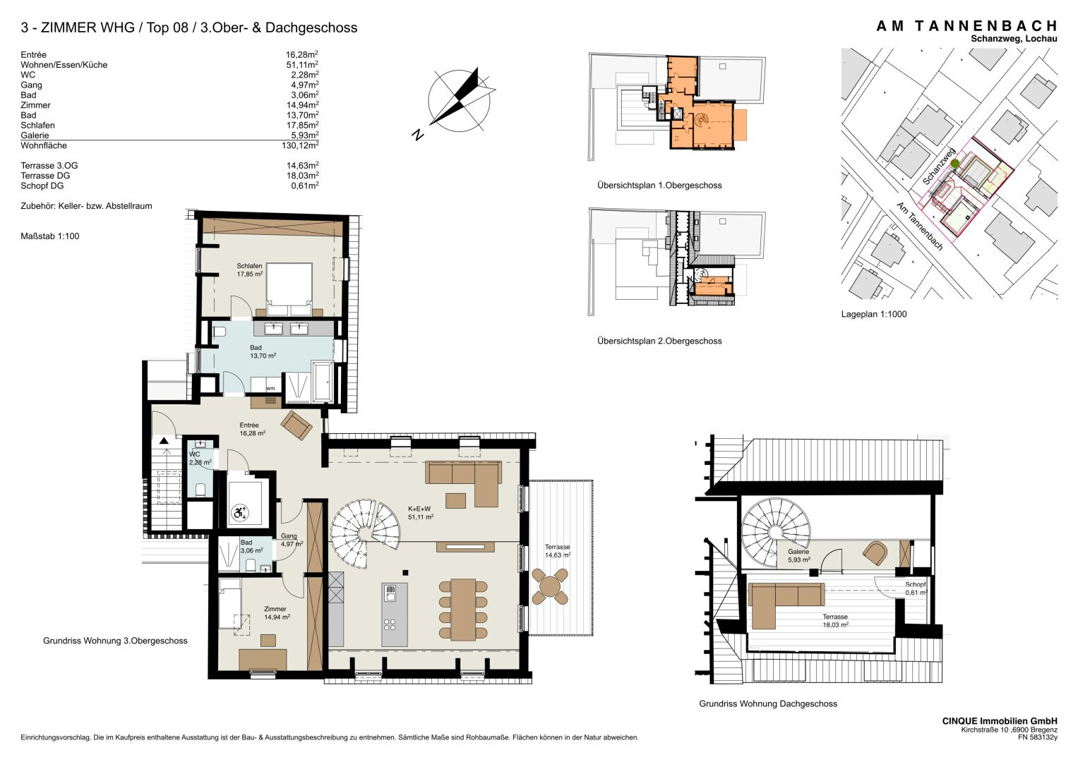
3 Zimmer

Grundriss

images icon

130,12 m²

Wohnfläche

Preis auf Anfrage

Preise

Preis auf Anfrage

Objekt Informationen

Wohnfläche 130,12 m²
Zimmer 3
Baujahr 1920
Objektart Wohnung
Objekttyp Allgemein
Badezimmer 2
Balkon Vorhanden
Terrasse 32,66 m²
Fahrradraum Vorhanden
Heizung
  • Zentralheizung
Heizwärmebedarf (HWB) 44 kwh/m²a
Klasse Heizwärmebedarf (Klasse HWB) B
Gesamtenergieeffizienz-Faktor (fGEE) 0,79 kwh/m²a
Klasse Gesamtenergieeffizienz-Faktor (Klasse fGEE) A
Externe ID justimmo_352244_916
Parkplatz
  • Freiplatz (1)

Ausstattung:

  • icon Boden: Fliesen, Parkett
  • icon Parkplatz Carport,Freiplatz
  • icon Lift
  • icon Barrierefrei

Empfohlene Services unserer Partner

Objekt Beschreibung

Beste Lage mit Seeblick - Exklusives Penthouse am Fuße des Pfänders

Willkommen in der außergewöhnlichen Penthouse-Wohnung des Bauvorhabens Am Tannenbach 23 in Lochau. Dieses einzigartige Zuhause erfüllt höchste Ansprüche an Komfort, Design und Privatsphäre und bietet dank zwei großzügiger Dachterrassen einen spektakulären Blick über den Bodensee.



Penthouse-Highlights




  • Zweistöckiges Design mit Galerie: großzügige Raumhöhen und eine offene Galerie im Wohnzimmer verleihen dieser Wohnung ein einzigartiges Loft-Flair.

  • Direkter Liftzugang: der Aufzug führt direkt ins Penthouse und garantiert höchsten Komfort sowie Privatsphäre.

  • Zwei Terrassen: genießen Sie traumhafte Aussichten auf den Bodensee und die umliegende Berglandschaft.

  • Hochwertige Ausstattung: moderne Architektur, durchdachte Grundrisse und energieeffiziente Baumaterialien sorgen für maximalen Wohnkomfort.



Das Bauvorhaben Am Tannenbach 23 in Lochau umfasst acht Wohneinheiten, die allesamt im Sinne einer modernen und nachhaltigen Bauweise entwickelt werden. Der Fokus liegt auf maximalem Wohnkomfort, Energieeffizienz und einer herausragenden Lage: nur wenige Schritte trennen Sie vom Bodensee, und gleichzeitig genießen Sie alle Vorzüge einer urbanen Infrastruktur in Bregenz.



Im Rahmen der Entwicklung wird das Objekt umfassend modernisiert:




  • Nachhaltigkeit im Fokus: Umstellung auf eine umweltfreundliche Erdwärmepumpe

  • Energieeffizienz: Dämmung der Fassade und Austausch der Fenster

  • Komfortables Wohnen: Verlegung des Stiegenhauses und Installation eines Lifts, sodass alle Wohneinheiten barrierefrei zugänglich sind

  • Exklusiver Ausblick: Errichtung von Balkonen und Terrassen mit Blick auf den Bodensee

  • Innovatives Design: Abtragung und Neuaufrichtung des Dachgeschosses


Wir weisen darauf hin, dass zwischen dem Vermittler und dem zu vermittelnden Dritten ein familiäres oder wirtschaftliches Naheverhältnis besteht.


Infrastruktur / Entfernungen

Gesundheit
Arzt <1.000m
Apotheke <1.000m
Krankenhaus <1.500m
Klinik <1.500m

Kinder & Schulen
Schule <500m
Kindergarten <500m
Höhere Schule <3.500m
Universität <1.000m

Nahversorgung
Supermarkt <500m
Bäckerei <500m
Einkaufszentrum <1.000m

Sonstige
Bank <1.000m
Geldautomat <1.000m
Post <1.000m
Polizei <1.500m

Verkehr
Bus <500m
Autobahnanschluss <2.500m
Bahnhof <500m

Angaben Entfernung Luftlinie / Quelle: OpenStreetMap



Lage:
Nur wenige Schritte trennen Sie vom Bodensee und dem charmanten Militärbad „Mili“. Das Stadtzentrum von Bregenz ist in Sichtweite, und hinter dem Haus beginnt der Weg in die Berge – eine perfekte Verbindung von Stadt, See und Natur.
Die Liegenschaft befindet sich unmittelbar an der Stadtgrenze zu Bregenz und zählt zwar verwaltungstechnisch zu Lochau, trägt jedoch die Bregenzer Postleitzahl. Auch die Postzustellung erfolgt durch den Bregenzer Zustelldienst. Damit verbindet die Adresse den exklusiven Standortvorteil einer Bregenzer Immobilie mit der Ruhe und Lebensqualität von Lochau.