ländleimmo.at
/
Mietobjekt
/
Wohnung
/
Allgemein
/
Vorarlberg
/
Bregenz
/ Schwarzach
/
"ohne Provision" gemütliche 2 Zimmer Wohnung
"ohne Provision" gemütliche 2 Zimmer Wohnung
2 Zimmer
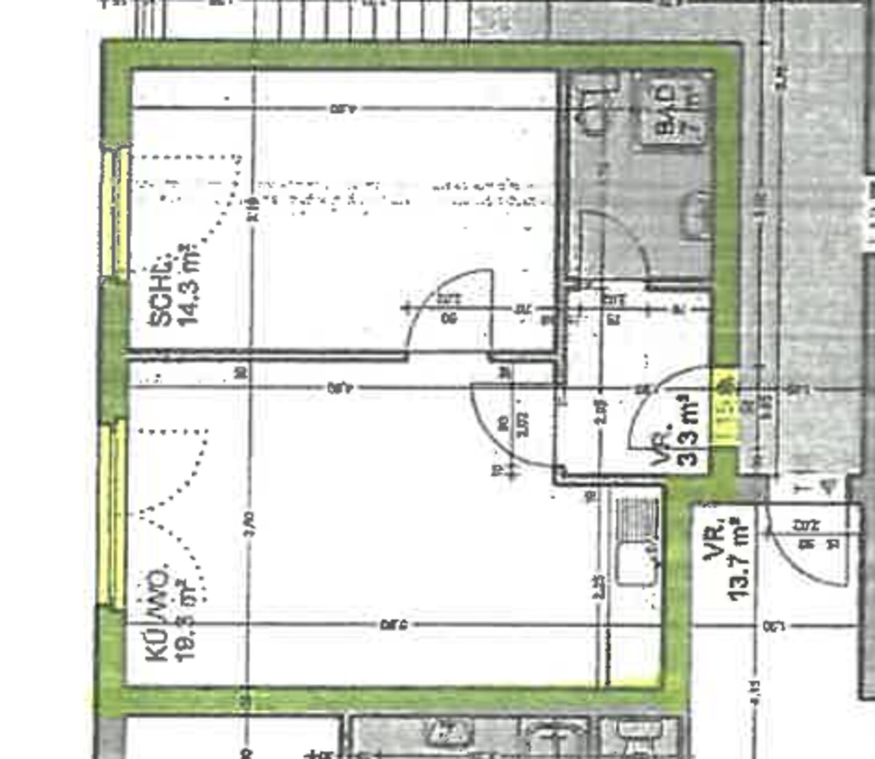
Grundriss
43,90 m²
Wohnfläche
€ 665,62
Preise
Gesamtbelastung
Miete + Betriebskosten + Heizkosten + Sonstige Kosten; inkl. MwSt.
€ 665,62
Betriebskosten (exkl. Mwst)
€ 225,03
Mehrwertsteuer
Summe der MwSt. aller angegebener Preise
€ 40,06
Gesamtmiete (inkl. MwSt.)
Gesamtbelastung abzüglich Heizkosten BRUTTO
€ 440,59
Miete (exkl. MwSt.)
Miete ohne MwSt., Betriebskosten und Heizkosten
€ 400,53
Objekt Informationen
Wohnfläche
43,90 m²
Zimmer
2
Etage
2. OG
Bauweise
- Massiv
Objektart
Wohnung
Objekttyp
Allgemein
Badezimmer
1
Keller
Vorhanden
Heizung
- Fernwärme
Verfügbar ab
ab 01.07.2026 möglich
Befristung
nach Vereinbarung
Heizwärmebedarf (HWB)
179 kwh/m²a
Gesamtenergieeffizienz-Faktor (fGEE)
3,16 kwh/m²a
Ausstattung:
-
Einbauküche
-
Boden: Fliesen, Parkett
-
Bad mit: Dusche
-
Lift
Empfohlene Services unserer Partner
Objekt Beschreibung
Schwarzach - Tobelstraße
Die gemütliche 2 Zimmer Wohnung wird ab 1.7.26 neu vermietet.
Einteilung: Vorraum, Wohn/Esszimmer mit Küche , Schlafzimmer, Dusche/WC, Kellerabteil
Direkt beim Haus gibt es Autoabstellplätze im Freien.
In wenigen Minuten erreichen Sie div. Geschäfte des täglichen Bedarfs.
Senden Sie uns eine Anfrage und vereinbaren gleich einen Besichtigungstermin!