ländleimmo.at
/
Kaufobjekt
/
Haus
/
Mehrfamilienhaus
/
Vorarlberg
/
Bludenz
/ Vandans
/
Wohnanlage mit 6 Wohnungen und 1.000m² Grundstück in der Ferienregion Vandans / Montafon!
Wohnanlage mit 6 Wohnungen und 1.000m² Grundstück in der Ferienregion Vandans / Montafon!
N/A
Grundriss
380,96 m²
Wohnfläche
Preis auf Anfrage
Preise
Preis auf Anfrage
Einmalkosten
1,1% Grundbucheintragung
1,2% Vertragskosten
3,6% Maklerhonorar inkl. MwSt.
Grunderwerbssteuer, Grundbucheintragung, Vertragserrichtungsgebühr
3,5% Grunderwerbssteuer1,1% Grundbucheintragung
1,2% Vertragskosten
3,6% Maklerhonorar inkl. MwSt.
Provision
3,5% Grunderwerbssteuer
1,1% Grundbucheintragung
1,2% Vertragskosten
3,6% Maklerhonorar inkl. MwSt.
1,1% Grundbucheintragung
1,2% Vertragskosten
3,6% Maklerhonorar inkl. MwSt.
Objekt Informationen
Wohnfläche
380,96 m²
Grundstücksgröße
1.000,00 m²
Bautyp
Gebraucht
Baujahr
1996
Objektart
Haus
Objekttyp
Mehrfamilienhaus
Keller
130,10 m²
Heizung
- Öl
- Zentralheizung
Externe ID
Domig_1405
Parkplatz
- (Tief-)Garage
- Freiplatz (1)
Ausstattung:
-
Einbauküche
-
Parkplatz Garage,Freiplatz
-
Gartennutzung
Empfohlene Services unserer Partner
Objekt Beschreibung
Wohnanlage mit 6 Wohnungen und 1.000m² Grundstück in der Ferienregion Vandans / Montafon!
Zum Verkauf steht eine Wohnanlage mit 6 Wohneinheiten, die derzeit alle vermietet sind.
Das Gebäude ca. 1996 in Massivbauweise errichtet und verfügt im Kellergeschoss über großzügige Räume und 2 große Doppelgaragen für bis zu vier PKW's.
Kellergeschoss: ca. 130 m²
2 Doppelgaragen (4 PKW): ca. 57,20 m²
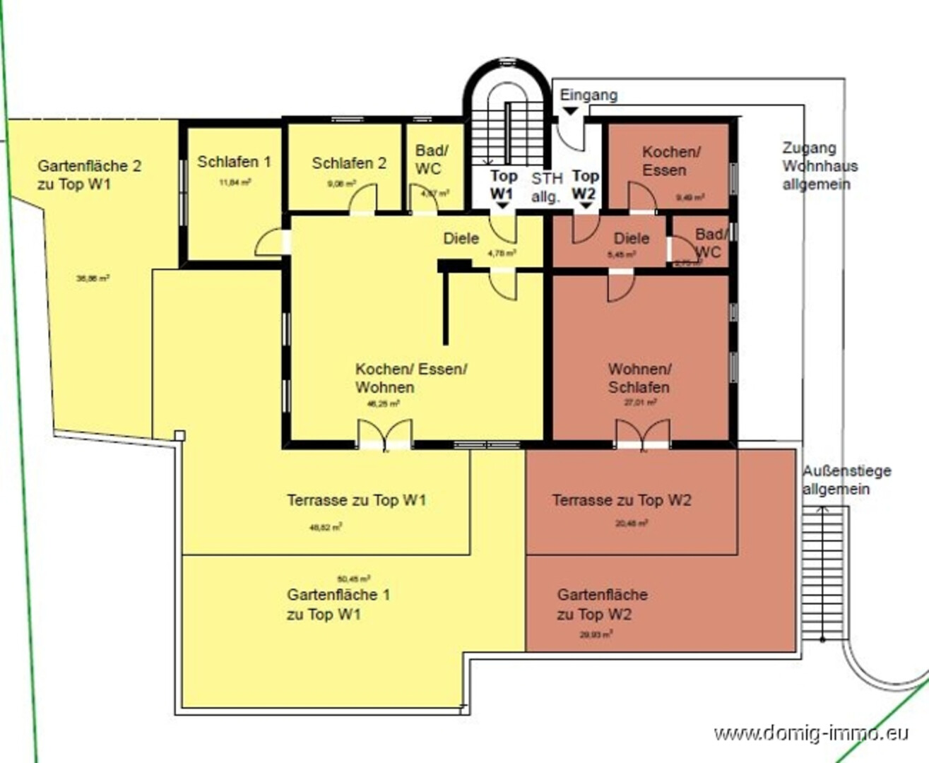
Wohnung Top 6 im Kellergeschoss: ca. 47,22 m²
Wohnung Top 1 im Erdgeschoss: ca. 76,62 m²
Wohnung Top 2 im Erdgeschoss: ca. 44,70 m²
Wohnung Top 3 im Obergeschoss: ca. 65,93 m²
Wohnung Top 4 im Obergeschoss: ca. 54,03 m²
Wohnung Top 5 im Dachgeschoss: ca. 92,46 m²
Die Wohnungen verfügen über großzügige Balkone und Terrassen. Im Außenbereich der Anlage befindet sich zusätzlich eine große Spielwiese, die für die Bewohner frei zugänglich ist.
Eine Renditeberechnung und eine Mieteinahmen-Aufstellung werden erst nach persönlichem Kontakt übermittelt.
Eine sichere und wertstabile Geldanlage ist für Anleger und Investoren die höchste Priorität, dieses Objekt erfüllte alle dieser Faktoren.
Energieausweis (HWB-Wert) = 75 kWh/m² (C)
FINANZIERUNG:
Tel.: +43 5572/40 10 29, , www.laendlefinanz.at
Ländle Finanz Raid & Partner OG , Moosmahdstraße 42, A-6850 Dornbirn
Lage:
sonnig
im Zentrum
Nähe Skilift
Ferienregion
Bergpanorama
Tolles Mehrparteienhaus (Wohnanlage) mit 6 Wohnungen, 2 großen Doppelgaragen und 1.000m² Grundstücksfläche. Die mit Blick auf das Bergpanorama des schönen Montafons gelegene Wohnanlage befindet sich in der Ferienregion Vandans.
Zum Verkauf steht eine Wohnanlage mit 6 Wohneinheiten, die derzeit alle vermietet sind.
Das Gebäude ca. 1996 in Massivbauweise errichtet und verfügt im Kellergeschoss über großzügige Räume und 2 große Doppelgaragen für bis zu vier PKW's.
Kellergeschoss: ca. 130 m²
2 Doppelgaragen (4 PKW): ca. 57,20 m²
Wohnung Top 6 im Kellergeschoss: ca. 47,22 m²
Wohnung Top 1 im Erdgeschoss: ca. 76,62 m²
Wohnung Top 2 im Erdgeschoss: ca. 44,70 m²
Wohnung Top 3 im Obergeschoss: ca. 65,93 m²
Wohnung Top 4 im Obergeschoss: ca. 54,03 m²
Wohnung Top 5 im Dachgeschoss: ca. 92,46 m²
Die Wohnungen verfügen über großzügige Balkone und Terrassen. Im Außenbereich der Anlage befindet sich zusätzlich eine große Spielwiese, die für die Bewohner frei zugänglich ist.
Eine Renditeberechnung und eine Mieteinahmen-Aufstellung werden erst nach persönlichem Kontakt übermittelt.
Eine sichere und wertstabile Geldanlage ist für Anleger und Investoren die höchste Priorität, dieses Objekt erfüllte alle dieser Faktoren.
Energieausweis (HWB-Wert) = 75 kWh/m² (C)
FINANZIERUNG:
Tel.: +43 5572/40 10 29, , www.laendlefinanz.at
Ländle Finanz Raid & Partner OG , Moosmahdstraße 42, A-6850 Dornbirn
Lage:
sonnig
im Zentrum
Nähe Skilift
Ferienregion
Bergpanorama
Tolles Mehrparteienhaus (Wohnanlage) mit 6 Wohnungen, 2 großen Doppelgaragen und 1.000m² Grundstücksfläche. Die mit Blick auf das Bergpanorama des schönen Montafons gelegene Wohnanlage befindet sich in der Ferienregion Vandans.