FLEXIBEL
FINANZIEREN

Kreditbedarf
Eigenmittel
%
Jahre
Zins | Laufzeit
mtl. Rate
ländleimmo.at / Kaufobjekt / Haus / Einfamilienhaus / Vorarlberg / Bregenz / Wolfurt / Einfamilienhaus mit großem Grundstück

Einfamilienhaus mit großem Grundstück

images icon

5 Zimmer

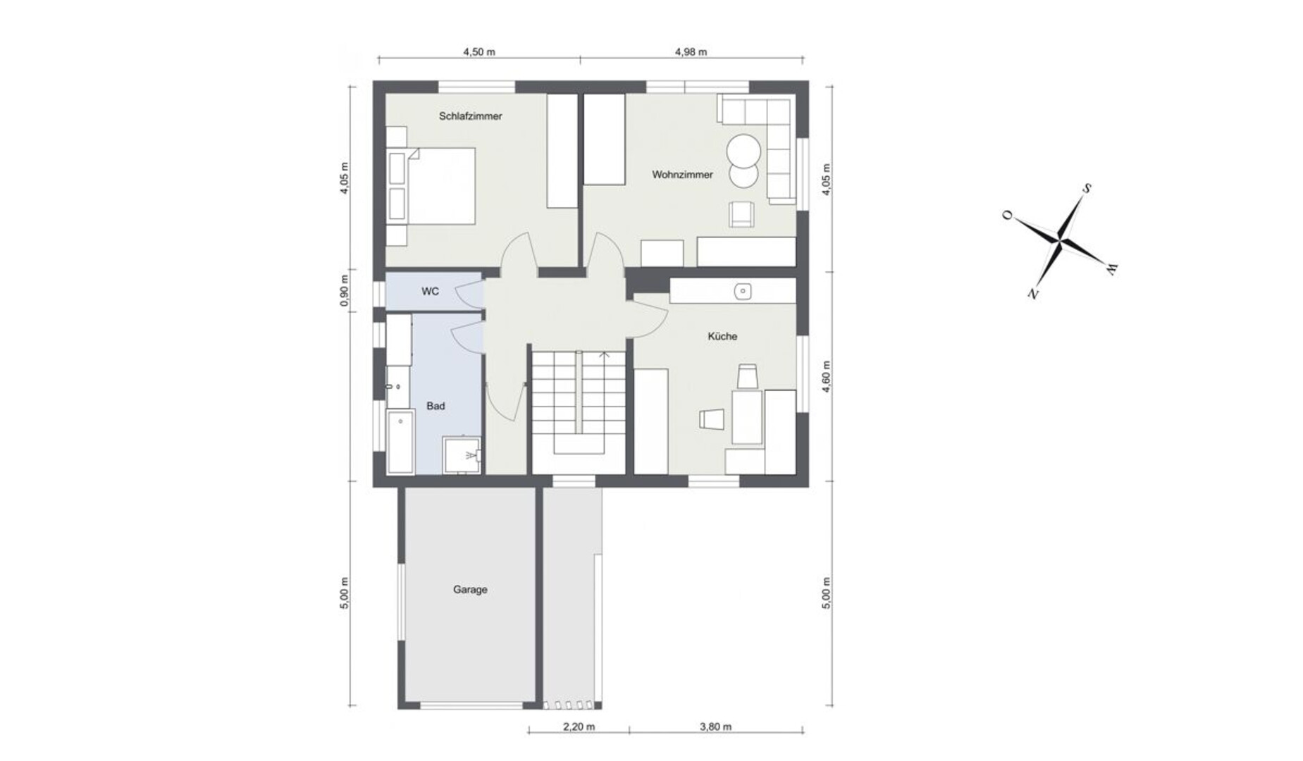
Grundriss

images icon

153,00 m²

Wohnfläche

Preis auf Anfrage

Matthias Hartinger

MATTHIAS HARTINGER IMMOBILIEN E&H Immobilien GmbH

Preise

Preis auf Anfrage

Objekt Informationen

Wohnfläche 153,00 m²
Grundstücksgröße 985,00 m²
Zimmer 5
Baujahr 1962
Bauweise
  • Holz
Objektart Haus
Objekttyp Einfamilienhaus
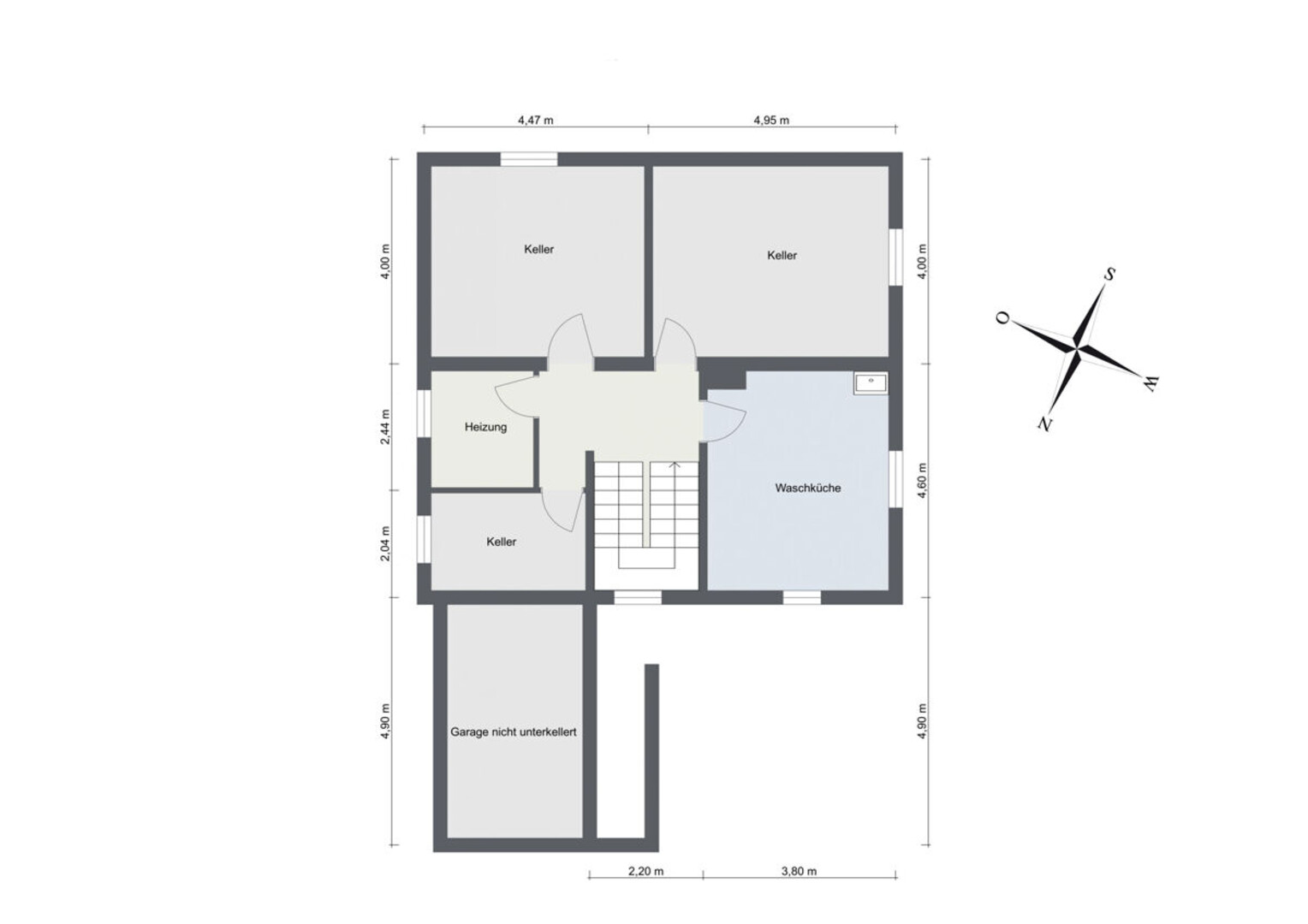
Keller 65,00 m²
Heizung
  • Öl
  • Holz
Gesamtanzahl Stellplätze 2
Heizwärmebedarf (HWB) 191,64 kwh/m²a
Klasse Heizwärmebedarf (Klasse HWB) E
Externe ID MHI-2025-00279
Parkplatz
  • (Tief-)Garage (2)
  • Freiplatz (2)

Ausstattung:

  • icon Ausrichtung Balkon: Süden

Empfohlene Services unserer Partner

Objekt Beschreibung


Dieses massiv gebaute Einfamilienhaus aus dem Jahr 1962 bietet eine solide Grundlage und viel Platz für eine große Familie. Auf insgesamt fünf Schlafzimmern, zwei Bädern sowie einer großzügigen, modernen Küche mit Kamin finden alle Familienmitglieder Raum zum Leben und Wohlfühlen.

Einige Sanierungsarbeiten wurden schon durchgeführt: Küche, Bad, Kachelofen und die Fenster wurden zwischen 1996 und 2010 erneuert. Die Beheizung erfolgt derzeit über Öl und Holz; der gemütliche Kachelofen befindet sich in der Wand zwischen Küche und Wohnzimmer. Die Bausubstanz des Hauses ist in gutem Zustand – eine gute Basis für weitere Modernisierungsmaßnahmen.

Um das Haus an heutige Wohnansprüche anzupassen, bieten sich Sanierungen wie neue Fußböden, die Modernisierung des Badezimmers im Obergeschoss, der Austausch der Heizungsanlage sowie neue Rohrleitungen und ggf. eine energetische Dämmung an.

Der durchdachte Grundriss eignet sich ideal für eine große Familie oder für Wohnen und Arbeiten unter einem Dach. Das Haus ist – bis auf die angebaute Garage – vollständig unterkellert. Zusätzlich befindet sich eine Doppelgarage auf dem Grundstück. Beide Garagen sind aktuell vermietet, werden jedoch spätestens drei Monate nach Kaufvertragsabschluss frei.

Insgesamt bietet diese Immobilie ein solides Fundament, viel Entwicklungspotenzial und die Chance, ein großzügiges Zuhause ganz nach den eigenen Vorstellungen zu gestalten.

Lage:
Das Einfamilienhaus befindet sich in sonniger Lage auf einem wunderschön eingewachsenen Grundstück. Es steht zentral auf dem Grundstück und bietet zusätzliches Ausbau- bzw. Anbau-potenzial. Die ebene Gartenfläche ist ideal nach Süden ausgerichtet. Alter Baumbestand sorgt für angenehmen Schatten und schützt zugleich vor neugierigen Blicken. Die Zufahrt führt über eine Anliegerstraße von Norden auf das Grundstück. Ein gepflasterter Vorplatz bietet weitere Parkmöglichkeiten.

Im Süden grenzt ein weiteres Einfamilienhaus an, das den Übergang zum nahegelegenen Wald markiert. Die Lage ist ideal für Naturliebhaber: Von hier aus führen zahlreiche Wanderwege direkt in Richtung Buch oder entlang der Bregenzerach, und nach Bildstein– perfekt für Spaziergänger, Jogger oder Familien. Ideal ist der Standort auch für Hundehalter.

Ein Supermarkt sowie weitere Einkaufsmöglichkeiten liegen im nahegelegenen Ortszentrum und sind schnell erreichbar.

Wolfurt ist eine beliebte und dynamisch wachsende Wohngemeinde in direkter Nachbarschaft zu Bregenz und zählt rund 8.900 Einwohner. Familien profitieren von einer sehr guten Kinderbetreuung mit zehn Einrichtungen sowie einer Volks- und Mittelschule im Ort. Weiterführende Schulen befinden sich in den nahegelegenen Städten Bregenz und Dornbirn. https://kinder.wolfurt.at/kinderbetreuung

Auch die hervorragende Infrastruktur und der schnelle Autobahnanschluss machen Wolfurt zu einem äußerst attraktiven Wohnstandort.