FLEXIBEL
FINANZIEREN

Kreditbedarf
Eigenmittel
%
Jahre
Zins | Laufzeit
mtl. Rate
ländleimmo.at / Kaufobjekt / Haus / Allgemein / Vorarlberg / Dornbirn / Lustenau / Wohn- und Geschäftshaus mit viel Potenzial!

Wohn- und Geschäftshaus mit viel Potenzial!

images icon

5 Zimmer

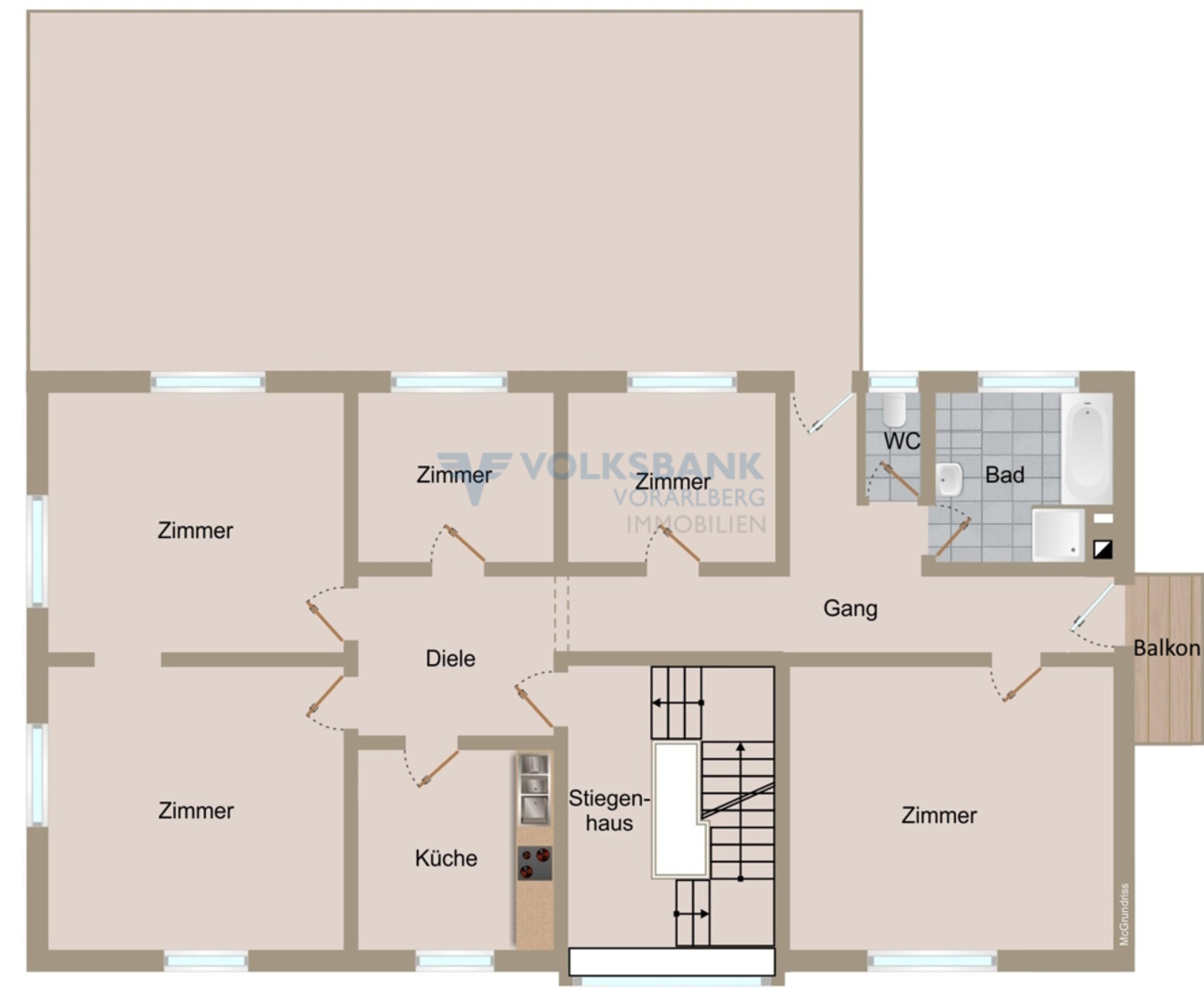
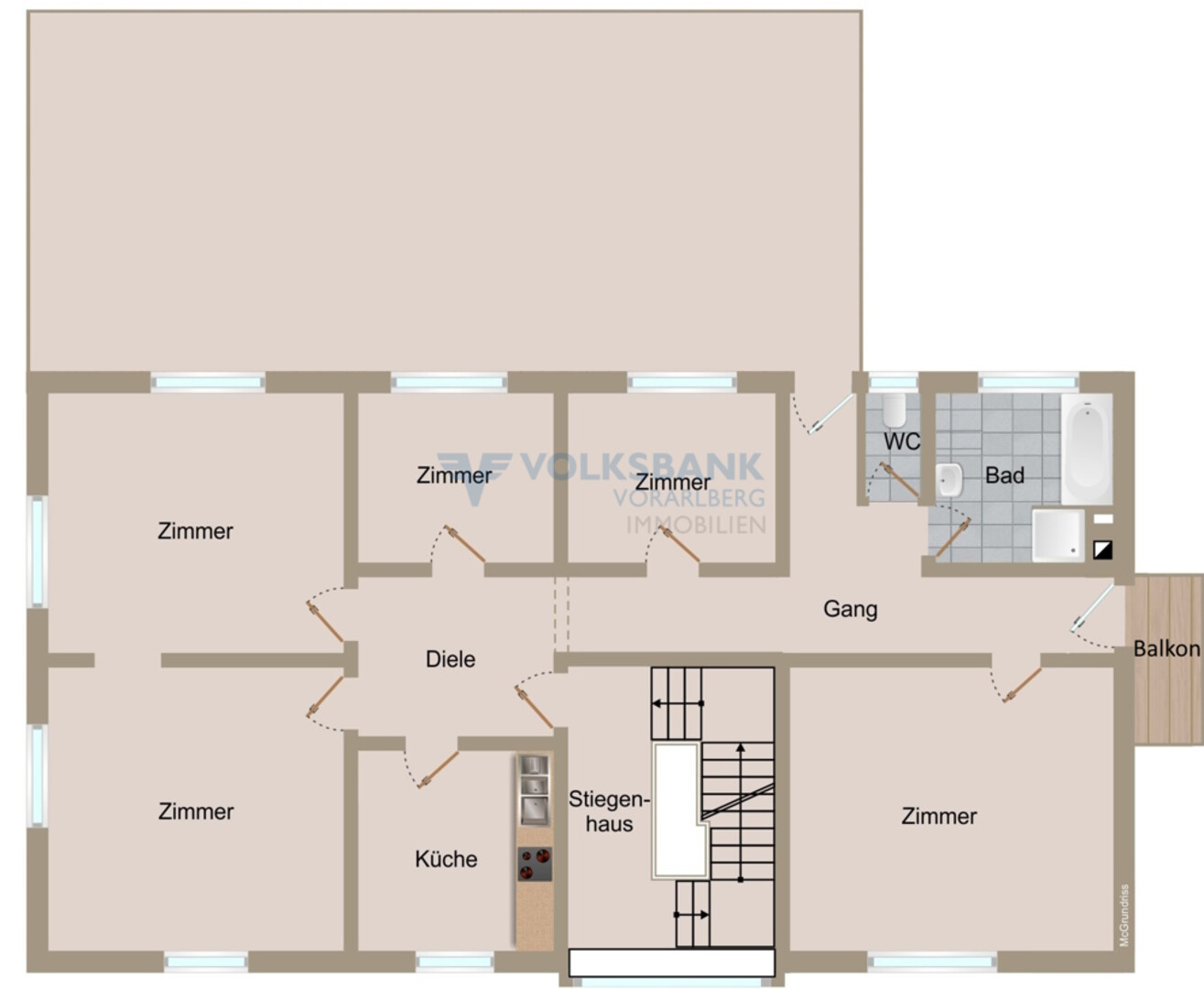
Grundriss

€ 787.000

Martin Zgubic

Volksbank Vorarlberg Immobilien GmbH & Co OG

Preise

Kaufpreis € 787.000
Provision 3,6% inkl. 20% USt.

Objekt Informationen

Zimmer 5
Objektart Haus
Objekttyp Allgemein
Badezimmer 1
Terrasse Vorhanden
Heizung
  • Öl
  • Zentralheizung
Verfügbar ab nach Vereinbarung
Externe ID Volksbank_3072

Empfohlene Services unserer Partner

Objekt Beschreibung


Dieses ehemalige Stickerei-Gebäude ist inzwischen ein Wohn- und Geschäftshaus und befindet sich in einer schöner Wohngegend von Lustenau. Es ist ein Traum für alle Handwerker und Renovierungsliebhaber.

Im Erdgeschoss ist eine vermietete Werkstatt, ehemalige Stickerei, untergebracht. Zudem befindet sich im Wohnhausteil eine Vorratskammer, Garage, Heizraum sowie der Öltankraum.

Im Obergeschoss sind gesamt 5 Zimmer sowie eine Wohnküche, ein Bad und ein Gäste-WC untergebracht. Des Weiteren ist ein Dachboden vorhanden.

Laut den vorliegenden Bauplänen sind folgende Geschossflächen vorhanden:
- Erdgeschoss ca. 165 m²
- Obergeschoss ca. 120 m²
- Dachboden ca. 120 m²

Der Energieausweis befindet sich in Arbeit.

Bei dem angegebenen Preis handelt es sich um einen Richtpreis, der in etwa dem möglichen zukünftigen Kaufpreis entsprechen kann.
Da der Preis vom Interessenten mit einem dafür ausgestellten Anbot definiert wird, kann er, abhängig von der jeweiligen Nachfrage, entweder unter, auf oder auch über dem Richtpreis zu liegen kommen. Die Zustimmung erfolgt zeitnah ausschließlich vom Abgeber durch Gegenzeichnung des Anbots.

Wir weisen Sie darauf hin, dass der angeführte Grundriss als Symbolbild gilt und dieser sowie die darin enthaltenen Flächenangaben von den tatsächlichen Gegebenheiten abweichen können.

Die Angaben beziehen sich auf die Auskünfte des Eigentümers.
Dieses Angebot ist freibleibend, Irrtum und Zwischenverkauf bleiben ausdrücklich vorbehalten.

Weiters weisen wir Sie auf Ihr Rücktrittsrecht gem. § 30 a Konsumentenschutzgesetz hin. Den genauen Wortlaut des § 15 Maklergesetzes und des § 30 a Konsumentenschutzgesetzes können Sie dem beiliegenden Merkblatt entnehmen.

Es besteht ein wirtschaftliches Naheverhältnis zur Volksbank Vorarlberg e. Gen.
Des Weiteren weisen wir ausdrücklich darauf hin, dass wir als Doppelmakler tätig sind. Wir glauben, Ihnen mit diesem Angebot ein interessantes Objekt namhaft gemacht zu haben.

Nebenkosten: 3,5% Grunderwerbssteuer, 1,1% Grundbuchseintragung, 3,6% Vermittlungshonorar inkl. 20 % MwSt., Vertragserrichtungskosten

Lage:
Mitten in einer schöner Wohngegend und umgeben von diversen Einrichtungen für den täglichen Bedarfs finden Sie diese Liegenschaft.

Ein breites Restaurantangebot, Lebensmittelgeschäfte, Apotheke, Ärzte, Volks- und Mittelschule sowie Kindergarten finden Sie alles in naher Umgebung.

Die Grenze zu der Schweiz erreichen Sie in Kürze, wie auch die Bushaltestellen "Gasthaus Engel" sowie "Holzstraße".

Der "Blaue Platz" und somit weitere Einrichtungen erreichen Sie gut zu Fuß oder bequem mit dem Rad.