ländleimmo.at
/
Kaufobjekt
/
Gewerbliche Immobilie
/
Lager / Werkstatt
/
Vorarlberg
/
Dornbirn
/ Dornbirn
/
Wohnen & Arbeiten direkt am Steinebach – Top-Objekt für Handwerksbetriebe in Dornbirn Oberdorf
Wohnen & Arbeiten direkt am Steinebach – Top-Objekt für Handwerksbetriebe in Dornbirn Oberdorf
N/A
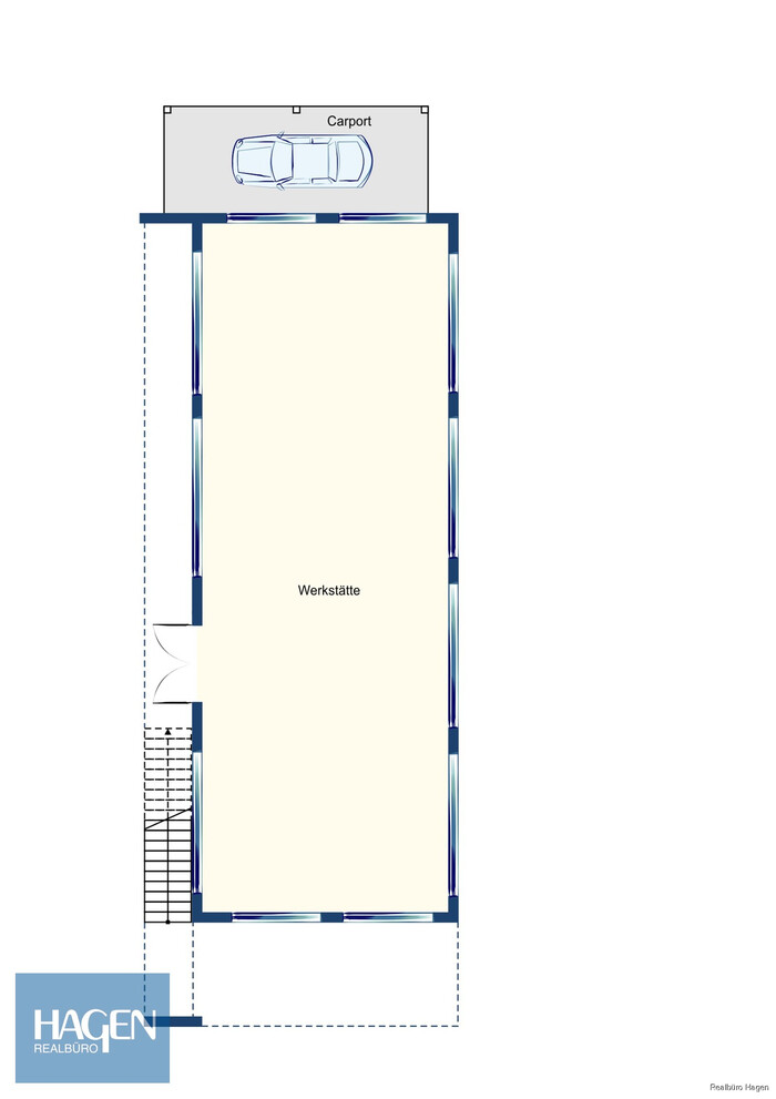
Grundriss
366,00 m²
Nutzfläche
Preis auf Anfrage
Preise
Preis auf Anfrage
Erklärung Kosten
1.190.000,00
Objekt Informationen
Nutzfläche
366,00 m²
Grundstücksgröße
1.275,00 m²
Objektart
Gewerblich
Objekttyp
Lager / Werkstatt
Heizung
- Öl
- Zentralheizung
Verfügbar ab
nach Vereinbarung
Externe ID
REALBURO_Hagen5578
Ausstattung:
-
Boden: Fliesen, Parkett
Empfohlene Services unserer Partner
Objekt Beschreibung
Wohnen & Arbeiten direkt am Steinebach – Top-Objekt für Handwerksbetriebe in Dornbirn Oberdorf
Ideale Kombination aus Gewerbefläche und moderner Wohnung in bester Lage!
In begehrter Lage von Dornbirn Oberdorf – direkt am idyllischen Steinebach – steht dieses vielseitige Wohn- und Gewerbeobjekt zum Verkauf. Die Immobilie bietet auf drei Ebenen ideale Voraussetzungen für Handwerksbetriebe wie Elektriker, Installateure oder kleine Unternehmen, die Wohnen und Arbeiten unter einem Dach verbinden möchten.
Das Objekt im Überblick:
Gewerbebereich – Erdgeschoss & Untergeschoss:
Zweigeschossige Gewerbefläche, jeweils ca. 120 m² pro Etage
EG: Werkhalle mit großem, doppelflügeligem Metalltor (ca. 3 m breit), Büroeinheit, WC und Waschgelegenheit, Raumhöhe ca. 3,1–3,3 m
UG: Lagerfläche, ebenerdig erreichbar, Küche, Aufenthaltsraum, säulenarm, Raumhöhe ca. 1,96–2,24 m
Großer befestigter Vorplatz – ideal für Anlieferung, Kundenparkplätze oder Materiallagerung
Genügend Außenstellplätze für Fuhrpark, Kundschaft oder Mitarbeiter
Wohnbereich – Obergeschoss:
Moderne, helle gut ausgestattete Wohnung mit ca. 126 m²
2 großzügige Terrassen mit ca. 20 m² & ca. 29 m²
Schwedenofen, großer Dachboden
Ruhige, grüne Lage – Wohnen mit hoher Lebensqualität
Separater Zugang zur Wohnung möglich – ideal für Betrieb + Privatsphäre
Zusätzliche Vorteile:
Direkt am Steinebach – attraktive Umgebung mit Naherholungswert
Ausbaumöglichkeiten im Gartenbereich – Platz für zusätzlichen Lagerraum, Carport oder Büro
Perfekt für Handwerksbetriebe mit Bedarf an kombinierter Nutzung
Carport mit ca. 21,90 m² inklusive
Nähe Zentrum Dornbirn-Stadt und zentralen Verkehrswegen
Hinweis: Am Heizraum sowie im Schopf besteht ein persönliches Gebrauchsrecht zum Abstellen zweier Mopeds sowie eines Traktors.
Kaufpreis: € 1.190.000,–
Energieausweis in Erstellung
Verfügbarkeit: nach Vereinbarung
Dann vereinbaren Sie doch einfach einen Termin mit uns – eine Besichtigung lohnt sich.
Das Realbüro Hagen-Team garantiert professionelle Beratung und völlige Unabhängigkeit.
Durch unsere ausgeprägte Kompetenz und langjährige Erfahrung versichern wir Ihnen eine problemlose und sorgenfreie Abwicklung bis zur Schlüsselübergabe und darüber hinaus.
Ihr Ansprechpartner:
Bernd Hagen (Tel. 05577/83 111) oder
Sonstige Auslagen:
3,5% Grunderwerbsteuer
1,1% Grundbucheintragungsgebühr
Vertragserrichtungskosten und Barauslagen
3% Vermittlungshonorar (+ 20% USt.) lt. empfohlener Geschäftsbedingungen der Bundesinnung gemäß § 10 IMV 1996, i.d.g.F.
Ideale Kombination aus Gewerbefläche und moderner Wohnung in bester Lage!
In begehrter Lage von Dornbirn Oberdorf – direkt am idyllischen Steinebach – steht dieses vielseitige Wohn- und Gewerbeobjekt zum Verkauf. Die Immobilie bietet auf drei Ebenen ideale Voraussetzungen für Handwerksbetriebe wie Elektriker, Installateure oder kleine Unternehmen, die Wohnen und Arbeiten unter einem Dach verbinden möchten.
Das Objekt im Überblick:
Gewerbebereich – Erdgeschoss & Untergeschoss:
Zweigeschossige Gewerbefläche, jeweils ca. 120 m² pro Etage
EG: Werkhalle mit großem, doppelflügeligem Metalltor (ca. 3 m breit), Büroeinheit, WC und Waschgelegenheit, Raumhöhe ca. 3,1–3,3 m
UG: Lagerfläche, ebenerdig erreichbar, Küche, Aufenthaltsraum, säulenarm, Raumhöhe ca. 1,96–2,24 m
Großer befestigter Vorplatz – ideal für Anlieferung, Kundenparkplätze oder Materiallagerung
Genügend Außenstellplätze für Fuhrpark, Kundschaft oder Mitarbeiter
Wohnbereich – Obergeschoss:
Moderne, helle gut ausgestattete Wohnung mit ca. 126 m²
2 großzügige Terrassen mit ca. 20 m² & ca. 29 m²
Schwedenofen, großer Dachboden
Ruhige, grüne Lage – Wohnen mit hoher Lebensqualität
Separater Zugang zur Wohnung möglich – ideal für Betrieb + Privatsphäre
Zusätzliche Vorteile:
Direkt am Steinebach – attraktive Umgebung mit Naherholungswert
Ausbaumöglichkeiten im Gartenbereich – Platz für zusätzlichen Lagerraum, Carport oder Büro
Perfekt für Handwerksbetriebe mit Bedarf an kombinierter Nutzung
Carport mit ca. 21,90 m² inklusive
Nähe Zentrum Dornbirn-Stadt und zentralen Verkehrswegen
Hinweis: Am Heizraum sowie im Schopf besteht ein persönliches Gebrauchsrecht zum Abstellen zweier Mopeds sowie eines Traktors.
Kaufpreis: € 1.190.000,–
Energieausweis in Erstellung
Verfügbarkeit: nach Vereinbarung
Einmalkosten / Nebenkosten
Haben wir Ihr Interesse geweckt?Dann vereinbaren Sie doch einfach einen Termin mit uns – eine Besichtigung lohnt sich.
Das Realbüro Hagen-Team garantiert professionelle Beratung und völlige Unabhängigkeit.
Durch unsere ausgeprägte Kompetenz und langjährige Erfahrung versichern wir Ihnen eine problemlose und sorgenfreie Abwicklung bis zur Schlüsselübergabe und darüber hinaus.
Ihr Ansprechpartner:
Bernd Hagen (Tel. 05577/83 111) oder
Sonstige Auslagen:
3,5% Grunderwerbsteuer
1,1% Grundbucheintragungsgebühr
Vertragserrichtungskosten und Barauslagen
3% Vermittlungshonorar (+ 20% USt.) lt. empfohlener Geschäftsbedingungen der Bundesinnung gemäß § 10 IMV 1996, i.d.g.F.