ländleimmo.at
/
Kaufobjekt
/
Gewerbliche Immobilie
/
Geschäftslokal
/
Vorarlberg
/
Bregenz
/ Hard
/
Starten Sie Ihr Business in Hard - attraktive Geschäftsfläche zu verkaufen
Starten Sie Ihr Business in Hard - attraktive Geschäftsfläche zu verkaufen
N/A
Grundriss
Preis auf Anfrage
Preise
Preis auf Anfrage
Betriebskosten (exkl. Mwst)
€ 430
Objekt Informationen
Etage
EG
Baujahr
1980
Objektart
Gewerblich
Objekttyp
Geschäftslokal
Verfügbar ab
Nach Absprache
Heizwärmebedarf (HWB)
198,00 kwh/m²a
Klasse Heizwärmebedarf (Klasse HWB)
E
Externe ID
GreilWoelfel_387352_1057
Ausstattung:
-
Gäste-WC
-
Klimatisiert
Empfohlene Services unserer Partner
Objekt Beschreibung
Willkommen in Hard: Gewerbefläche zu kaufen
Ob für Handel, Büro oder eine Praxis, dieses Objekt bietet eine Vielzahl an Möglichkeiten.
Die Räumlichkeiten wurden 2023 aufwändig renoviert und modernisiert.
Factbox:
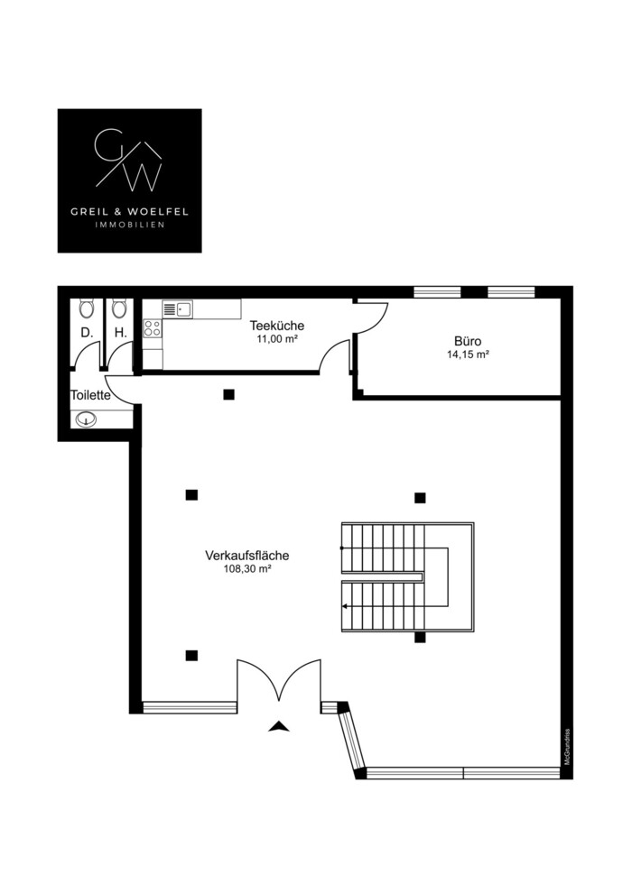
- Fläche Erdgeschoss ca. 138,68 m²
- Fläche Untergeschoss ca. 122,70 m²
- Lagerfläche ca. 26,65 m²
- Parkplätze vor dem Geschäft vorhanden
- WC für Gäste (Barrierefrei)
- zentrale Lage in Hard
- gute Infrastruktur
Betriebskosten: € 429,34 zzgl. € 214,47 Rep.Fonds Anteil
für eine Nutzfläche von ca. 261,38 m² + Lager
Vereinbaren Sie noch heute Ihren persönlichen Besichtigungstermin
Willkommen Zuhause
Nebenkostenübersicht:
3,5 % Grunderwerbssteuer
1,1 % Grundbuchseintragung
1 % zzgl. MWSt. Vertragserrichtungskosten
3 % zzgl. MWSt. MaklerprovisionVereinbaren Sie noch heute Ihren persönlichen Besichtigungstermin.
Ihr Ansprechpartner:
Philipp Wölfel
T: 05-15 | M: 0
E:
Ob für Handel, Büro oder eine Praxis, dieses Objekt bietet eine Vielzahl an Möglichkeiten.
Die Räumlichkeiten wurden 2023 aufwändig renoviert und modernisiert.
Factbox:
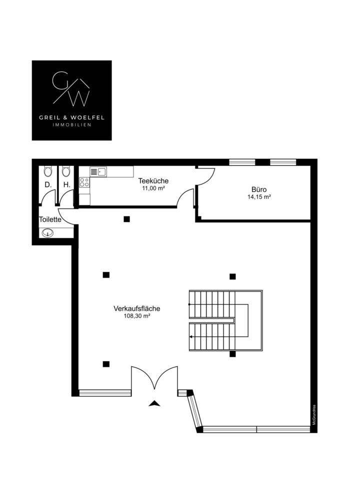
- Fläche Erdgeschoss ca. 138,68 m²
- Fläche Untergeschoss ca. 122,70 m²
- Lagerfläche ca. 26,65 m²
- Parkplätze vor dem Geschäft vorhanden
- WC für Gäste (Barrierefrei)
- zentrale Lage in Hard
- gute Infrastruktur
Betriebskosten: € 429,34 zzgl. € 214,47 Rep.Fonds Anteil
für eine Nutzfläche von ca. 261,38 m² + Lager
Vereinbaren Sie noch heute Ihren persönlichen Besichtigungstermin
Willkommen Zuhause
Nebenkostenübersicht:
3,5 % Grunderwerbssteuer
1,1 % Grundbuchseintragung
1 % zzgl. MWSt. Vertragserrichtungskosten
3 % zzgl. MWSt. MaklerprovisionVereinbaren Sie noch heute Ihren persönlichen Besichtigungstermin.
Ihr Ansprechpartner:
Philipp Wölfel
T: 05-15 | M: 0
E: