ländleimmo.at / Mietobjekt / Gewerbliche Immobilie / Geschäftslokal / Vorarlberg / Bludenz / Bludenz / Erfolgreich eröffnen in bester Lage | Kronenhaus | Bludenz

Erfolgreich eröffnen in bester Lage | Kronenhaus | Bludenz

images icon

N/A

Grundriss

images icon

1.215,00 m²

Nutzfläche

Preis auf Anfrage

Preise

Preis auf Anfrage
Kaution 3BMM

Objekt Informationen

Nutzfläche 1.215,00 m²
Objektart Gewerblich
Objekttyp Geschäftslokal
Verfügbar ab 2024
Externe ID Agentur_3149

Ausstattung:

  • icon Lift

Empfohlene Services unserer Partner

Objekt Beschreibung


Store Option | Kronenhaus Bludenz

Die Geschäftsfläche befindet sich im Top Geschäftshaus in bester Lage innerhalb der Bludenzer Fußgängerzone mit sehr guter Kundenfrequenz. Das neuwertige Objekt zeichnet sich durch seine hervoraggende Architektur aus und ist somit die moderne Verbindung zur historichen Altstadt.

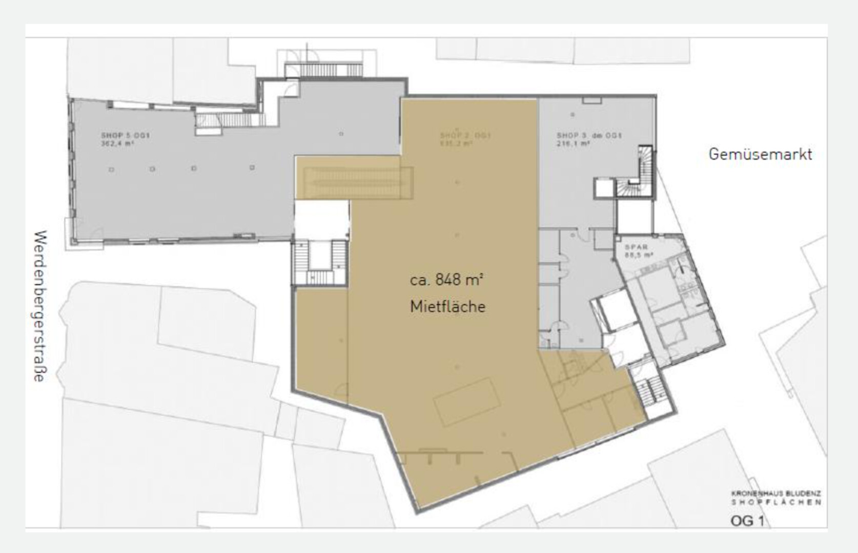
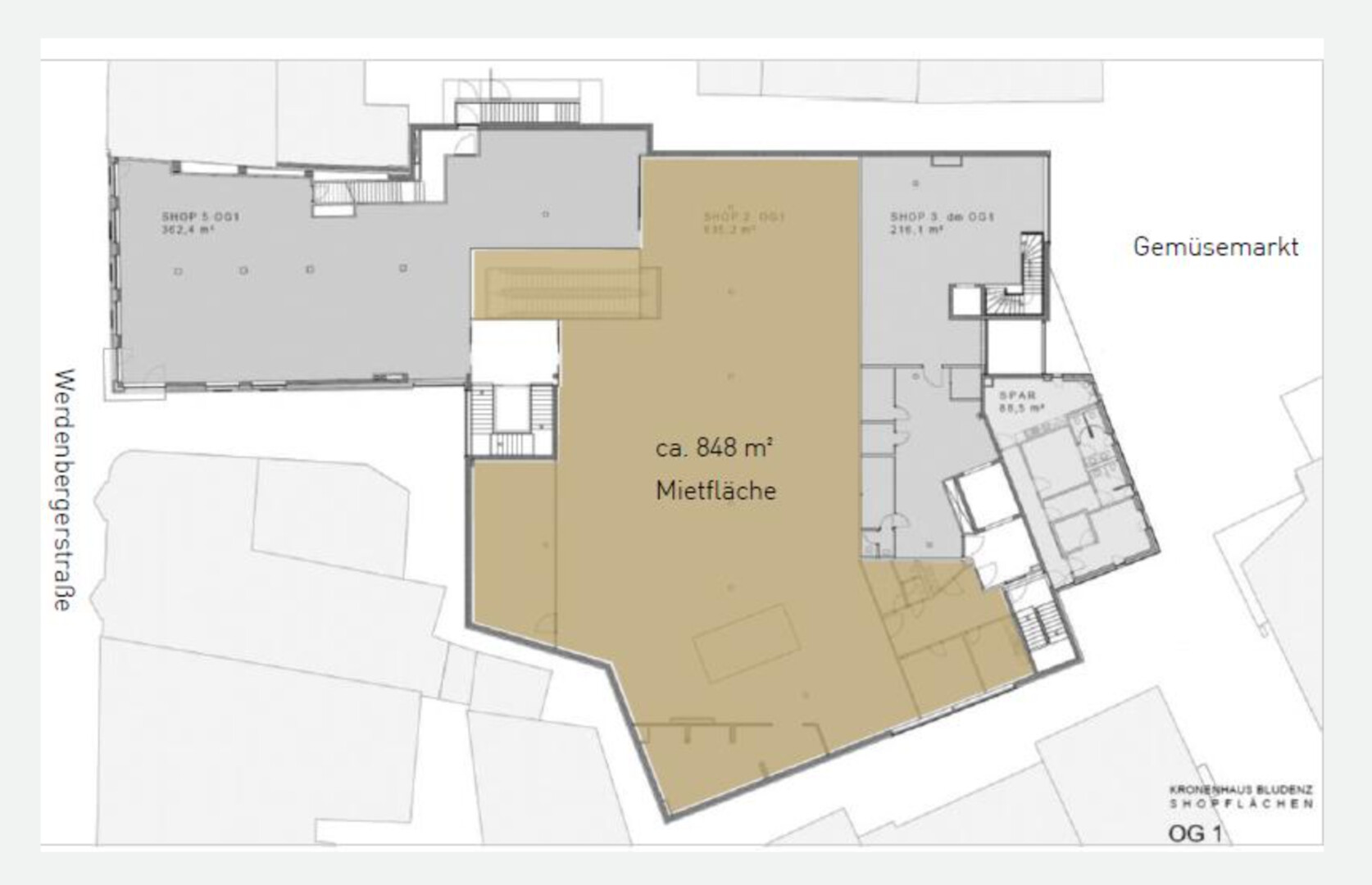
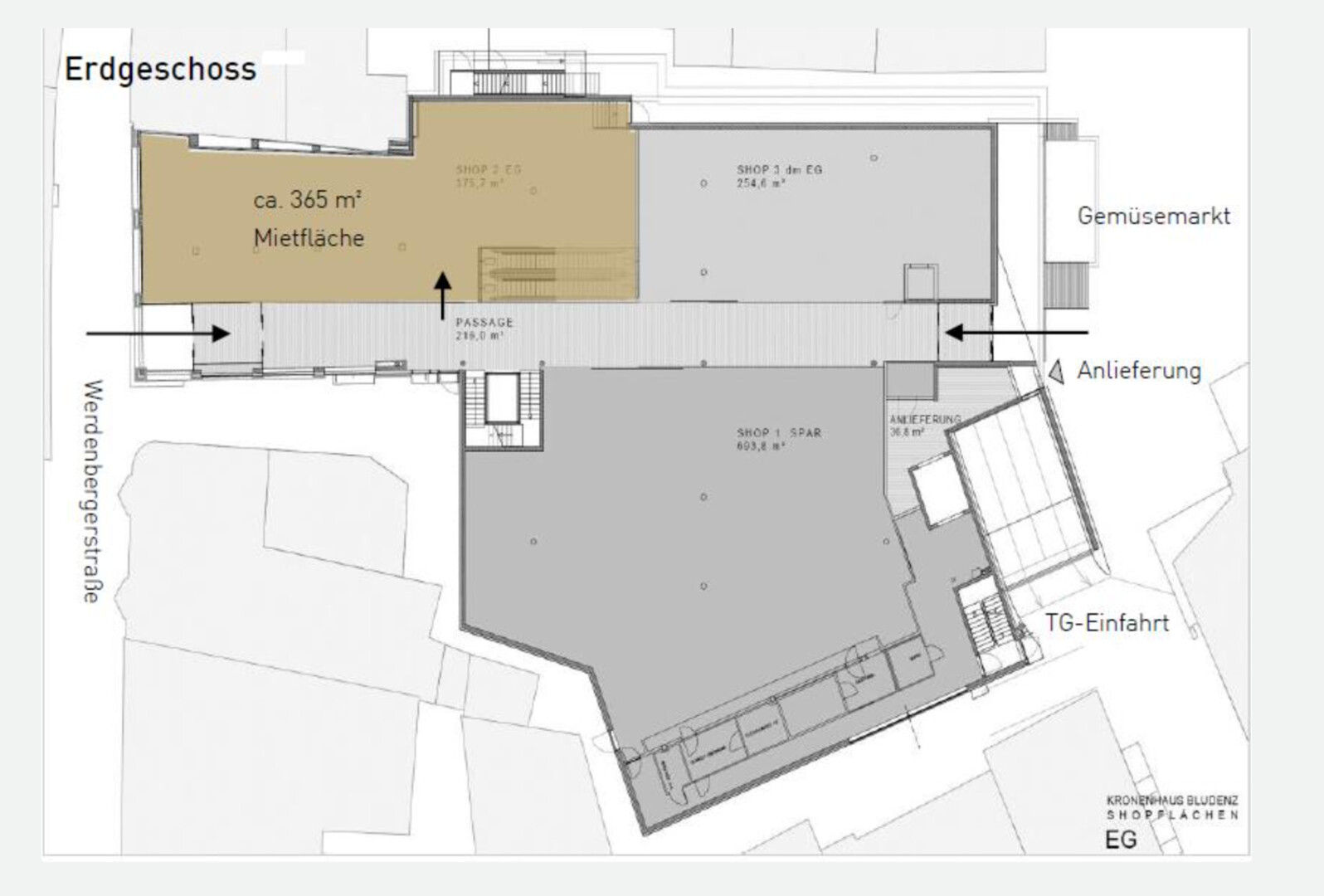
Gesamtfläche: rd. 1.215 m²
Fläche Erdgeschoss: rd. 364 m²
Fläche Obergeschoss: rd. 848 m²

Übergabe Zustand: Wie es liegt und steht
Kaution: 3 Bruttomonatsmieten zzgl. Ust.
Vertragslaufzeit: 7 Jahre
Option: verhandelbar

Vergebührung: Kosten trägt der Mieter
Indexierung: VPI 2010, 100% pa

Falls Sie an dieser tollen Geschäftsfläche Interesse haben, melden und überzeugen Sie sich doch mittels eines Besichtigungstermines!


Einmalkosten:
Finanzamtgebühr
Kaution: 3 BMM
Maklerhonorar: 3 BMM zzgl. MwSt

Im Falle der Anmietung beträgt unser Vermittlungshonorar 3 Bruttomonatsmieten zuzüglich 20% Umsatzsteuer. Abweichende Provisions-Vereinbarungen bedürfen der Schriftform.


Alle Angaben nach bestem Wissen. Irrtum und Zwischenverkauf vorbehalten. Dieses Expose ist eine Vorinformation, als Rechtsgrundlage gilt alleine der abgeschlossene Kaufvertrag. §15 der Maklerverordnung gilt als vereinbart.