ländleimmo.at / Mietobjekt / Gewerbliche Immobilie / Büro / Ordination / Vorarlberg / Feldkirch / Rankweil / Büro/Praxis in Rankweil - Top Lage, Klimaanlage, Aufzug & Parkplatz!

Büro/Praxis in Rankweil - Top Lage, Klimaanlage, Aufzug & Parkplatz!

images icon

1,5 Zimmer

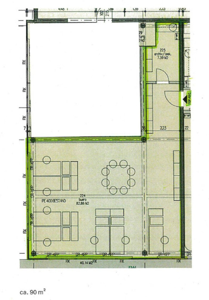
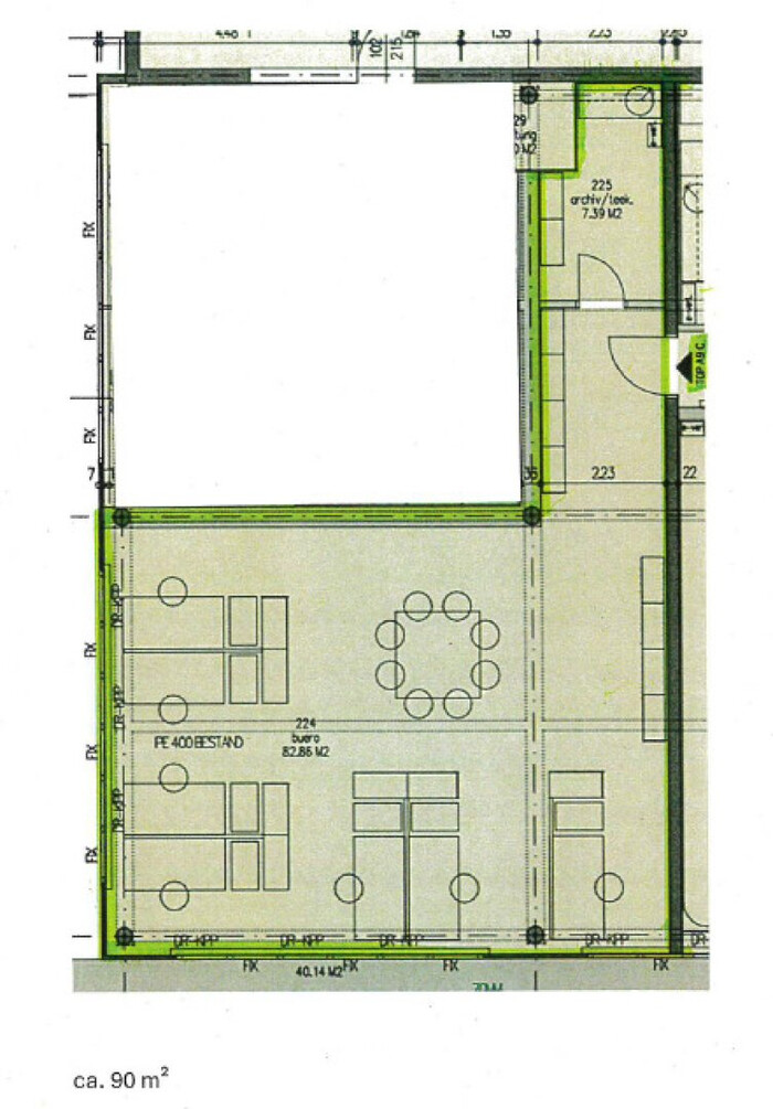
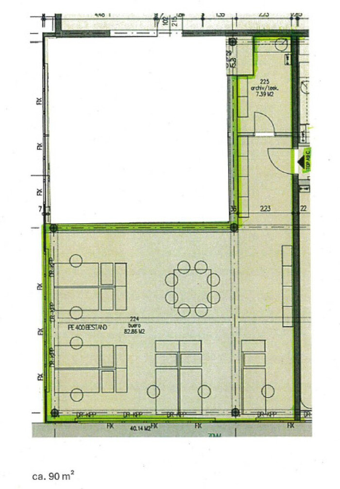
Grundriss

images icon

90,00 m²

Nutzfläche

€ 1.700

Marlies Vögel

V-Immobilien

Preise

Gesamtmiete (exkl. MwSt.) € 1.700
Einmalkosten Provisionspflichtig
Provision 2 Bruttomonatsmieten zzgl. 20% USt.

Objekt Informationen

Nutzfläche 90,00 m²
Zimmer 1,5
Etage 2
Baujahr 1990
Objektart Gewerblich
Objekttyp Büro / Ordination
Heizung
  • Gas
  • Zentralheizung
Verfügbar ab ab sofort
Heizwärmebedarf (HWB) 27 kwh/m²a
Klasse Heizwärmebedarf (Klasse HWB) B
Gesamtenergieeffizienz-Faktor (fGEE) 1,1 kwh/m²a
Klasse Gesamtenergieeffizienz-Faktor (Klasse fGEE) C
Externe ID justimmo_370703_1602/56
Parkplatz
  • Freiplatz

Ausstattung:

  • icon Teeküche
  • icon Boden: Teppichboden
  • icon Bad mit: Pissoir
  • icon Lift
  • icon Barrierefrei
  • icon Klimatisiert

Empfohlene Services unserer Partner

Objekt Beschreibung


Willkommen in Ihrem neuen Büro oder Ihrer neuen Praxis in Rankweil, einem der charmantesten Orte in Vorarlberg! Diese attraktive Immobilie in der 2. Etage bietet Ihnen nicht nur ein modernes Arbeitsumfeld, sondern auch einen atemberaubenden Fernblick, der Ihre Kreativität anregen und Ihnen täglich neue Inspiration schenken wird.

Mit einem großzügigen Raum, der sich perfekt für Ihre individuellen Bedürfnisse anpassen lässt, haben Sie die Freiheit, Ihre Visionen zu verwirklichen. Der hochwertige Teppichboden sorgt für ein angenehmes Ambiente, während die zentrale Gasheizung und die Klimaanlage das ganze Jahr über für ein optimales Raumklima garantieren.

Die funktionale Teeküche bietet Ihnen die Möglichkeit, sich während Ihrer Arbeitspausen schnell und bequem zu verpflegen, während das Pissoir für zusätzliche Bequemlichkeit sorgt.

Ein weiterer Pluspunkt dieser Immobilie ist der komfortable Personenaufzug, der Ihnen und Ihren Kunden den Zugang erleichtert. Und für Ihre Fahrzeuge steht Ihnen ein Parkplatz zur Verfügung, was den Besuch für Ihre Klienten noch einfacher macht.

Die Verkehrsanbindung könnte nicht besser sein. Mit der Nähe zu Buslinien und einem schnellen Autobahnanschluss sind Sie sowohl lokal als auch überregional bestens erreichbar.

Nutzen Sie die Chance, in dieser hervorragenden Lage Fuß zu fassen und Ihre Geschäftsideen zum Leben zu erwecken. Ob als Büro oder Praxis – dieses Objekt bietet Ihnen die perfekte Grundlage für Ihren Erfolg. Zögern Sie nicht und vereinbaren Sie noch heute einen Besichtigungstermin! Ihr neues Geschäftsumfeld wartet auf Sie!

Der Vermittler ist als Doppelmakler tätig.


Infrastruktur / Entfernungen

Gesundheit
Arzt <1.500m
Apotheke <1.500m
Krankenhaus <2.500m

Kinder & Schulen
Schule <1.000m
Kindergarten <500m
Höhere Schule <2.500m
Universität <5.000m

Nahversorgung
Supermarkt <500m
Bäckerei <1.000m
Einkaufszentrum <1.000m

Sonstige
Bank <1.500m
Geldautomat <1.500m
Post <1.500m
Polizei <1.500m

Verkehr
Bus <500m
Bahnhof <1.500m
Autobahnanschluss <500m

Angaben Entfernung Luftlinie / Quelle: OpenStreetMap



Lage:
Die attraktive Büro- bzw. Praxisfläche in 6830 Rankweil überzeugt durch ihre hervorragende Lage. In unmittelbarer Nähe finden Sie Einkaufszentrum, die den Alltag Ihrer Klienten und Mitarbeiter erleichtern. Supermärkte und Bäckereien sind ebenfalls schnell erreichbar. Die Anbindung an öffentliche Verkehrsmittel sowie der nahe Autobahnanschluss sorgen für eine optimale Erreichbarkeit und machen diese Immobilie zur idealen Wahl für Ihr Unternehmen.