ländleimmo.at
/
Mietobjekt
/
Gewerbliche Immobilie
/
Büro / Ordination
/
Vorarlberg
/
Dornbirn
/ Dornbirn
/
Exklusive Gewerbefläche im historischen Gebäude in Zentrumsnähe in Dornbirn zu vermieten
Exklusive Gewerbefläche im historischen Gebäude in Zentrumsnähe in Dornbirn zu vermieten
6 Zimmer
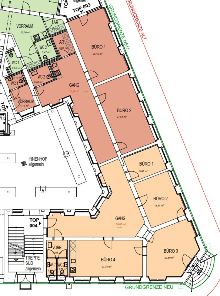
Grundriss
€ 3.721,42
Preise
Gesamtmiete (exkl. MwSt.)
Gesamtbelastung (Miete + Betriebskosten + Sonstige Kosten) abzüglich Heizkosten und MwSt.
€ 3.721,42
Betriebskosten (exkl. Mwst)
€ 817,82
Kaution
3 Bruttomonatsmieten inkl. BK € 11.170,00
Einmalkosten
z.B. Vertragserrichtungsgebühr
2 Nettomonatsmieten inkl. BK zzgl. 20% Mwst. € 7.769,00
Provision
2 Nettomonatsmieten inkl. BK zzgl. 20% Mwst. € 7.769,00
Erklärung Kosten
Vergebührung Finanzamt: Höhe hängt von Vertragsdauer ab
Objekt Informationen
Zimmer
6
Etage
EG
Baujahr
1905
Bauweise
- Massiv
Objektart
Gewerblich
Objekttyp
Büro / Ordination
Keller
19,73 m²
Abstellraum
Vorhanden
Heizung
- Fernwärme
Verfügbar ab
nach Vereinbarung
Heizwärmebedarf (HWB)
51,00 kwh/m²a
Klasse Heizwärmebedarf (Klasse HWB)
C
Gesamtenergieeffizienz-Faktor (fGEE)
1,06 kwh/m²a
Klasse Gesamtenergieeffizienz-Faktor (Klasse fGEE)
C
Externe ID
BB-26-01134
Ausstattung:
-
Einbauküche
-
Bad mit: Fenster
-
Lift
Empfohlene Services unserer Partner
Objekt Beschreibung
Entdecken Sie Ihre neue Gewerbefläche im Herzen von Dornbirn! Diese vielseitige Immobilie besticht durch ihre großzügige Raumaufteilung und flexible Nutzungsmöglichkeiten. Die gesamte Bürofläche umfasst sechs individuell gestaltbare Räume, die aktuell zu einer großen Fläche zusammengelegt sind. Auf Wunsch können diese separiert werden, um den individuellen Anforderungen Ihres Unternehmens gerecht zu werden.
Ihre Mitarbeiter und Kunden profitieren von insgesamt vier modern ausgestatteten WCs sowie zwei benutzerfreundlichen Einbauküchen. Zusätzlich steht Ihnen ein praktischer Abstellraum zur Verfügung, der für Stauraum sorgt.
Interessenten erwarten lichtdurchflutete Räumlichkeiten, die eine produktive Arbeitsatmosphäre schaffen. Ein geräumiger Keller ist ebenfalls Teil des Angebots und bietet weiteren Stauraum oder Nutzungsmöglichkeiten.
Die Lage ist hervorragend: Nur fünf Minuten vom Stadtzentrum entfernt, mit einer Bushaltestelle, die in wenigen Gehminuten erreichbar ist. Parkplätze stehen in der Umgebung zur Verfügung.
Die Gewerbefläche bietet eine ideale Mischung aus zentraler Lage und ruhiger Arbeitsatmosphäre.
Der Bezug der Immobilie ist flexibel und kann nach Vereinbarung erfolgen. Nutzen Sie diese einmalige Möglichkeit, Ihr Unternehmen in den Räumlichkeiten von Dornbirn weiterzuentwickeln.
Kontaktieren Sie uns noch heute, um weitere Informationen zu erhalten oder einen Besichtigungstermin zu vereinbaren.
Ihre Mitarbeiter und Kunden profitieren von insgesamt vier modern ausgestatteten WCs sowie zwei benutzerfreundlichen Einbauküchen. Zusätzlich steht Ihnen ein praktischer Abstellraum zur Verfügung, der für Stauraum sorgt.
Interessenten erwarten lichtdurchflutete Räumlichkeiten, die eine produktive Arbeitsatmosphäre schaffen. Ein geräumiger Keller ist ebenfalls Teil des Angebots und bietet weiteren Stauraum oder Nutzungsmöglichkeiten.
Die Lage ist hervorragend: Nur fünf Minuten vom Stadtzentrum entfernt, mit einer Bushaltestelle, die in wenigen Gehminuten erreichbar ist. Parkplätze stehen in der Umgebung zur Verfügung.
Die Gewerbefläche bietet eine ideale Mischung aus zentraler Lage und ruhiger Arbeitsatmosphäre.
Der Bezug der Immobilie ist flexibel und kann nach Vereinbarung erfolgen. Nutzen Sie diese einmalige Möglichkeit, Ihr Unternehmen in den Räumlichkeiten von Dornbirn weiterzuentwickeln.
Kontaktieren Sie uns noch heute, um weitere Informationen zu erhalten oder einen Besichtigungstermin zu vereinbaren.