FLEXIBEL
FINANZIEREN

Kreditbedarf
Eigenmittel
%
Jahre
Zins | Laufzeit
mtl. Rate
ländleimmo.at / Kaufobjekt / Gewerbliche Immobilie / Büro / Ordination / Vorarlberg / Dornbirn / Lustenau / Lustenau | Top ausgestattete Bürofläche | Kapitalanlage & Arbeitsplatz vereint

Lustenau | Top ausgestattete Bürofläche | Kapitalanlage & Arbeitsplatz vereint

images icon

N/A

Grundriss

images icon

253,25 m²

Nutzfläche

€ 743.000

Christian Fink

WÄLDERIMMO GmbH

Preise

Kaufpreis € 743.000
Einmalkosten 3% des Kaufpreises zzgl. 20% USt.

Objekt Informationen

Nutzfläche 253,25 m²
Etage EG
Baujahr 2000
Bauweise
  • Massiv
Objektart Gewerblich
Objekttyp Büro / Ordination
Heizung
  • Gas
Gesamtanzahl Stellplätze 6
Heizwärmebedarf (HWB) 69 kwh/m²a
Klasse Heizwärmebedarf (Klasse HWB) C
Gesamtenergieeffizienz-Faktor (fGEE) 1,07 kwh/m²a
Klasse Gesamtenergieeffizienz-Faktor (Klasse fGEE) C
Externe ID justimmo_363501_665
Parkplatz
  • (Tief-)Garage
  • Freiplatz (6)

Ausstattung:

  • icon Lift

Empfohlene Services unserer Partner

Objekt Beschreibung

Lustenau | Top ausgestattete Bürofläche | Kapitalanlage & Arbeitsplatz vereint

Lage

Die FABRIK Lustenau liegt an der Rheinstraße 27 im Ortsteil Rheindorf, einer angenehm ruhigen und gleichzeitig hervorragend erreichbaren Lage. In direkter Umgebung befinden sich Bushaltestellen, Einkaufsmöglichkeiten, Gastronomie, der Bahnhof „Lustenau Markt“ sowie diverse Dienstleister. Auch die Anbindung an die Schweiz und die Rheintalautobahn ist ideal.   

Das architektonisch markante Ensemble verbindet historischen Charme mit moderner Funktionalität. Die lichtdurchflutete Bauweise, eine zentrale Lichtkuppel im Stiegenhaus sowie die großzügige Verglasung sorgen für helle, inspirierende Arbeitsräume. Der gepflegte Standort bietet eine repräsentative Umgebung für unterschiedlichste Unternehmensbereiche.  

   

Immobilie

Zum Verkauf steht eine vielseitig nutzbare Büroeinheit mit rund 253,25 m² Bürofläche auf einer Ebenen, einem zusätzlichen Lagerraum mit 18 m² im Untergeschoss und 6 KFZ-Stellplätze in der Tiefgarage.

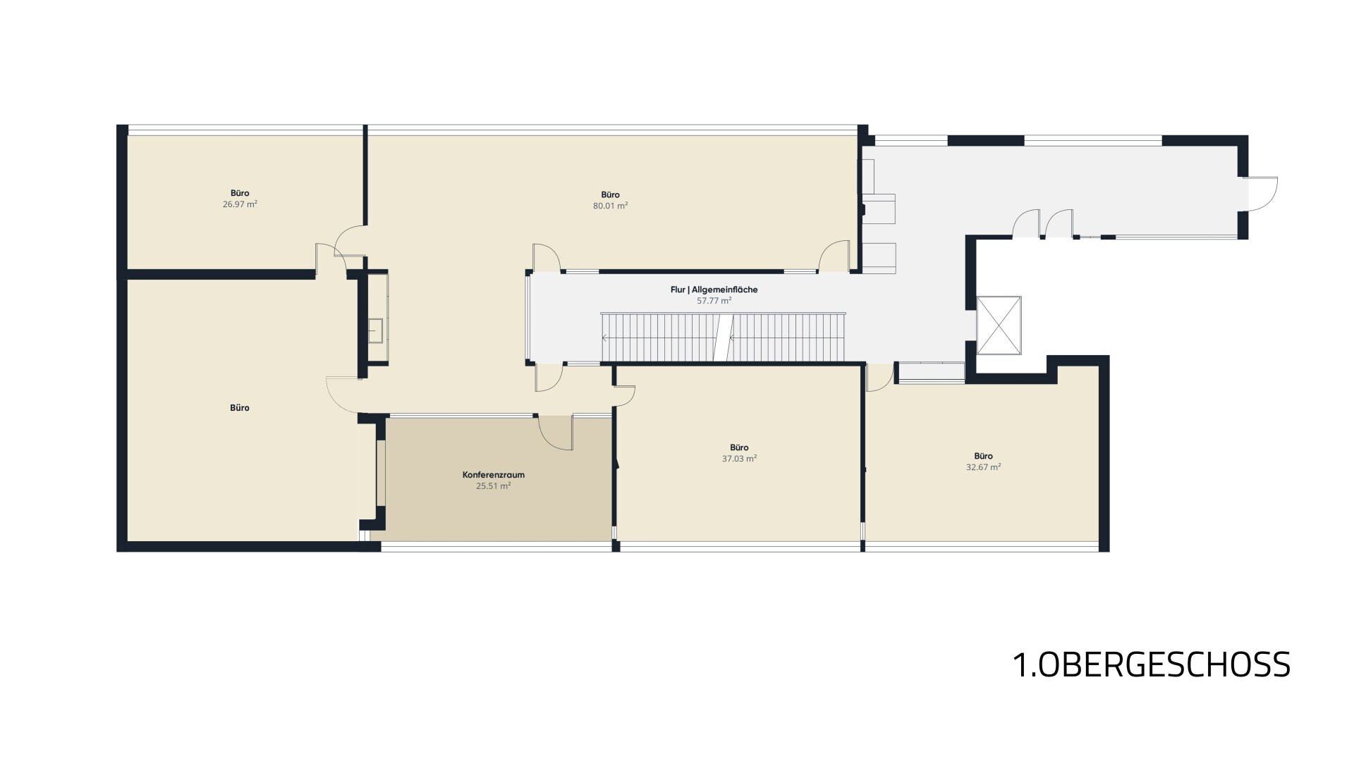
Die Büroeinheiten befinden sich im 1.  Obergeschoss der FABRIK Rheinstraße 27 und sind aktuell zum großen Teil vermietet.

 

Im 1. Obergeschoss ist das Freiraumbüro untergebracht. Dies ist ein durchdachtes Konzept für kleine Unternehmen, Selbstständige und kreative Köpfe. Die Fläche umfasst drei Einzelbüros sowie sechs Arbeitsplätze im offenen Großraumbereich. Die Vermietung der Schreibtische/Büros erfolgt auf drei Jahre mit monatlicher Kündigungsmöglichkeit.

 

Ausstattungsdetails im 1. Obergeschoss:

  • Höhenverstellbare Schreibtische 

  • Klimaanlage 

  • Beleuchtung von Zumtobel

  • Gemeinschaftsküche mit Stauraum und Ausstattung

  • Teppichböden, Vorhänge und akustische Schallschutzelemente

  • Zugang und Nutzung von WLAN, Drucker, Scanner, Konferenzraum

  • Großzügige Allgemeinflächen mit getrennten Sanitäranlagen, Sitzmöbelnischen und Cafeteria

 

 

Nutzung

Die Immobilie eignet sich sowohl als Investmentobjekt mit attraktiver Teilvermietung als auch zur Eigen- oder gemischten Nutzung. Dank der modularen Raumgestaltung und flexiblen Trennwände lassen sich vielfältige Raumkonzepte umsetzen. Vom klassischen Büro bis zum Co-Working-Modell.

 

Ausstattung im Überblick

  • Klimaanlage in allen Räumen

  • Moderne Beleuchtung (Zumtobel)

  • Teppichböden & akustische Elemente

  • Höhenverstellbare Arbeitsplätze & Konferenztisch

  • Gemeinschaftsküche im 1. OG 

  • Konferenzraum 

  • WLAN, Scanner, Drucker (für Freiraumbüro nutzbar)

  • Lagerräume im Untergeschoss

  • 6 Tiefgaragenplätze

  • Lift, barrierefreier Zugang

  • Lichtkuppel im Treppenhaus, viel Glas, helle Räume

Attraktive Kapitalanlage mit Entwicklungspotenzial

Die Büroeinheiten in der FABRIK Lustenau erwirtschaften derzeit einen jährlichen Nettomietertrag von rund 43.000 € bei zusätzlich rund 13.000 € an Betriebskosten. Beim aktuellen Kaufpreis von 1.950.000 € ergibt sich daraus eine Bruttomietrendite von ca. 5 %, was dieses Objekt im aktuellen Marktumfeld zu einer sehr attraktiven Anlagemöglichkeit macht.

Der Mieter-Mix umfasst solide Unternehmen aus den Bereichen Medizintechnik, Design, Digitalisierung und Coaching. Zusätzlich bietet das flexibel nutzbare Freiraumbüro mit Co-Working-Struktur langfristige Mieteinnahmen bei gleichzeitig monatlicher Kündbarkeit. Die Mieten liegen je nach Einheit zwischen 11,90 €/m² und 14,13 €/m² netto, das Umfeld ist gepflegt und infrastrukturell bestens erschlossen. Die hochwertige Ausstattung, inklusive Klimatisierung, Schallschutz, moderner Netzwerktechnik und 6 Tiefgaragenplätzen rundet dieses nachhaltige Investmentpaket ab.

Kaufpreis

Bürofläche auf 2 Etagen 253 m² 743.000 €
PKW-Stellplatz Tiefgarage 22.000 €
5 Stk. PKW Stellplätze 110.000 €
   
Gesamtpreis zzgl. Nebenkosten  875.000 €

 

Noch nichts gefunden? Wir informieren Sie über geeignete Immobilienangebote noch vor allen anderen.
Legen Sie jetzt Ihren individuellen Suchagenten unter folgendem Link an. Wir schicken Ihnen passende Immobilien exklusiv vorab zu.
Suchagent anlegen - https://waelderimmo.service.immo/registrieren/de

Der Vermittler ist als Doppelmakler tätig.



Lage:

YouTube Video

Stimme unseren Cookie-Richtlinien (Marketing) zu, um dieses Video sehen zu können Zustimmung geben