1 Ergebnisse gefunden für Mieten, Wohnung, Terrassenwohnung in Viktorsberg

Diese Objekte könnten Sie auch interessieren:

€ 1.174
Wunderbare 3-Zimmerwohnung mit Balkon in Rankweil-Brederis zu vermieten!
€ 1.200
Wohnen mit Charme: Tolle 3-Zimmerwohnung mit Wintergarten in Weiler zu vermieten!
€ 1.310
Moderne 2-Zimmer-Terrassenwohnung in Neubau mit Garagenplatz
€ 1.057

63 m2  

€ 1.250
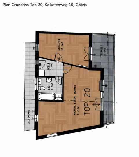
Entzückende 2-Zimmer-Terrassenwohnung in Götzis zu vermieten!
€ 1.049
€ 1.590
Batschuns: 3-Zimmerwohnung mit herrlichem Ausblick
€ 1.060
Terrassentraum in Feldkirch-Tisis – 3-Zimmer-Wohnung mit Bergblick
€ 1.695
Weitere Angebote für Mieten, Wohnung, Terrassenwohnung in Viktorsberg
Noch keine passende Immobilie gefunden?

Mit dem ländleimmo.at Suchagenten erhältst du neue Immobilien basierend auf dieser Suche direkt in deinem E-Mail-Postfach.

Erfahre als Erste/r von neuen Angeboten auf ländleimmo.at