ländleimmo.at / Mietobjekt / Wohnung / Zimmer / WG / Vorarlberg / Dornbirn / Hohenems / Zimmer mit eigenem Bad

Zimmer mit eigenem Bad

images icon

1 Zimmer

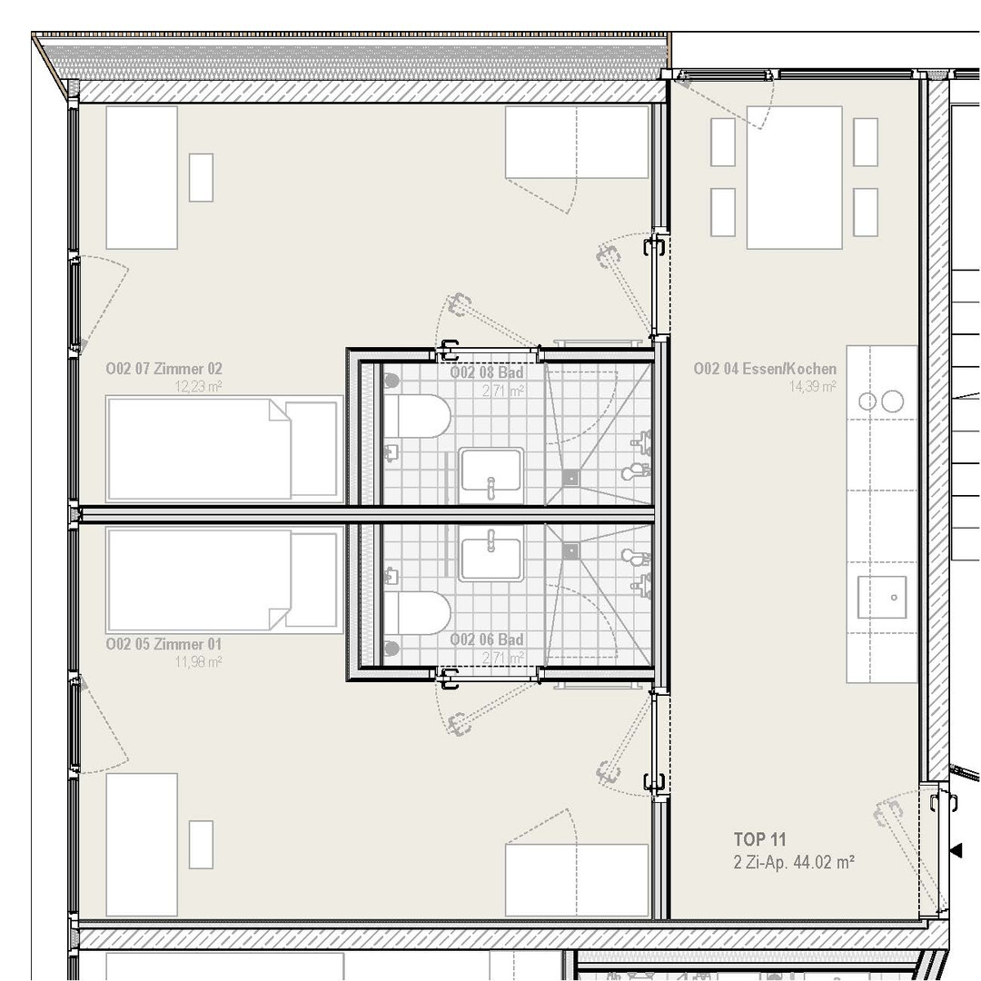
Grundriss

images icon

12,23 m²

Wohnfläche

€ 570

Preise

Gesamtbelastung € 570
Kaution € 1.680

Objekt Informationen

Wohnfläche 12,23 m²
Zimmer 1
Bautyp Gebraucht
Baujahr 2019
Objektart Wohnung
Objekttyp Zimmer / WG
Badezimmer 1
Terrasse Vorhanden
Verfügbar ab 2026-02-01
Heizwärmebedarf (HWB) 25,0 kwh/m²a
Klasse Heizwärmebedarf (Klasse HWB) 25.0
Gesamtenergieeffizienz-Faktor (fGEE) 0,76 kwh/m²a
Klasse Gesamtenergieeffizienz-Faktor (Klasse fGEE) 0.76
Externe ID raumgut_raumgut-366

Empfohlene Services unserer Partner

Objekt Beschreibung

Das 2019 fertiggestellte Studenten- und Apartmenthaus liegt im Herzen der historischen Altstadt von Hohenems.

Das verfügbare Zimmer befindet sich im OG 2 und verfüget über ein eigenes Badezimmer.

Die Küche und der Essbereich werden mit einem Mitbewohner geteilt.

Das Zimmer ist mit einem Bett, Schreibtisch, und Kleiderschrank teilmöbliert.


Zu den Allgemeinräumen gehören ein Gemeinschafts-, Fahrrad- und Müll- und Waschraum mit Waschmaschinen und Trocknern.


Die Mietkosten betragen EUR 560,- pro Monat. Die Betriebskosten und Internet über WLAN sind in der Miete inbegriffen. Eine Mietdauer ist ab 5 Monaten bzw. nach Absprache möglich. Bei der abgebildeten Wohnung handelt es sich um ein Beispielbild.



Angehängte Dokumente