FLEXIBEL
FINANZIEREN

Kreditbedarf
Eigenmittel
%
Jahre
Zins | Laufzeit
mtl. Rate
ländleimmo.at / Kaufobjekt / Wohnung / Terrassenwohnung / Vorarlberg / Feldkirch / Feldkirch / 2-Zimmer-Terrassenwohnung

2-Zimmer-Terrassenwohnung

images icon

2 Zimmer

Grundriss

images icon

48,57 m²

Wohnfläche

€ 322.500

Milena Calörtscher

Hilti & Jehle GmbH WOHNBAU

Preise

Kaufpreis € 322.500
Preis (Auto-)Stellplatz € 27.000
Förderungen € 67.500

Objekt Informationen

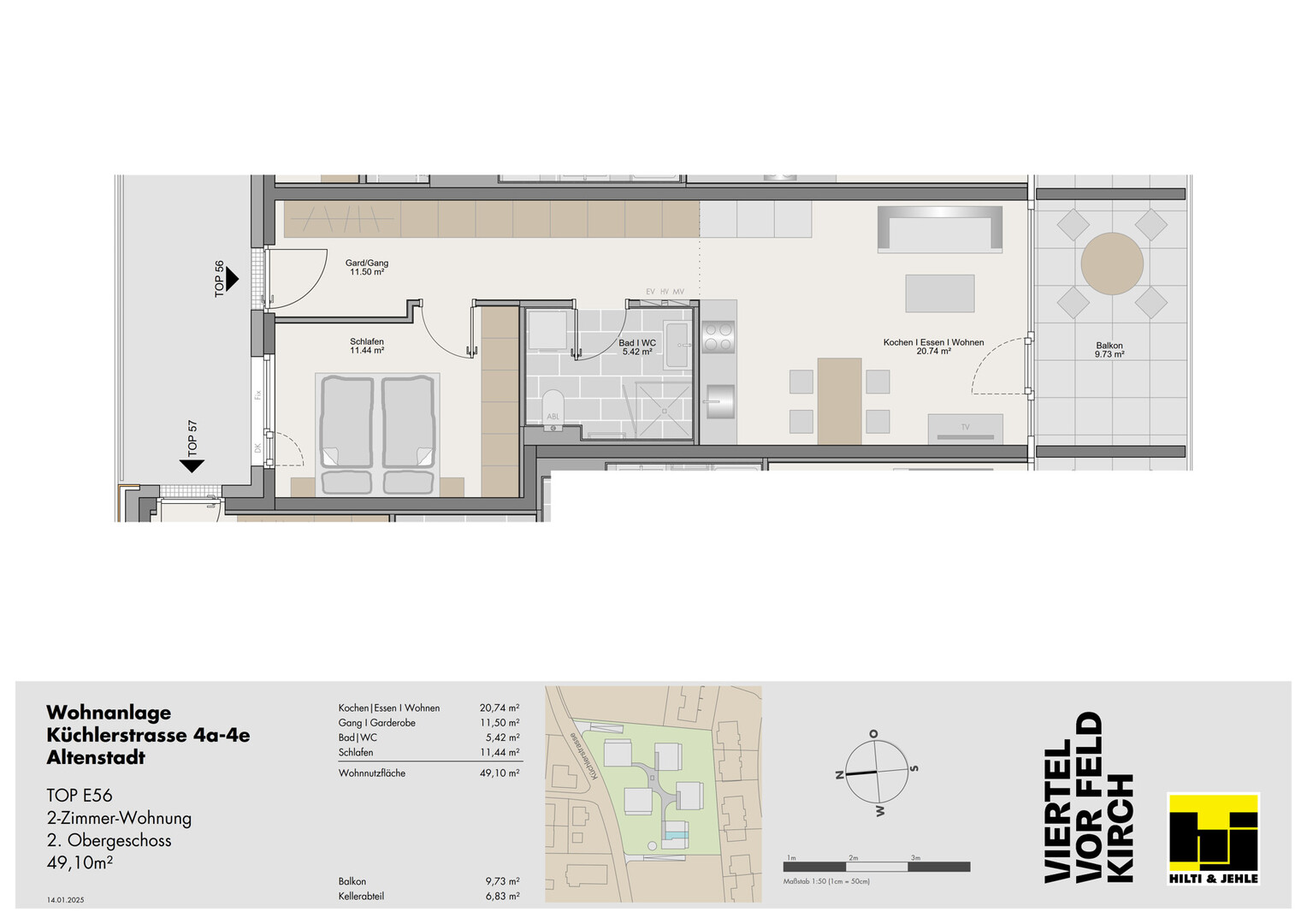
Wohnfläche 48,57 m²
Zimmer 2
Bautyp Neubau/Erstbezug
Objektart Wohnung
Objekttyp Terrassenwohnung
Terrasse 9,73 m²
Keller 6,51 m²
Heizung
  • Luft Wärmepumpe
  • Fußbodenheizung
Gesamtanzahl Stellplätze 1
Heizwärmebedarf (HWB) 18,71 kwh/m²a
Klasse Heizwärmebedarf (Klasse HWB) A
Gesamtenergieeffizienz-Faktor (fGEE) 0,53 kwh/m²a
Klasse Gesamtenergieeffizienz-Faktor (Klasse fGEE) A++
Externe ID 200028.2 - E56
Parkplatz
  • (Tief-)Garage (1)

Empfohlene Services unserer Partner

Objekt Beschreibung


In ruhiger und dennoch zentraler Lage von Feldkirch-Altenstadt errichten wir unser Neubauprojekt Küchlerstraße Feldkirch - ein Zuhause, das höchsten Wohnkomfort bietet.

Die modernen, nach Süden ausgerichteten Baukörper bieten eine vielfältige Auswahl an Wohnmöglichkeiten:

2-, 3- und 4-Zimmerwohnungen sowie Maisonettewohnungen
Großzügige, überdachte Terrassen
Nachhaltiges Energiekonzept für zukunftssicheres Wohnen
Tiefgarage & e-mobility ready für umweltbewusstes Fahren

Hilti Grundstückbonus – Leistbares Wohnen leicht gemacht!

Die Familie Hilti setzt mit diesem Projekt ein Zeichen für leistbares Wohnen. Das Grundstück, auf dem der ehemalige Bauhof stand, befindet sich seit vielen Jahren in Familienbesitz. Mit dem Hilti Grundstückbonus erhalten Singles, Paare und Jungfamilien die Möglichkeit, den Traum von den eigenen vier Wänden mit minimalem Eigenkapital zu verwirklichen.

Beim Kaufpreis wurden für 2-Zimmerwohnung € 25.000,00, bei 3- & 4 Zimmerwohnung € 35.000,00 als Hilti Grundstücksbonus bereits abgezogen.

Jetzt informieren & persönliches Gespräch vereinbaren!

Nutzen Sie diese einmalige Gelegenheit und sichern Sie sich Ihre Traumwohnung in Feldkirch-Altenstadt. Wir freuen uns auf Ihre Anfrage!