ländleimmo.at
/
Kaufobjekt
/
Wohnung
/
Terrassenwohnung
/
Vorarlberg
/
Dornbirn
/ Dornbirn
/
Baustart erfolgt / Wohnbauförderung / Finanzierung - wir sind für Sie da
Baustart erfolgt / Wohnbauförderung / Finanzierung - wir sind für Sie da
3 Zimmer
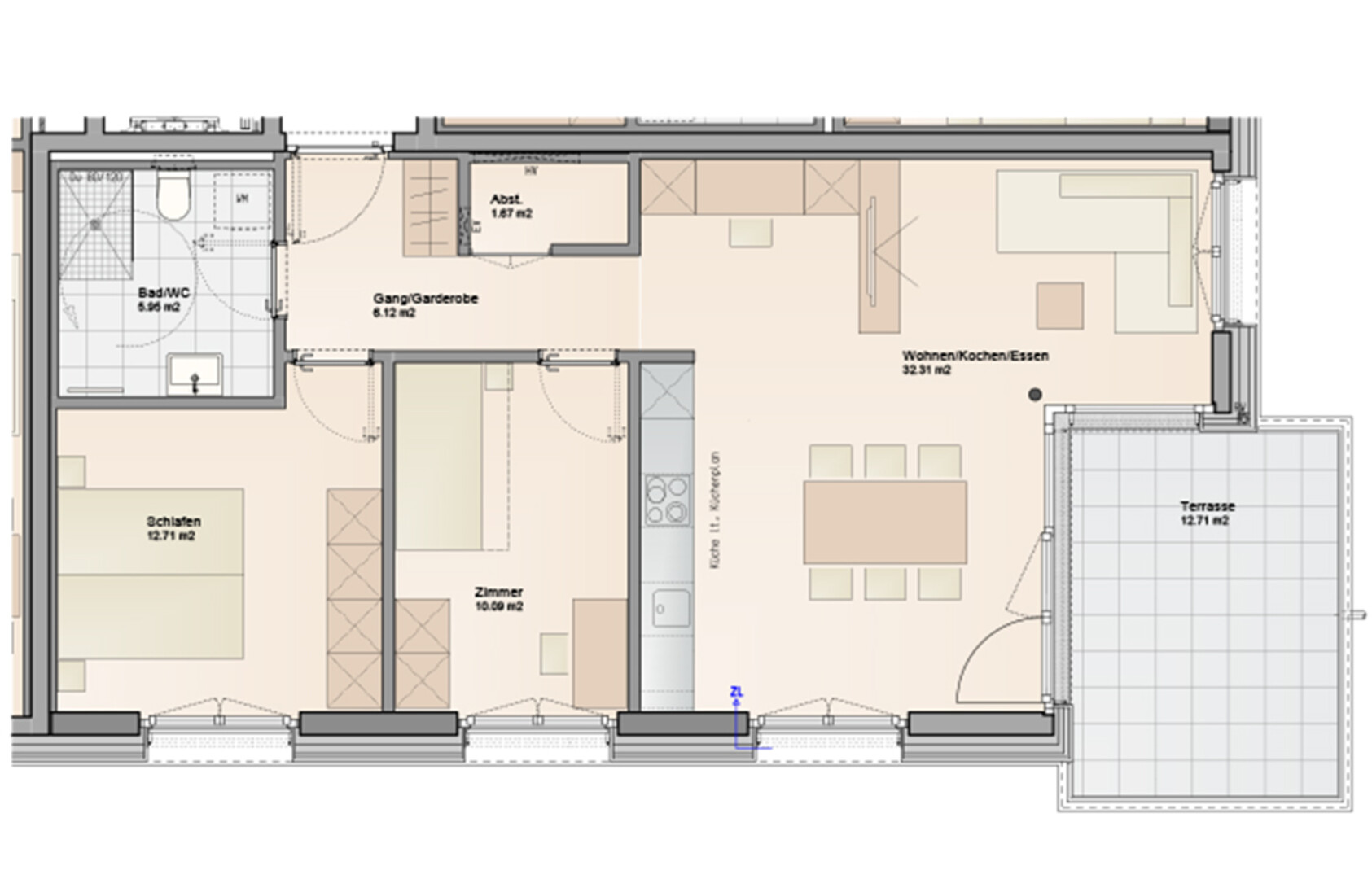
Grundriss
68,38 m²
Wohnfläche
€ 479.000
Preise
Kaufpreis
€ 479.000
Preis (Auto-)Stellplatz
zzgl. zum Kaufpreis
€ 27.000
Objekt Informationen
Wohnfläche
68,38 m²
Zimmer
3
Etage
1. OG
Bautyp
Neubau/Erstbezug
Baujahr
2026
Objektart
Wohnung
Objekttyp
Terrassenwohnung
Terrasse
12,71 m²
Keller
5,37 m²
Externe ID
justimmo_53092_925-C06
Parkplatz
- (Tief-)Garage
Ausstattung:
-
Lift
Empfohlene Services unserer Partner
Objekt Beschreibung
Baustart erfolgt / Wohnbauförderung / Finanzierung - wir sind für Sie da
STILVOLLER WOHNGENUSS IN RUHIGER UMGEBUNG
Mit dem Neubauprojekt Mähdergasse entstehen drei moderne Wohnhäuser in beliebter Lage von Dornbirn. Es werden 2- bis 4-Zimmer Terrassen- und Gartenwohnungen mit variantenreichen Grundrissen realisiert. Jede Wohnung überzeugt durch eine hochwertige Ausstattung, raumhohe Fenster sowie eine Panoramaverglasung in Richtung Außenbereich.
Die Fassade wird in heimischem Holz ausgeführt und sorgt für ein natürlich anmutendes Gesamtbild. Ergänzend dazu werden die Flachdächer der drei Wohnhäuser mit extensiver Begrünung gestaltet – dadurch ergibt sich neben einem kühlenden Effekt besonders in den Sommermonaten auch eine ökologisch wertvolle Nutzung der Dachfläche. Eine Photovoltaikanlage rundet das moderne, zukunftsfähige Wohnkonzept ab.
In jedem Haus entsteht ein gemeinschaftlicher Fahrradraum sowie ein geschlossener Abfallraum. Zusätzlich sorgen eine hauseigene Tiefgarage, private Kellerabteile und ein Kinderspielplatz für einen hohen täglichen Wohnkomfort.
ERSTKLASSIG WOHNEN ZWISCHEN STADT UND NATUR
Die Lage am Fuß des Fallenbergs in Dornbirn bietet einige Vorteile im täglichen Leben. Die Innenstadt Dornbirn ist sowohl mit öffentlichen Verkehrsmitteln als auch mit dem Fahrrad oder Auto schnell erreichbar. Hier laden zahlreiche Cafés, Restaurants, der herrliche Wochenmarkt sowie zahlreiche Events zum Verweilen ein.
Neben der Innenstadt sorgt auch das nahegelegene Gewerbegebiet Dornbirn Schwefel für eine bestens ausgebaute Nahversorgung mit diversen Geschäften und Dienstleistern. Wenige Meter vom Neubauprojekt entfernt liegt eine Bushaltestelle – alle paar Minuten verkehren Busse Richtung Dornbirn Bahnhof. Auch zur Autobahnauffahrt Dornbirn Nord ist es nicht weit.
Neben den Vorzügen der Stadt wartet auf die Bewohner der Mähdergasse auch Naherholung und Natur in direktem Umfeld. Die Talstation der Karrenseilbahn, das Waldbad Enz und die Rappenlochschlucht sind nur wenige Fahrminuten entfernt und bieten Freizeitmöglichkeiten der besonderen Art. Im Winter bietet das Skigebiet „Bödele“ beste Pistenverhältnisse für spontane Skitage. Egal, ob Sie Wert auf Wohnqualität oder Freizeitmöglichkeiten legen, in Dornbirn und Umgebung werden Sie garantiert fündig
Mit der Wohnbauförderung in Vorarlberg bleibt der Traum vom Eigenheim attraktiv. Profitieren Sie jetzt von guten Konditionen – und sparen Sie zusätzlich bis zu € 11.500,- durch den Entfall der Nebengebühren.
Weitere Wohneinheiten und Projekte finden Sie auf unserer Homepage: www.zima.at
STILVOLLER WOHNGENUSS IN RUHIGER UMGEBUNG
Mit dem Neubauprojekt Mähdergasse entstehen drei moderne Wohnhäuser in beliebter Lage von Dornbirn. Es werden 2- bis 4-Zimmer Terrassen- und Gartenwohnungen mit variantenreichen Grundrissen realisiert. Jede Wohnung überzeugt durch eine hochwertige Ausstattung, raumhohe Fenster sowie eine Panoramaverglasung in Richtung Außenbereich.
Die Fassade wird in heimischem Holz ausgeführt und sorgt für ein natürlich anmutendes Gesamtbild. Ergänzend dazu werden die Flachdächer der drei Wohnhäuser mit extensiver Begrünung gestaltet – dadurch ergibt sich neben einem kühlenden Effekt besonders in den Sommermonaten auch eine ökologisch wertvolle Nutzung der Dachfläche. Eine Photovoltaikanlage rundet das moderne, zukunftsfähige Wohnkonzept ab.
In jedem Haus entsteht ein gemeinschaftlicher Fahrradraum sowie ein geschlossener Abfallraum. Zusätzlich sorgen eine hauseigene Tiefgarage, private Kellerabteile und ein Kinderspielplatz für einen hohen täglichen Wohnkomfort.
ERSTKLASSIG WOHNEN ZWISCHEN STADT UND NATUR
Die Lage am Fuß des Fallenbergs in Dornbirn bietet einige Vorteile im täglichen Leben. Die Innenstadt Dornbirn ist sowohl mit öffentlichen Verkehrsmitteln als auch mit dem Fahrrad oder Auto schnell erreichbar. Hier laden zahlreiche Cafés, Restaurants, der herrliche Wochenmarkt sowie zahlreiche Events zum Verweilen ein.
Neben der Innenstadt sorgt auch das nahegelegene Gewerbegebiet Dornbirn Schwefel für eine bestens ausgebaute Nahversorgung mit diversen Geschäften und Dienstleistern. Wenige Meter vom Neubauprojekt entfernt liegt eine Bushaltestelle – alle paar Minuten verkehren Busse Richtung Dornbirn Bahnhof. Auch zur Autobahnauffahrt Dornbirn Nord ist es nicht weit.
Neben den Vorzügen der Stadt wartet auf die Bewohner der Mähdergasse auch Naherholung und Natur in direktem Umfeld. Die Talstation der Karrenseilbahn, das Waldbad Enz und die Rappenlochschlucht sind nur wenige Fahrminuten entfernt und bieten Freizeitmöglichkeiten der besonderen Art. Im Winter bietet das Skigebiet „Bödele“ beste Pistenverhältnisse für spontane Skitage. Egal, ob Sie Wert auf Wohnqualität oder Freizeitmöglichkeiten legen, in Dornbirn und Umgebung werden Sie garantiert fündig
Mit der Wohnbauförderung in Vorarlberg bleibt der Traum vom Eigenheim attraktiv. Profitieren Sie jetzt von guten Konditionen – und sparen Sie zusätzlich bis zu € 11.500,- durch den Entfall der Nebengebühren.
Weitere Wohneinheiten und Projekte finden Sie auf unserer Homepage: www.zima.at