FLEXIBEL
FINANZIEREN

Kreditbedarf
Eigenmittel
%
Jahre
Zins | Laufzeit
mtl. Rate
ländleimmo.at / Kaufobjekt / Wohnung / Terrassenwohnung / Vorarlberg / Dornbirn / Dornbirn / 3 1/2 Zimmerwohnung mit Terrasse

3 1/2 Zimmerwohnung mit Terrasse

images icon

N/A

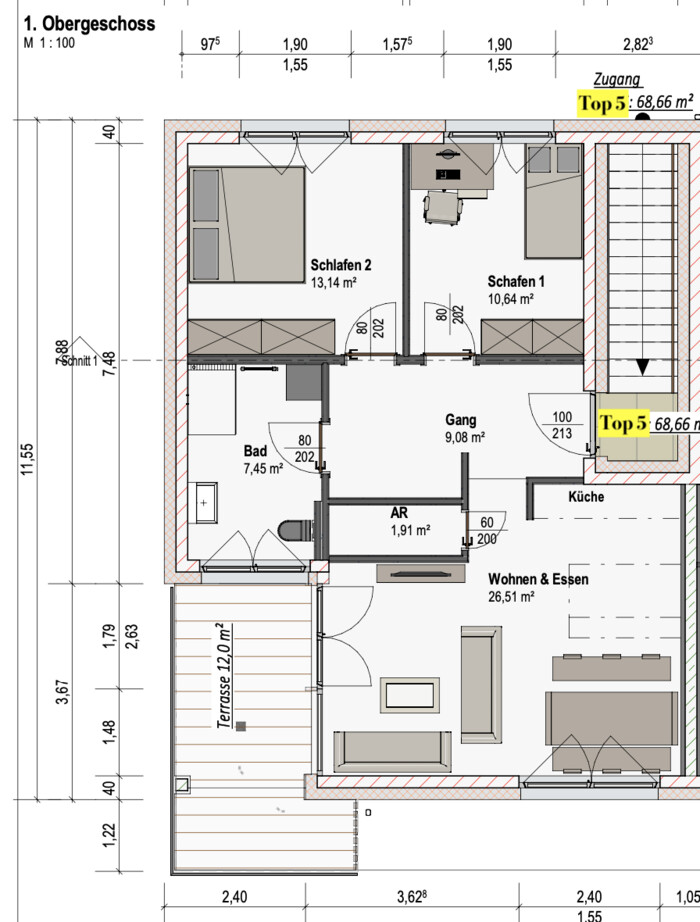
Grundriss

images icon

68,68 m²

Wohnfläche

€ 522.000

Preise

Kaufpreis € 522.000
Betriebskosten (exkl. Mwst) € 160
Förderungen € 120.000
Einmalkosten € 9.000

Objekt Informationen

Wohnfläche 68,68 m²
Nebenräume 1
Etage Erdgeschoss
Bautyp Neubau/Erstbezug
Baujahr 2026
Bauweise
  • Holz
  • Massiv
Objektart Wohnung
Objekttyp Terrassenwohnung
Terrasse 12,00 m²
Keller 3,66 m²
Dachboden 40,00 m²
Abstellraum 0,00 m²
Heizung
  • Luft Wärmepumpe
  • Zentralheizung
  • Photovoltaik
Verfügbar ab Mitte 2026
Befristung keine
Heizwärmebedarf (HWB) 33 kwh/m²a
Parkplatz
  • Freiplatz

Ausstattung:

  • icon Einbauküche
  • icon Boden: Fliesen, Parkett, Steinboden
  • icon Bad mit: Dusche
  • icon Ausrichtung Balkon: Süden, Südwesten
  • icon Rollladen

Empfohlene Services unserer Partner

Objekt Beschreibung

Modernes Wohnhaus mit 6 Wohnungen, Wohnung im 1. OG nach Süden und Westen ausgerichtet,

Planänderungen können noch berücksichtigt werden.

PV Anlage auf dem Flachdach

Mit Staubox, Carpot .

Baubeginn Sommer 2025

Wohnbauförderung ab € 130.000,- möglich

Eigenmittel 80.000.--

Finanzierungsrate p/M 1100.--€ zuzüglich WBF Rate 120.--