ländleimmo.at
/
Mietobjekt
/
Wohnung
/
Souterrain
/
Vorarlberg
/
Bludenz
/ Dalaas
/
Wunderbare zwei Zimmer Wohnung sucht neuen Mieter
Wunderbare zwei Zimmer Wohnung sucht neuen Mieter
N/A
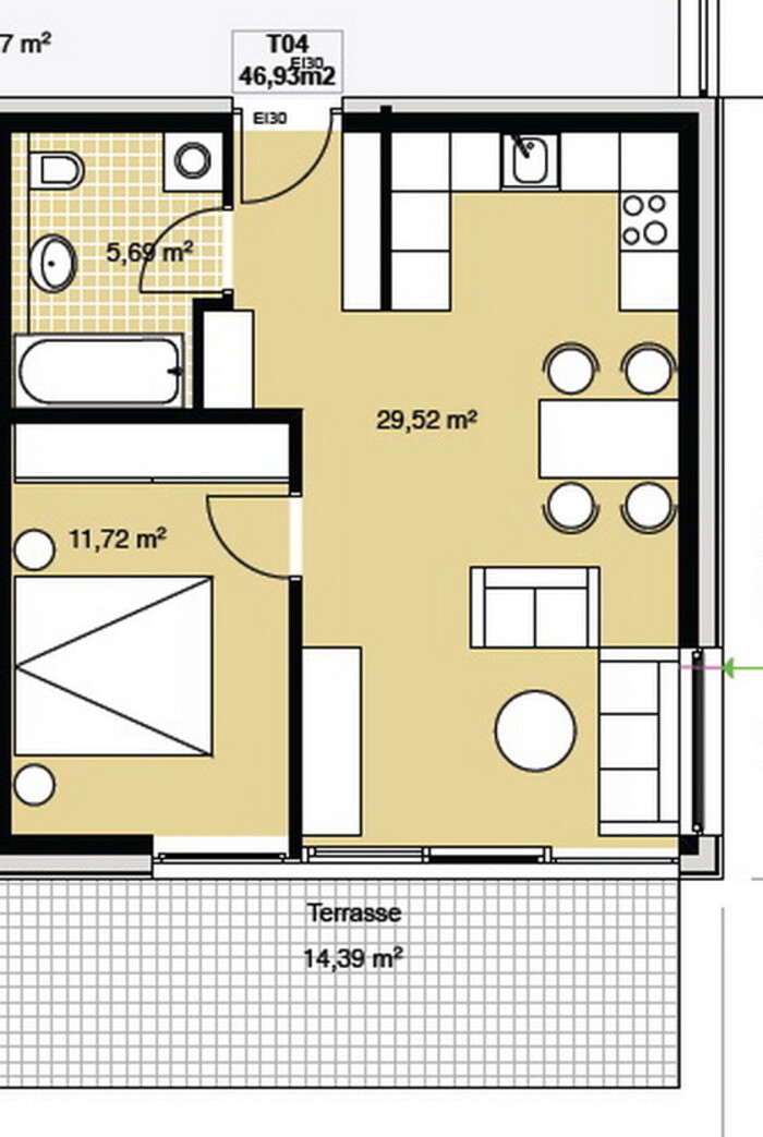
Grundriss
46,93 m²
Wohnfläche
€ 860
Preise
Gesamtbelastung
Miete + Betriebskosten + Heizkosten + Sonstige Kosten; inkl. MwSt.
€ 860
Netto-Kaltmiete
€ 720
Betriebskosten (exkl. Mwst)
€ 140
Gesamtmiete (inkl. MwSt.)
Gesamtbelastung abzüglich Heizkosten BRUTTO
€ 860
Miete (exkl. MwSt.)
Miete ohne MwSt., Betriebskosten und Heizkosten
€ 720
Objekt Informationen
Wohnfläche
46,93 m²
Bautyp
Neubau (bis 5 Jahre)
Baujahr
2014
Objektart
Wohnung
Objekttyp
Souterrain
Verfügbar ab
nach Vereinbarung
Externe ID
Mistura_DP00835
Empfohlene Services unserer Partner
Objekt Beschreibung
Wunderbar gelegene 2 Zimmer Wohnung sucht, nach Vereinbarung, einen ruhigen und seriösen Mieter.
Die 2 Zimmer Wohnung befindet sich im UG der klein-Wohnanlage und ist wie folgt aufgeteilt:
Wohn/Essbereich mit Küche inkl. Einbaugeräten, Bad/WC, Schlafzimmer, Terrasse sowie einem Kellerabteil und einem zugeordneter Carport-Stellplatz.
Wir haben ihr Interesse geweckt? Dann kontaktieren Sie uns
Nebenkosten:
Die Kaution für die Wohnung beträgt €2.600,00 und kann entweder mittels Bankgarantie oder Überweisung hinterlegt werden. Zusätzlich ist die Erteilung eines Mandatsauftrages zur Erstellung eines Mietvertrages erforderlich. Die Kosten hierfür belaufen sich auf € 650,00 zzgl. 20% MwSt.
Wir weisen darauf hin, dass wir als Makler Markus Mistura Immobilien ständig mit dem Vermieter zusammenarbeiten. Es besteht somit ein wirtschaftliches Naheverhältnis zwischen dem Vermieter und dem Makler Markus Mistura Immobilien.
Die 2 Zimmer Wohnung befindet sich im UG der klein-Wohnanlage und ist wie folgt aufgeteilt:
Wohn/Essbereich mit Küche inkl. Einbaugeräten, Bad/WC, Schlafzimmer, Terrasse sowie einem Kellerabteil und einem zugeordneter Carport-Stellplatz.
Wir haben ihr Interesse geweckt? Dann kontaktieren Sie uns
Nebenkosten:
Die Kaution für die Wohnung beträgt €2.600,00 und kann entweder mittels Bankgarantie oder Überweisung hinterlegt werden. Zusätzlich ist die Erteilung eines Mandatsauftrages zur Erstellung eines Mietvertrages erforderlich. Die Kosten hierfür belaufen sich auf € 650,00 zzgl. 20% MwSt.
Wir weisen darauf hin, dass wir als Makler Markus Mistura Immobilien ständig mit dem Vermieter zusammenarbeiten. Es besteht somit ein wirtschaftliches Naheverhältnis zwischen dem Vermieter und dem Makler Markus Mistura Immobilien.