ländleimmo.at
/
Mietobjekt
/
Wohnung
/
Maisonette
/
Vorarlberg
/
Feldkirch
/ Altach
/
6 Zimmer-Wohnung | Balkon | Altach
6 Zimmer-Wohnung | Balkon | Altach
6 Zimmer
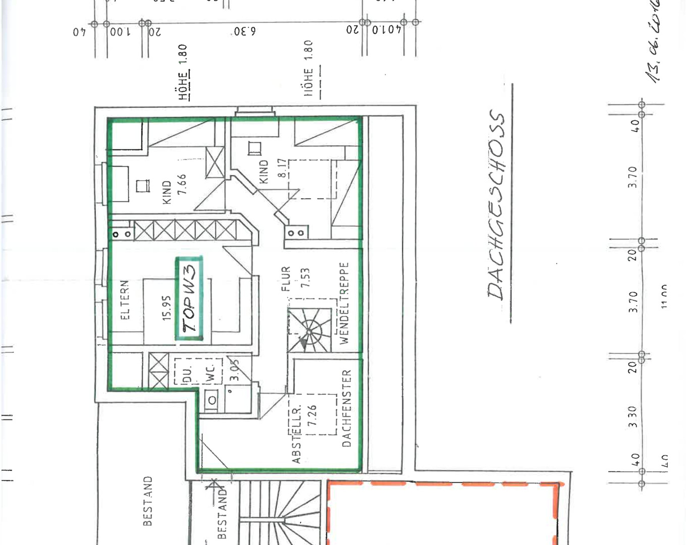
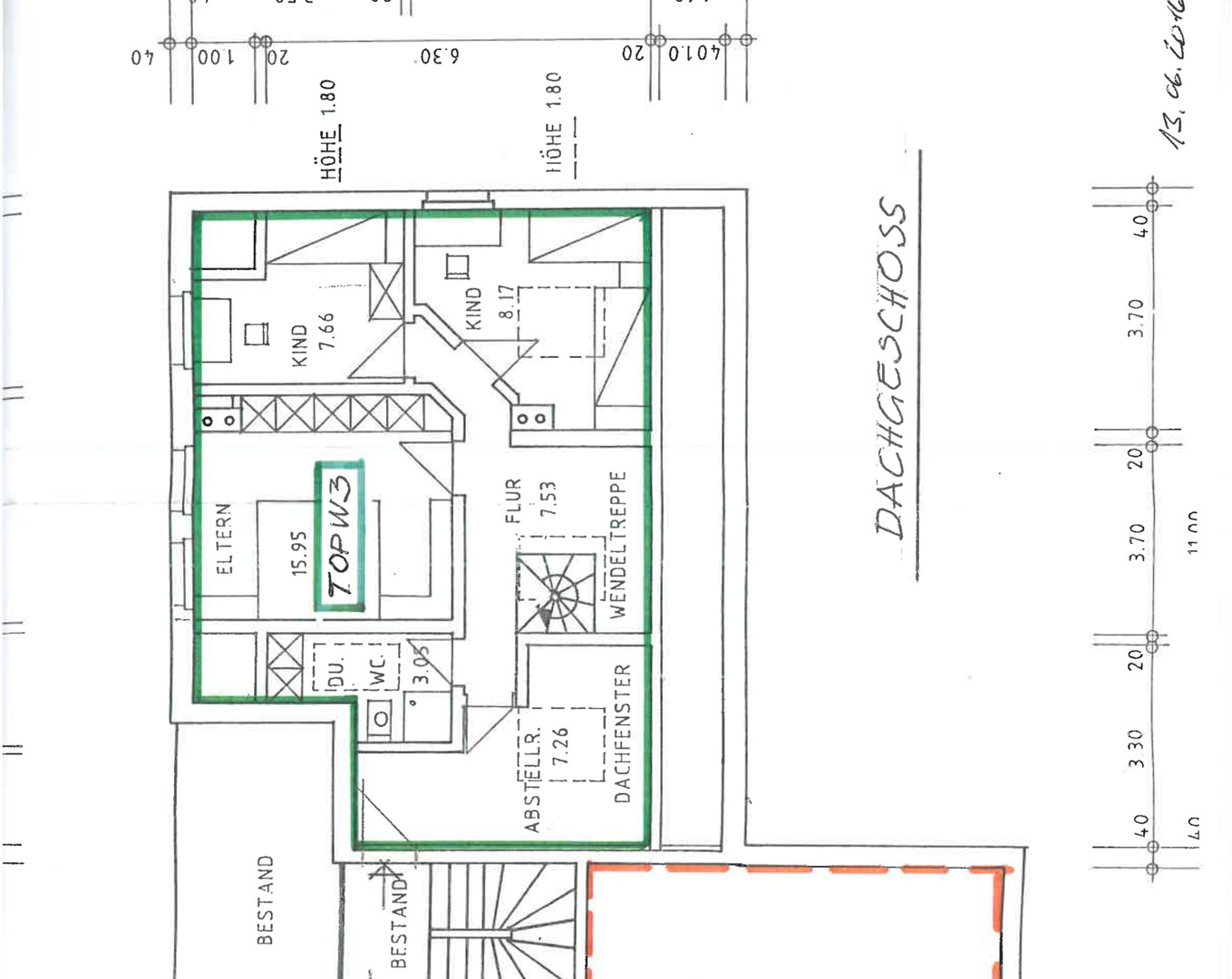
Grundriss
131,03 m²
Wohnfläche
€ 1.500
Preise
Gesamtbelastung
Miete + Betriebskosten + Heizkosten + Sonstige Kosten; inkl. MwSt.
€ 1.500
Objekt Informationen
Wohnfläche
131,03 m²
Zimmer
6
Baujahr
1982
Objektart
Wohnung
Objekttyp
Maisonette
Badezimmer
2
Balkon
Vorhanden
Terrasse
26,10 m²
Heizung
- Gas
Verfügbar ab
ab sofort
Gesamtanzahl Stellplätze
2
Externe ID
Agentur_4053
Parkplatz
- (Tief-)Garage (1)
- Freiplatz (1)
Empfohlene Services unserer Partner
Objekt Beschreibung
6-Zimmer Maisonettenwohnung mit Balkon in Altach zu verkaufen
Das Objekt, welches sich in Altach befindet, überzeugt mit einer super Lage und tollen Infrastruktur.
Von hier aus erreichen Sie problemlos sämtliche Einkaufsmöglichkeiten, Lebensmittelgeschäfte, eine Bushaltestelle, Restaurants uvm.
Das Dorfzentrum ist ebenfalls in wenigen Minuten erreichbar und bietet eine Vielzahl an weiteren Einkaufsmöglichkeiten und Restaurants.
Aufgeteilt ist das Objekt auf 2 Stockwerke und die Wohnung erstreckt sich auf insgesamt ca. 131 m² Wohnnutzfläche zuzüglich 2x Balkon.
Die Wohnung ist folgendermaßen aufgeteilt:
1. Obergeschoss:
- Diele
- WC
- Badezimmer
- Zimmer
- Zimmer
- Küche
- Wohnzimmer
- 2x Balkon
Dachgeschoss:
- Zimmer
- Zimmer
- Zimmer
- Badezimmer
Hier gehts zur 3D-Besichtigung: https://www.immo-agentur.com/3d/NLnD
Durch die Eingangstür gelangen Sie in den Eingangsbereich. Von hier aus gelangen Sie in den Gang, WC, Badezimmer, Zimmer 1, Zimmer 2, Küche, Wohnzimmer & Balkon.
Über die Wendeltreppe in einer der Schlafzimmer gelangen Sie in das Dachgeschoss, hier erwartet Sie 3 Schlafzimmer sowie ein weiteres Badezimmer.
Einen Waschmaschinenanschluss finden Sie im Badezimmer vor.
Als Zubehör steht ein Vorratskeller, ein Mostkeller sowie ein weiterer Kellerraum zur Verfügung.
Sollten Sie Interesse an diesem Objekt haben, melden und überzeugen Sie sich selbst mittels eines unverbindlichen Besichtigungstermines.
Einmalkosten:
Kaution: 3 BMM
Vertragserstellungsgebühr: 500,00 inkl. 20% MwSt.
Alle Angaben nach bestem Wissen. Irrtum und Zwischenvermietung vorbehalten. Dieses Expose ist eine Vorinformation, als Rechtsgrundlage gilt alleine der abgeschlossene Mietvertrag. §15 der Maklerverordnung gilt als vereinbart.