ländleimmo.at / Mietobjekt / Wohnung / Maisonette / Vorarlberg / Dornbirn / Dornbirn / Im Herzen von Dornbirn: Große 3-Zimmer-Maisonettewohnung zu vermieten!

Im Herzen von Dornbirn: Große 3-Zimmer-Maisonettewohnung zu vermieten!

images icon

3 Zimmer

Grundriss

images icon

106,10 m²

Wohnfläche

€ 1.250

David Primigg

Mag. Kofler Vermögenstreuhand GmbH

Preise

Gesamtbelastung € 1.250
Kaution € 3.800
Einmalkosten Provisionspflichtig
Provision Gemäß Erstauftraggeberprinzip bezahlt der Abgeber die Provision.
Erklärung Kosten Kautionshinterlegung: Mittels Bankgarantie oder per Überweisung möglich

Objekt Informationen

Wohnfläche 106,10 m²
Zimmer 3
Baujahr 1984
Objektart Wohnung
Objekttyp Maisonette
Badezimmer 1
Abstellraum Vorhanden
Heizung
  • Gas
Verfügbar ab 1. Juni 2026
Heizwärmebedarf (HWB) 99 kwh/m²a
Klasse Heizwärmebedarf (Klasse HWB) C
Gesamtenergieeffizienz-Faktor (fGEE) 1,9 kwh/m²a
Klasse Gesamtenergieeffizienz-Faktor (Klasse fGEE) D
Externe ID justimmo_228845_5781/15930220
Parkplatz
  • Freiplatz

Ausstattung:

  • icon Einbauküche
  • icon Wohnküche / offene Küche
  • icon Bad mit: Badewanne
  • icon Gäste-WC
  • icon Kabel/Satelliten-TV

Empfohlene Services unserer Partner

Objekt Beschreibung


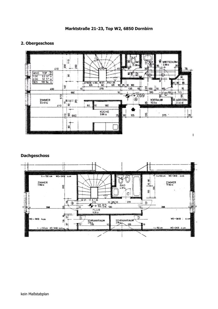
Wohnen mit direkter Innenstadtlage in Dornbirn - Große 3-Zimmer-Maisonettewohnung

In der Marktstraße 21 in Dornbirn erwartet Sie diese attraktive 3-Zimmerwohnung mit durchdachter Raumaufteilung auf zwei Ebenen (2. Obergeschoss + Dachgeschoss). Mit einer Wohnfläche von 106,10 m² bietet die Wohnung helles, großzügiges Wohnen und viele praktische Extras. Das offene Küche-Ess-Wohnzimmer bildet das Herzstück der Wohnung und sorgt für ein angenehmes Wohnambiente. Zwei Zimmer im Dachgeschoss überzeugen mit jeweils eigener Ankleide. Zwei Abstellräume, einer mit Waschmaschinenanschluss, sowie ein Kellerabteil bieten zusätzlichen Stauraum.

 

Lage:

Absolute Innenstadtlage: Mitten im Zentrum von Dornbirn gelegen – lebendig und alles fußläufig erreichbar.

Einkaufen & täglicher Bedarf direkt vor der Tür: Supermärkte, Bäckereien, Drogerien, Apotheken sowie zahlreiche Geschäfte der Innenstadt befinden sich in unmittelbarer Nähe.

Gastronomie, Cafés & After-Work-Leben: Zahlreiche Cafés, Bars und Restaurants in direkter Umgebung.

Öffentliche Verkehrsmittel optimal erreichbar: Bushaltestellen sowie der Bahnhof Dornbirn sind in wenigen Minuten erreichbar – perfekte Anbindung in alle Richtungen.

 

Raumaufteilung:

2. OG:

  • Gang
  • Küche-Ess-Wohnzimmer
  • separates WC
  • zwei Abstellräume

Dachgeschoss:

  • Gang
  • zwei Zimmer mit Ankleide
  • Badezimmer mit Badewanne & WC

 

Zusätzlich gehört ein Kellerabteil zur Wohnung dazu.

Bei Bedarf kann ein Autoabstellplatz zusätzlich angemietet werden. 

 

Gesamtmietzins:

EUR     838,18 Mietzins Wohnung

EUR     314,63 Betriebskosten Wohnung

EUR       97,19 Heizkosten Wohnung

EUR  1.250,00 Gesamtmietzins inklusive Betriebskosten

 

Kautionshinterlegung:

Die Kaution in Höhe von € 3.800,- kann entweder per Überweisung oder mittels Bankgarantie hinterlegt werden.

 

Zögern Sie nicht und kontaktieren Sie uns für einen Besichtigungstermin!

 

Die Firma Mag. Kofler Vermögenstreuhand GmbH erklärt, entgegen dem in der Immobilienwirtschaft üblichen Geschäftsgebrauch nicht als Doppelmakler, sondern nur einseitig für den (die) Vermieter(in) tätig zu sein. Weiter ist die Firma Mag. Kofler Vermögenstreuhand GmbH ermächtigt, bis auf Widerruf Objekte zu präsentieren. Mit dem Auftraggeber besteht zudem ein wirtschaftliches Naheverhältnis aufgrund der Immobilienverwaltung.

Noch nichts gefunden? Wir informieren Sie über geeignete Immobilienangebote noch vor allen anderen.
Legen Sie jetzt Ihren individuellen Suchagenten unter folgendem Link an. Wir schicken Ihnen passende Immobilien exklusiv vorab zu.
Suchagent anlegen - https://mag-kofler-vermoegenstreuhand.service.immo/registrieren/de

Der Immobilienmakler erklärt, dass er – entgegen dem in der Immobilienwirtschaft üblichen Geschäftsgebrauch des Doppelmaklers – einseitig nur für den Vermieter tätig ist.


Infrastruktur / Entfernungen

Gesundheit
Arzt <100m
Apotheke <100m
Krankenhaus <750m
Klinik <10.000m

Kinder & Schulen
Schule <200m
Kindergarten <150m
Universität <650m
Höhere Schule <8.675m

Nahversorgung
Supermarkt <225m
Bäckerei <75m
Einkaufszentrum <150m

Sonstige
Bank <100m
Geldautomat <100m
Post <600m
Polizei <200m

Verkehr
Bus <125m
Autobahnanschluss <2.575m
Bahnhof <650m
Flughafen <4.525m

Angaben Entfernung Luftlinie / Quelle: OpenStreetMap