FLEXIBEL
FINANZIEREN

Kreditbedarf
Eigenmittel
%
Jahre
Zins | Laufzeit
mtl. Rate
ländleimmo.at / Kaufobjekt / Wohnung / Maisonette / Vorarlberg / Dornbirn / Dornbirn / Wohnen mit Stil, Raum und Licht auf drei Ebenen

Wohnen mit Stil, Raum und Licht auf drei Ebenen

images icon

4 Zimmer

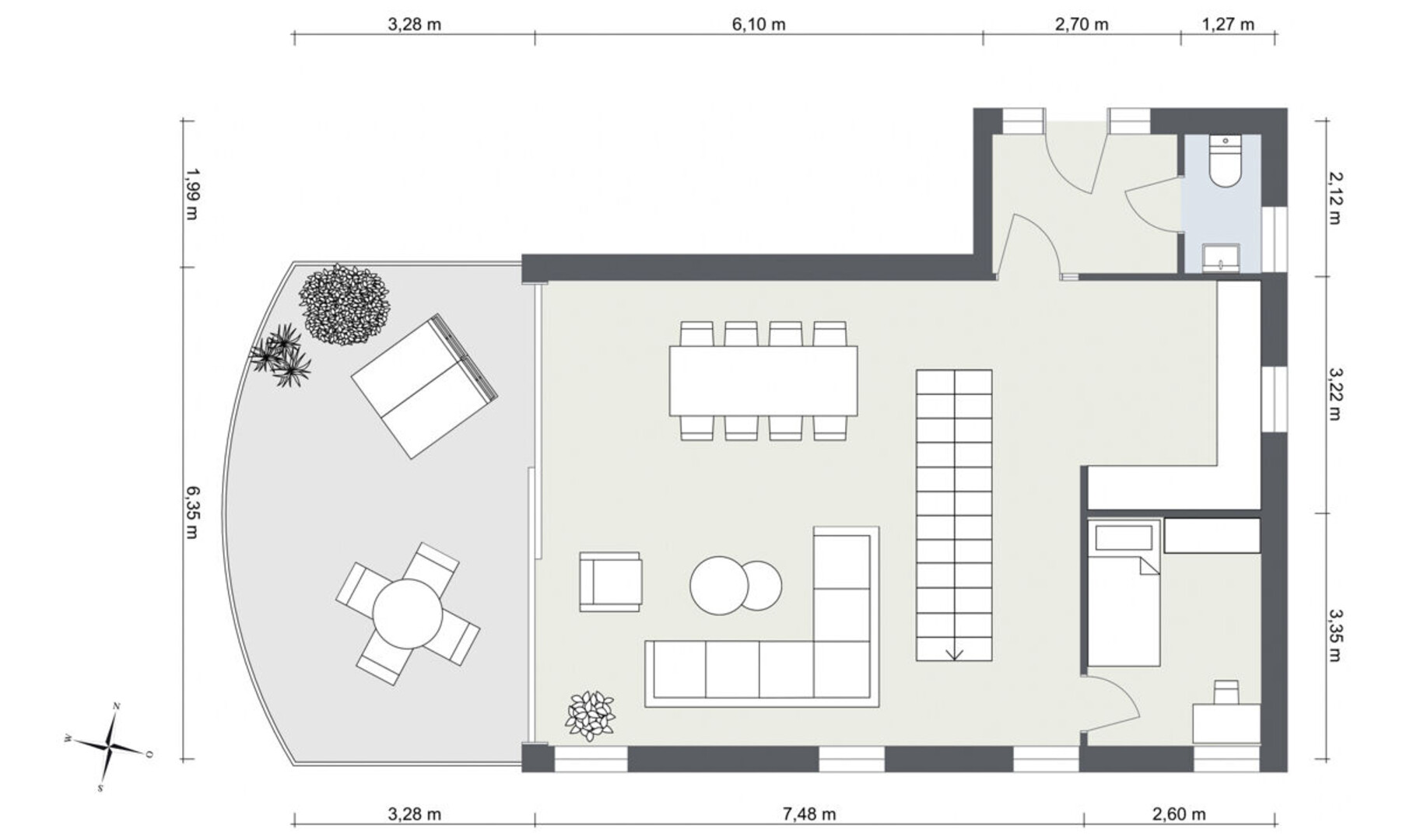
Grundriss

images icon

132,32 m²

Wohnfläche

Preis auf Anfrage

Matthias Hartinger

MATTHIAS HARTINGER IMMOBILIEN E&H Immobilien GmbH

Preise

Preis auf Anfrage

Objekt Informationen

Wohnfläche 132,32 m²
Zimmer 4
Etage 1. OG
Baujahr 1993
Objektart Wohnung
Objekttyp Maisonette
Badezimmer 1
Balkon 25,00 m²
Terrasse Vorhanden
Keller 6,00 m²
Heizung
  • Fußbodenheizung
Gesamtanzahl Stellplätze 1
Heizwärmebedarf (HWB) 72,43 kwh/m²a
Klasse Heizwärmebedarf (Klasse HWB) C
Gesamtenergieeffizienz-Faktor (fGEE) 1,18 kwh/m²a
Externe ID MHI-2026-00297
Parkplatz
  • (Tief-)Garage

Ausstattung:

  • icon Boden: Parkett

Empfohlene Services unserer Partner