FLEXIBEL
FINANZIEREN

Kreditbedarf
Eigenmittel
%
Jahre
Zins | Laufzeit
mtl. Rate
ländleimmo.at / Kaufobjekt / Wohnung / Gartenwohnung / Vorarlberg / Feldkirch / Feldkirch / 3-Zi-Gartenwohnung TOP 2 in Feldkirch-Altenstadt, Rebbündten - Bezugstermin in Absprache!

3-Zi-Gartenwohnung TOP 2 in Feldkirch-Altenstadt, Rebbündten - Bezugstermin in Absprache!

images icon

3 Zimmer

Grundriss

images icon

70,65 m²

Wohnfläche

€ 498.000

Preise

Kaufpreis € 498.000
Preis (Auto-)Stellplatz € 24.600
Förderungen € 60.000
Provision keine Provision!
Erklärung Kosten Einmalkosten: 3,5% Grunderwerbssteuer, 1,1% Grundbuchseintragung (Entfall der 1,1 % bei Hauptwohnsitz bis Kaufpreis von € 500.000– pro Käufer), keine Vertragserrichtungskosten! Wohnbauförderung: zusätzlich Zu-/Abschläge möglich!

Objekt Informationen

Wohnfläche 70,65 m²
Zimmer 3
Etage Erdgeschoss
Bautyp Neubau/Erstbezug
Baujahr 2025
Objektart Wohnung
Objekttyp Gartenwohnung
Balkon Vorhanden
Terrasse 12,28 m²
Garten 123,67 m²
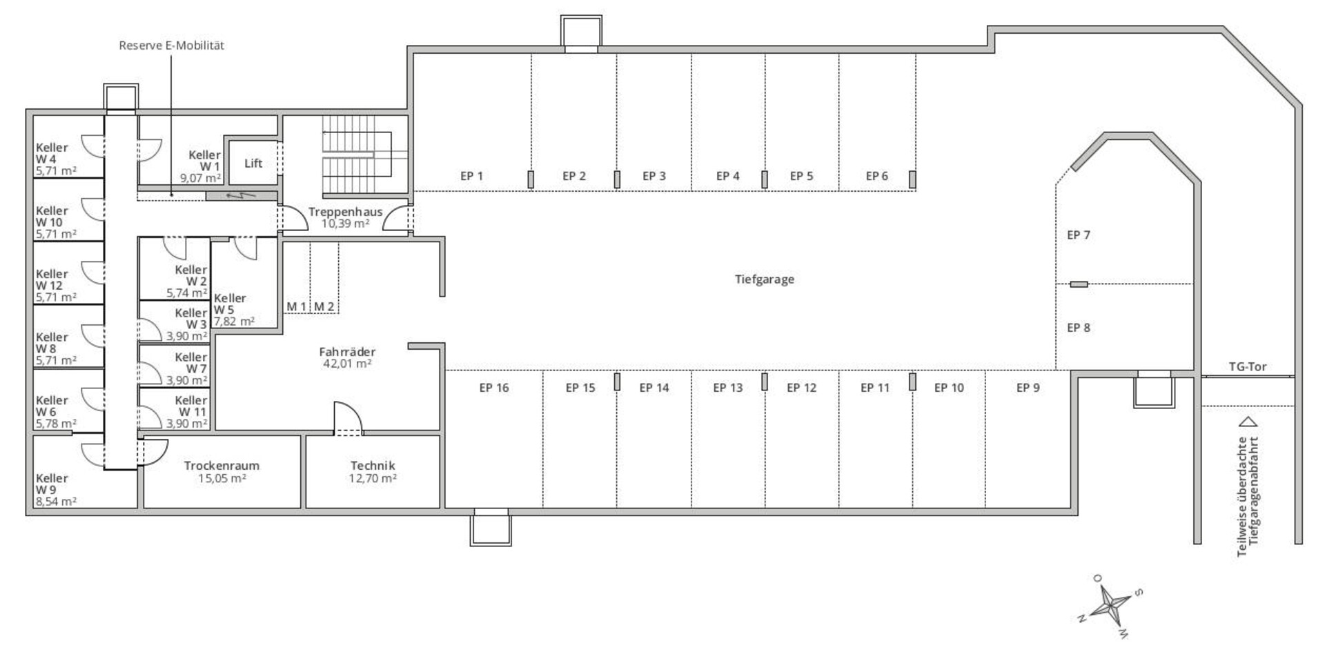
Keller 5,74 m²
Abstellraum Vorhanden
Fahrradraum Vorhanden
Heizung
  • Erdwärme
  • Fußbodenheizung
  • Photovoltaik
Verfügbar ab Frühling 2026
Heizwärmebedarf (HWB) 30,51 kwh/m²a
Gesamtenergieeffizienz-Faktor (fGEE) 0,60 kwh/m²a
Parkplatz
  • (Tief-)Garage
  • Freiplatz

Ausstattung:

  • icon Boden: Fliesen, Parkett
  • icon Bad mit: Badewanne, Dusche
  • icon Ausrichtung Balkon: Süden, Westen
  • icon Lift
  • icon Gäste-WC
  • icon Rollladen
  • icon Barrierefrei
  • icon Wasch-/Trockenraum
  • icon Kabel/Satelliten-TV
  • icon Gartennutzung

Empfohlene Services unserer Partner

Objekt Beschreibung

In Feldkirch-Altenstadt, Rebbündten 17 wurde in attraktiver Lage eine hochwertige Wohnanlage erbaut!

- hochwertige Wohnanlage mit nur 12 Wohnungen

- Lift und Tiefgarage

- Fußbodenheizung über Erdsonden-Wärmepumpe

- passive Kühlung über Fußbodenheizung

- Photovoltaik-Anlage zur Stromerzeugung

- extensive Begrünung auf Hauptdach und Tiefgaragenabfahrt

- praktische Abstellboxen auf allen Terrassen

- Vorbereitung für E-Mobilität

- keine Vertragserrichtungskosten

- Wohnbauförderung


Die Übergabe der Wohnanlage erfolgte im Oktober 2025.

Der Bezug der Wohnung erfolgt in Absprache/Abstimmung mit dem Käufer (voraussichtlich Frühjahr 2026).

Parkett, Fliesen im Bad/WC und Türblätter können vom Käufer noch ausgewählt werden.


Wohnbauförderung (Richtlinie Juli 2025-2026) mit € 60.000,00 (oder sogar mehr; z.B. pro Kind + € 15.000,--; erstmaliger Eigentumserwerb + € 10.000,--) möglich.

Entfall Grundbucheintragungsgebühr (1,1 %) bei Verbücherung bis 30.6.2026 bei Hauptwohnsitz bis Kaufpreis € 500.000,00 (pro Käufer).


Weitere Informationen finden Sie auf www.lenz-wohnbau.at. Gerne können Sie uns auch telefonisch kontaktieren.

Wir freuen uns auf Ihre Nachricht/Ihren Anruf!

Lenz Wohnbau GmbH

Angehängte Dokumente