ländleimmo.at / Mietobjekt / Wohnung / Gartenwohnung / Vorarlberg / Bludenz / Nüziders / Helle 2-Zimmer Gartenwohnung in ruhiger Wohngegend
VERGEBEN

Helle 2-Zimmer Gartenwohnung in ruhiger Wohngegend

images icon

N/A

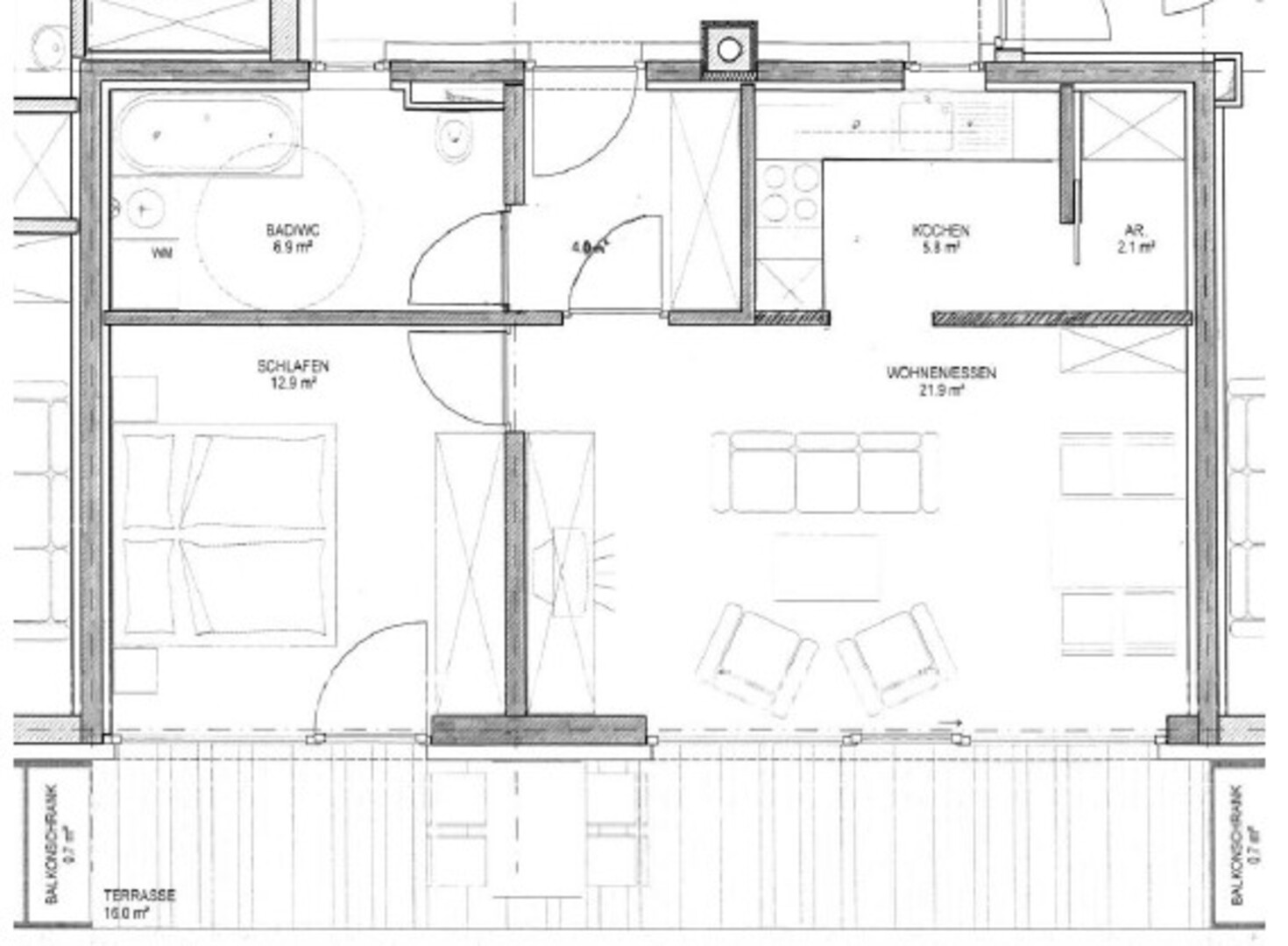
Grundriss

images icon

54,00 m²

Wohnfläche

€ 1.050

Privatanzeige

Preise

Gesamtbelastung € 1.050
Betriebskosten (exkl. Mwst) € 200
Kaution € 2.500

Objekt Informationen

Wohnfläche 54,00 m²
Objektart Wohnung
Objekttyp Gartenwohnung
Terrasse 16,00 m²
Garten 93,00 m²
Keller 6,00 m²
Verfügbar ab sofort
Parkplatz
  • (Tief-)Garage (1)

Ausstattung:

  • icon Einbauküche
  • icon Bad mit: Badewanne
  • icon Ausrichtung Balkon: Süden
  • icon Lift
  • icon Rollladen
  • icon Barrierefrei
  • icon Seniorengerecht
  • icon Wasch-/Trockenraum
  • icon Gartennutzung

Empfohlene Services unserer Partner

Objekt Beschreibung

Die barrierefreie Wohnung befinded sich im Dorfzentrum von Nüziders und hat eine Wohnfläche von ca. 54 Quadratmetern und verfügt über einen Parkplatz in der Tiefgarage mit Liftzugang. Die Terrasse hat ca. 16 Quadratmeter und ist nach Süd-West ausgerichtet. Der Garten mit ca. 93 Quadratmetern bietet Platz für Entspannung. Zudem gehört ein ca. 6 Quadratmeter großes Kellerabteil zur Wohnung.


Große Fenster schaffen ein freundliches und lichtdurchflutetes Wohn- und Schlafzimmer.

Die Einbauküche beinhaltet Geschirrspüler, Spülbecken, Kühlschrank mit Eisfach, Herd mit Backrohr, Dunstabzug und getrennte Speis mit Regalen.

Ebenso ist eine Einbaugarderobe mit Spiegel vorhanden.

Das Badezimmer ist ausgestattet mit Waschbecken und Spiegel, Badewanne, Duschtrennwand, WC, Entlüftung und Waschmaschinenanschluss.

Es stehen Allgemeinräume für Fahrrad und zum Wäschetrocknen zur Verfügung (barrierefrei). Beim Parkplatz in der Tiefgarage befindet sich eine 230V Steckdose.


Monatsmiete ist EUR 850 zzgl. verbrauchsabhängige Betriebskosten i.d.H. von dzt. EUR 200.


Erstellung des Textes unterstützt durch KI.