FLEXIBEL
FINANZIEREN

Kreditbedarf
Eigenmittel
%
Jahre
Zins | Laufzeit
mtl. Rate
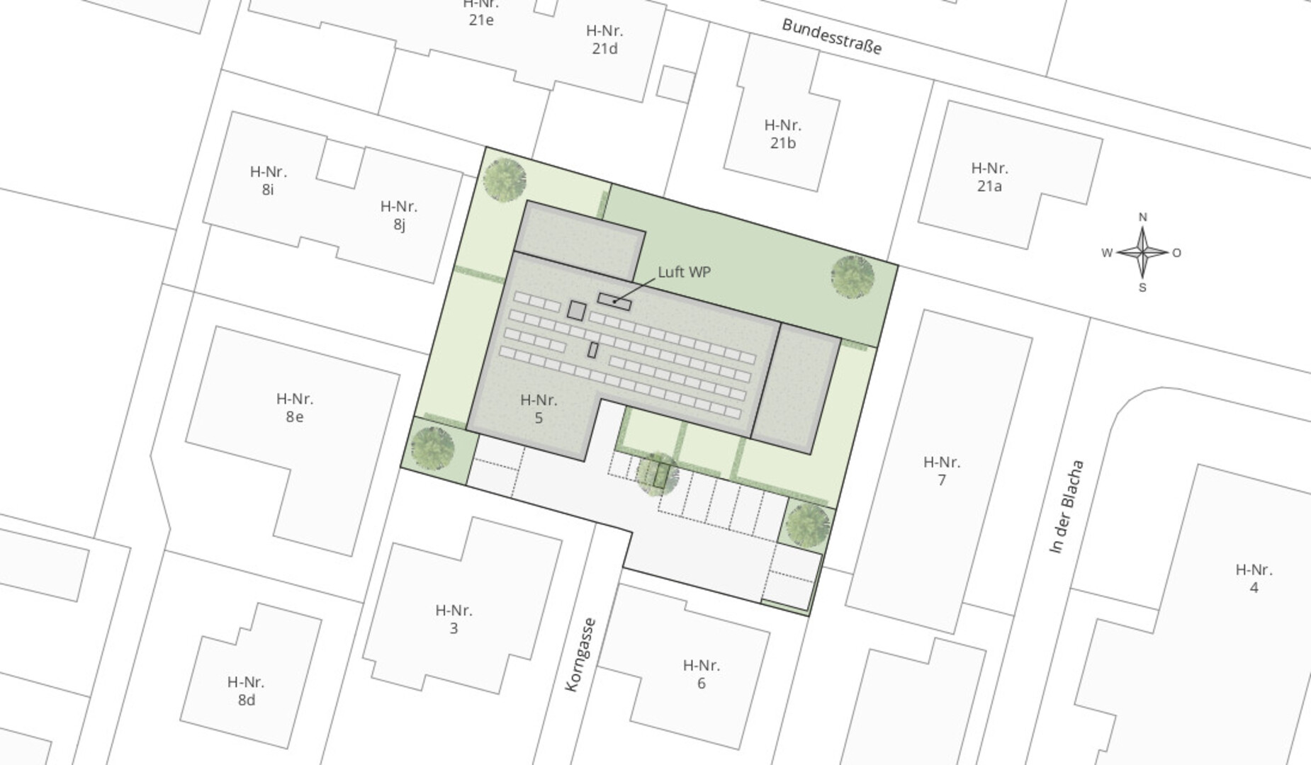
ländleimmo.at / Kaufobjekt / Wohnung / Dachgeschosswohnung / Vorarlberg / Feldkirch / Rankweil / 4-Zi-Dachgeschosswohnung TOP 15 in Rankweil-Brederis, Korngasse 5

4-Zi-Dachgeschosswohnung TOP 15 in Rankweil-Brederis, Korngasse 5

images icon

4 Zimmer

Grundriss

images icon

84,11 m²

Wohnfläche

€ 530.000

Preise

Kaufpreis € 530.000
Preis (Auto-)Stellplatz € 27.000
Förderungen € 60.000
Provision keine Provision!
Erklärung Kosten Einmalkosten: 3,5% Grunderwerbssteuer, 1,1% Grundbuchseintragung (Entfall der 1,1 % bei Hauptwohnsitz bis Kaufpreis von € 500.000– pro Käufer), keine Vertragserrichtungskosten! Wohnbauförderung: zusätzlich Zu-/Abschläge möglich!

Objekt Informationen

Wohnfläche 84,11 m²
Zimmer 4
Etage Dachgeschoss
Bautyp Neubau/Erstbezug
Baujahr 2026
Objektart Wohnung
Objekttyp Dachgeschosswohnung
Balkon Vorhanden
Terrasse 20,95 m²
Keller 4,70 m²
Abstellraum Vorhanden
Fahrradraum Vorhanden
Heizung
  • Luft Wärmepumpe
  • Fußbodenheizung
  • Photovoltaik
Verfügbar ab Herbst 2027
Heizwärmebedarf (HWB) 30,23 kwh/m²a
Gesamtenergieeffizienz-Faktor (fGEE) 0,58 kwh/m²a
Parkplatz
  • (Tief-)Garage
  • Freiplatz

Ausstattung:

  • icon Boden: Fliesen, Parkett
  • icon Bad mit: Badewanne, Dusche
  • icon Ausrichtung Balkon: Süden, Westen
  • icon Lift
  • icon Gäste-WC
  • icon Rollladen
  • icon Barrierefrei
  • icon Wasch-/Trockenraum
  • icon Kabel/Satelliten-TV

Empfohlene Services unserer Partner

Objekt Beschreibung

In Rankweil-Brederis, Korngasse 5 entsteht in sonniger Lage eine hochwertige Wohnanlage!

- hochwertige Wohnanlage mit 15 Wohnungen

- Lift und Tiefgarage

- Fußbodenheizung über Luft-Wärmepumpe

- aktive Kühlung über Fußbodenheizung

- Photovoltaik-Anlage zur Stromerzeugung

- praktische Abstellboxen auf den Terrassen

- Vorbereitung für E-Mobilität (in Abklärung)

- keine Vertragserrichtungskosten

- Wohnbauförderung

- geplante Fertigstellung: Herbst 2027


Wohnbauförderung (Richtlinie Juli 2025-2026) mit € 60.000,00 (oder sogar mehr; z.B. pro Kind + € 15.000,--; erstmaliger Eigentumserwerb + € 10.000,--) möglich.

Entfall Grundbucheintragungsgebühr (1,1 %) bei Verbücherung bis 30.6.2026 bei Hauptwohnsitz bis Kaufpreis € 500.000,00 pro Person.


Weitere Informationen finden Sie auf www.lenz-wohnbau.at. Gerne können Sie uns auch telefonisch kontaktieren.

Wir freuen uns auf Ihre Nachricht/Ihren Anruf!

Lenz Wohnbau GmbH

Angehängte Dokumente